24 Carol Crescent, Paradise, Newfoundland & Labrador A1L 4K1

Listed for:
$439,000
5 beds
4 baths
Listed 524 days ago
Two Apartment House for rent: 24 Carol Crescent, Paradise, Newfoundland & Labrador A1L 4K1

View all 7 photos

Learn more about this property
Listing provided by:
RE/MAX Infinity Realty Inc.
MLS® number:
1273296
Agent:
Evan King
*Indicates required field
Name is required
Email is required
Please enter a valid phone number (e.g., 416-111-1111).

About

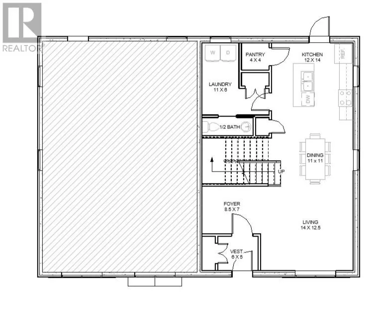
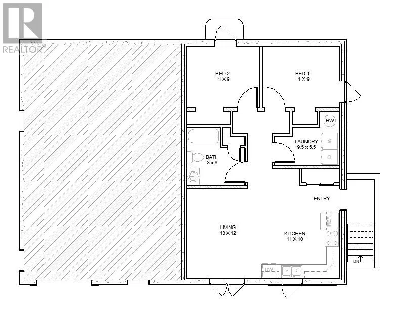
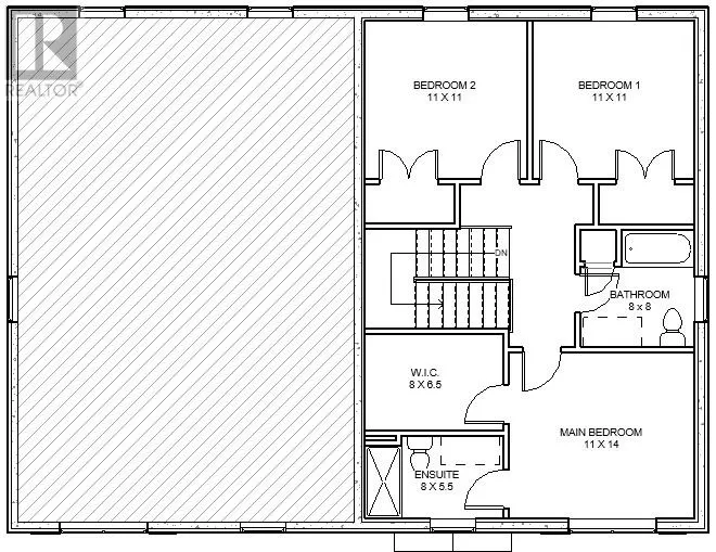
Unbelievable value in this brand new, semi-detached, 2-apartment home in the quickly developing Jonathan Park neighborhood in Paradise! Constructed using Insulated Concrete Form (ICF), this property offers superior energy efficiency and soundproofing, resulting in low power bills and a quiet, comfortable living environment. The main unit spans two storeys, featuring a spacious open floorplan that combines the living room, dining room, and kitchen. This area is perfect for entertaining and family gatherings. The kitchen has a walk-in pantry, and there is a large laundry room and half bath on the main. Upstairs, the primary bedroom has a large walk-in closet and a 3-piece ensuite bathroom. Two additional generously-sized bedrooms and another full bathroom complete the upper level. Plenty of space for family and guests. The self-contained apartment unit offers an inviting open kitchen and living room area, designed to maximize natural light with an abundance of windows at the front of the home. This bright and airy space is perfect for tenants or extended family. Additional Features: - ICF construction ensures excellent energy efficiency, potentially saving hundreds of dollars on electricity for the new owners. ICF is time tested, and adds incredible value to this property, especially over time. - Situated in a family-friendly neighborhood in Paradise, close to schools, parks, and amenities. - Modern and beautiful interior and exterior finishings. An opportunity to own an exceptional property that combines contemporary design, energy efficiency, and a convenient location. Perfect for investors or homeowners looking for additional rental income. Hst rebate to be assigned to Vendor on closing. (id:27476)

Property Highlights

MLS® Number
1273296
Type
Single Family
Ownership Type
Freehold
Land Size
5436 sf, 125' x 42'|4,051 - 7,250 sqft

Building

Building Type
Two Apartment House
Square Footage
2295 sqft
Bathrooms Total
4
Bedrooms Total
5
Exterior Finish
Vinyl siding
Fireplace Present
No
Basement Type
Basement Features
Building Heating Type
Baseboard heaters, Mini-Split
Heating Fuel
Electric
Building Cooling Type
Air exchanger

Utilities

Water
Municipal water
Utility Sewer
Municipal sewage system

Room Layout

Bedroom
Second level
11 x 11
Bedroom
Second level
11 x 11
Bath (# pieces 1-6)
Second level
8 x 8
Ensuite
Second level
9.5 x 6
Primary Bedroom
Second level
13 x 11.5
Not known
Lower level
11 x 9.5
Not known
Lower level
11 x 9.5
Bath (# pieces 1-6)
Lower level
9 x 9
Not known
Lower level
9 x 6
Not known
Lower level
13.5 x 11
Not known
Lower level
14 x 10
Bath (# pieces 1-6)
Main level
1/2
Laundry room
Main level
11 x 6
Kitchen
Main level
12 x 14
Dining room
Main level
11 x 11
Living room
Main level
13 x 14

Location

Street Spotlight - For sale