26 Carol Crescent, Paradise, Newfoundland & Labrador A1L 4K1

Listed for:
$399,000
3 beds
3 baths
Listed 523 days ago
House for rent: 26 Carol Crescent, Paradise, Newfoundland & Labrador A1L 4K1

View all 6 photos

Learn more about this property
Listing provided by:
RE/MAX Infinity Realty Inc.
MLS® number:
1273335
Agent:
Evan King
*Indicates required field
Name is required
Email is required
Please enter a valid phone number (e.g., 416-111-1111).

About

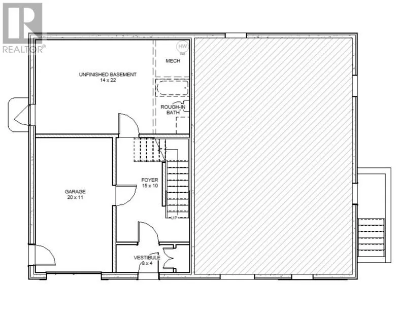
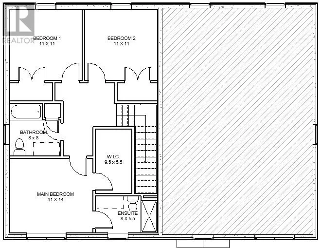
Unbelievable value in this brand new, semi-detached, raised 2-storey home in the quickly developing Jonathan Park neighborhood in Paradise! Constructed using Insulated Concrete Form (ICF), this property offers superior energy efficiency and soundproofing, resulting in low power bills and a quiet, comfortable living environment. Enter through your in-house garage or through the vestibule into a large foyer with staircase. Upstairs, the remaining home spans two more storeys, with a spacious open floorplan that combines the living room, dining room, and kitchen on the main. This area is perfect for entertaining and family gatherings, with a wide open view and lots of light from the large front windows. The kitchen has a walk-in pantry, and there is a large laundry room and half bath on the main. Upstairs, the primary bedroom has a spacious walk-in closet and a 3-piece ensuite bathroom. Two additional generously-sized bedrooms and another full bathroom complete the upper level. Plenty of space for family and guests. The unfinished space in the basement has the mechanical room as well as a rough-in for a third full bathroom. The rest of the space could be a rec room, shop, home gym, or even a spare bedroom because of the egress-sized window! Additional Features: - ICF construction ensures excellent energy efficiency, potentially saving hundreds of dollars on electricity for the new owners. ICF is time tested, and adds incredible value to this property, especially over time. - Situated in a family-friendly neighborhood in Paradise, close to schools, parks, and amenities. - Modern and beautiful interior and exterior finishes. An opportunity to own an exceptional property that combines contemporary design, energy efficiency, and a convenient location. Hst rebate to be assigned to Vendor on closing. (id:27476)

Property Highlights

MLS® Number
1273335
Type
Single Family
Ownership Type
Freehold
Land Size
5597 sf, 129' x 42'|4,051 - 7,250 sqft

Building

Building Type
House
Storeys
2.00
Square Footage
2295 sqft
Bathrooms Total
3
Bedrooms Above Ground
3
Bedrooms Total
3
Exterior Finish
Vinyl siding
Fireplace Present
No
Basement Type
Basement Features
Building Heating Type
Baseboard heaters
Heating Fuel
Electric
Building Cooling Type

Utilities

Water
Municipal water
Utility Sewer
Municipal sewage system

Room Layout

Bedroom
Second level
11 x 11
Bedroom
Second level
11 x 11
Bath (# pieces 1-6)
Second level
8 x 8
Other
Second level
WIC 10 x 6
Ensuite
Second level
9.5 x 6
Primary Bedroom
Second level
13 x 11.5
Storage
Lower level
22.5 x 14
Not known
Lower level
11.5 x 20
Foyer
Lower level
15 x 10
Porch
Lower level
9 x 4
Bath (# pieces 1-6)
Main level
1/2
Laundry room
Main level
11 x 6
Kitchen
Main level
12.5 x 14
Living room/Dining room
Main level
18.5 x 20

Location

Street Spotlight - For sale