27 Colorado Street, Paradise, Newfoundland & Labrador A1L 4M1

Listed for:
$539,900
3 beds
2 baths
Listed 59 days ago
House for rent: 27 Colorado Street, Paradise, Newfoundland & Labrador A1L 4M1

View all 3 photos

Learn more about this property
Listing provided by:
Royal LePage Vision Realty
MLS® number:
1290574
Agent:
Kayla Dupont
*Indicates required field
Name is required
Email is required
Please enter a valid phone number (e.g., 416-111-1111).

About

This brand new under construction split-entry home offers a modern design with quality finishes throughout. The main floor features an open-concept layout with a bright living area, dining space, and a kitchen complete with custom cabinetry, a 12 foot island and a walk in pantry, plus generous allowances to personalize your finishes. There are three bedrooms on the main level, including a spacious primary bedroom with a walk-in closet and ensuite featuring a custom tiled shower. A full main bath completes the layout. The hardwood staircase leads to the partially developed basement, which includes a finished rec room and access to the attached in-house garage for added convenience. Located in a desirable community of Paradise, this home is designed with comfort and function in mind, making it an excellent choice for today’s market. (id:27476)

Property Highlights

MLS® Number
1290574
Type
Single Family
Ownership Type
Freehold
Land Size
59x155x59x154|under 1/2 acre

Building

Building Type
House
Storeys
1.00
Square Footage
2344 sqft
Bathrooms Total
2
Bedrooms Above Ground
3
Bedrooms Total
3
Amenities
Recreation, Shopping
Exterior Finish
Vinyl siding
Fireplace Present
No
Basement Type
Basement Features
Building Heating Type
Baseboard heaters
Heating Fuel
Electric
Building Cooling Type
Air exchanger

Utilities

Water
Municipal water
Utility Sewer
Municipal sewage system

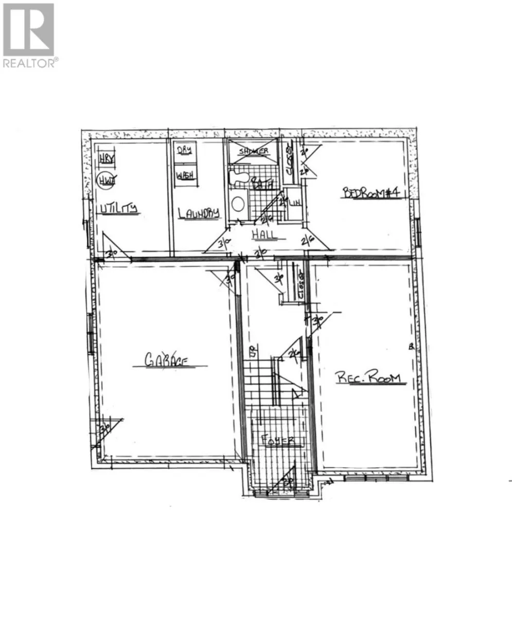
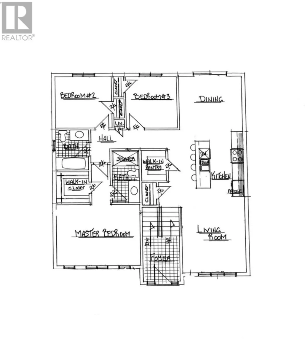
Room Layout

Not known
Basement
16x23
Recreation room
Basement
12x24
Foyer
Lower level
8x13
Bath (# pieces 1-6)
Main level
8x7
Bedroom
Main level
10x11
Bedroom
Main level
10.5x11
Ensuite
Main level
5x10
Primary Bedroom
Main level
12x16
Not known
Main level
3x6
Dining room
Main level
11x12
Kitchen
Main level
12x12
Living room
Main level
12x15

Location