118 Sgt Donald Lucas Drive, Paradise, Newfoundland & Labrador A1L 0W8

Listed for:
$749,900
3 beds
3 baths
Listed 58 days ago
House for rent: 118 Sgt Donald Lucas Drive, Paradise, Newfoundland & Labrador A1L 0W8

View all 12 photos

About

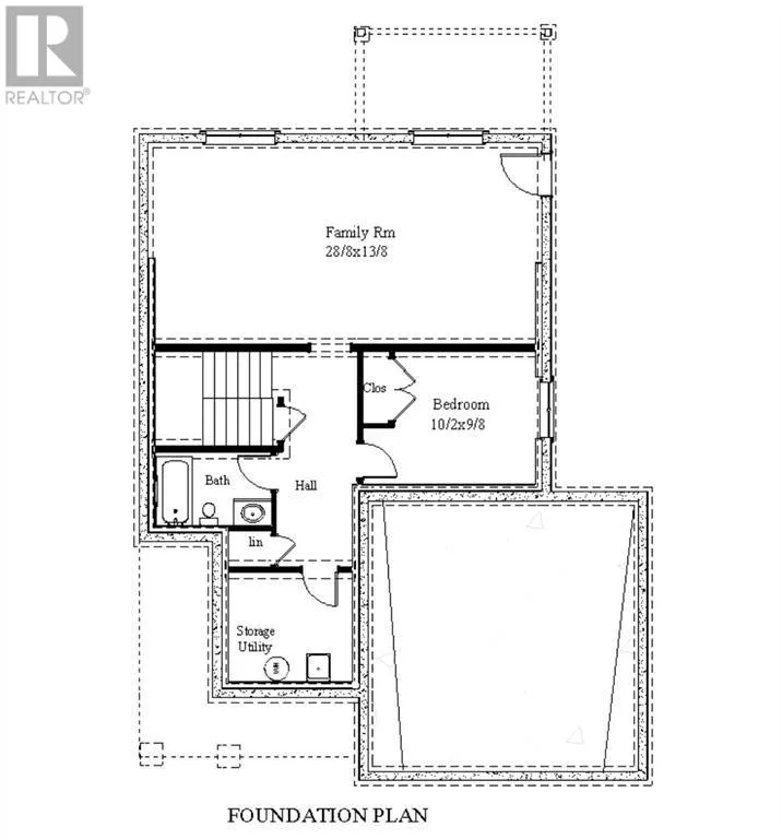
Construction starting soon by McCrowe Homes on this stunning 2 storey home in Paradise. This home is situated on a family friendly street with pond views from your back window. The main floor features an open concept floor plan, ideal for entertaining. The kitchen is bright and spacious, has an island with seating as well as a massive walk in pantry for all your storage needs. There is a half bath on this floor as well. Upstairs has 3 large bedrooms including a stunning primary bedroom with ensuite and walk in closet. There is also a spacious main bathroom and second floor laundry for your convenience! Allowances included $20,000 for kitchen/vanities/closets, $12,000 flooring, $2500 lighting. The undeveloped basement is waiting for your personal touches. Located near all major amenities, walking trails, rec facilities and schools. (IMAGES ARE SAMPLE PHOTOS OF A PREVIOUS BUILD OF THIS PLAN) (id:27476)

Property Highlights

MLS® Number
1294225
Type
Single Family
Ownership Type
Freehold
Land Size
58.79 x 105.83 x 64.20 x 105.41|4,051 - 7,250 sqft

Building

Building Type
House
Storeys
2.00
Square Footage
3042 sqft
Bathrooms Total
3
Bedrooms Above Ground
3
Bedrooms Total
3
Exterior Finish
Vinyl siding
Fireplace Present
No
Basement Type
Basement Features
Building Heating Type
Baseboard heaters, Mini-Split
Heating Fuel
Electric
Building Cooling Type
Air exchanger

Utilities

Water
Municipal water
Utility Sewer
Municipal sewage system

Room Layout

Other
Second level
12.8 x 6.4
Ensuite
Second level
5 pcs
Laundry room
Second level
8.6 x 6
Bath (# pieces 1-6)
Second level
4 pcs
Bedroom
Second level
11 x 10.8
Bedroom
Second level
10.4 x 12.4
Primary Bedroom
Second level
16 x 14.11
Family room
Basement
28.8 x 13.8
Not known
Main level
12.10 x 5.6
Kitchen
Main level
12.10 x 10.4
Dining room
Main level
12 x 9.6
Living room
Main level
16.2 x 14.10

Location

Learn more about this property
Listing provided by:
Hanlon Realty
MLS® number:
1294225
Agent:
David Crowley
*Indicates required field
Name is required
Email is required
Please enter a valid phone number (e.g., 416-111-1111).

Street Spotlight - For sale