Sd06c 161 Terrastone Ridge Ridge, Dartmouth, Nova Scotia B2X 0C4

Listed for:
$614,900
3 beds
3 baths
Listed 62 days ago
Row / Townhouse for rent: Sd06c 161 Terrastone Ridge Ridge, Dartmouth, Nova Scotia B2X 0C4

View all 5 photos

About

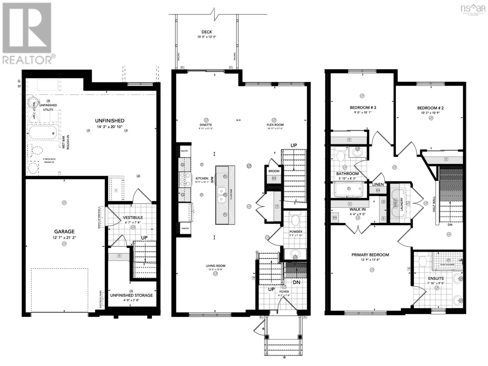
Waverley Road to Terrastone Ridge Cresco proudly introduces The Fairbanks, a chic 3-bedroom townhome nestled in HRM's hottest new subdivision, The Parks of Lake Charles. This stylish three-level townhome boasts a garage with unfinished basement allowing you to finish it when you need, as you need. Step inside to find three cozy bedrooms, 2 full bathrooms, and a handy powder room on the main floor. The main level is designed for ultimate comfort, featuring a spacious living room, a dining area perfect for gatherings, a well-equipped kitchen with a pantry, and a convenient half bath. On the second floor, relax in the luxurious primary suite with its own bathroom and walk-in closet, along with two additional bedrooms and a practical main bathroom. Plus, there's a dedicated laundry room for added ease. The lower level is unfinished and offers a future recreational room, a rough-in for a full bath and a wetbar rough in, or allowing you to finish it your way. The Fairbanks perfectly blends modern style with practical design, creating a cozy and inviting space in a prime location. Disclaimer - Photos shown are facsimiles only and colour selections may vary depending on the unit (id:27476)

Property Highlights

MLS® Number
202604814
Type
Single Family
Community Name
Dartmouth
Ownership Type
Freehold
Land Size
0.0648 ac

Building

Building Type
Row / Townhouse
Storeys
2.00
Square Footage
1660 sqft
Bathrooms Total
3
Bedrooms Above Ground
3
Bedrooms Total
3
Amenities
Park, Playground, Public Transit, Shopping, Place of Worship
Exterior Finish
Stone, Vinyl
Fireplace Present
No
Basement Type
Basement Features
Building Heating Type
Heating Fuel
Building Cooling Type
Heat Pump

Utilities

Water
Municipal water
Utility Sewer
Municipal sewage system

Room Layout

Primary Bedroom
Second level
12.9 x 13.8
Ensuite (# pieces 2-6)
Second level
7.10 x 9.0
Bath (# pieces 1-6)
Second level
5.10 x 8.3
Bedroom
Second level
10.2 x 10.9
Bedroom
Second level
9.0 x 10.1
Foyer
Main level
4.5 x 7.8
Living room
Main level
12.5 x 12.8
Bath (# pieces 1-6)
Main level
3.9 x 7.10
Kitchen
Main level
13.9 x 14.1
Dining nook
Main level
9.11 x 11.5
Family room
Main level
10.11 x 11.6

Location

Learn more about this property
Listing provided by:
Royal LePage Atlantic
MLS® number:
202604814
Agent:
Amanee Mousavi
*Indicates required field
Name is required
Email is required
Please enter a valid phone number (e.g., 416-111-1111).