Sd06b 163 Terrastone Ridge Ridge, Dartmouth, Nova Scotia B2X 0C4

Listed for:
$629,900
3 beds
4 baths
Listed 62 days ago
Row / Townhouse for rent: Sd06b 163 Terrastone Ridge Ridge, Dartmouth, Nova Scotia B2X 0C4

View all 6 photos

About

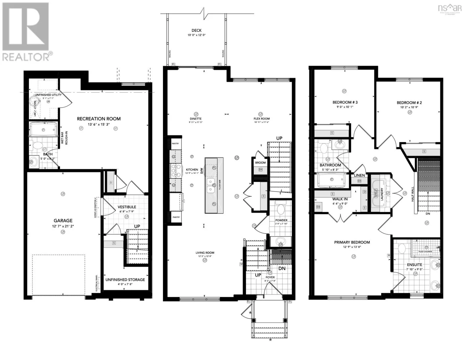
Waverley Road to Terrastone Ridge Introducing The Fairbanks by Cresco, a chic 3-bedroom middle unit townhome in one of HRM's most sought-after new communities, The Parks of Lake Charles. This stylish 3-level design features a built-in garage and a bright lookout lower level, offering added natural light and functional living space. The main level is thoughtfully designed for everyday comfort and entertaining, with a spacious living room, dedicated dining area, a well-appointed kitchen complete with pantry, and a convenient powder room. Upstairs, the private primary suite includes a walk-in closet and its own ensuite bath, complemented by two additional bedrooms, a full main bathroom, and a dedicated laundry room for added convenience. The fully finished lower level expands your living space with a large recreation room, full bathroom and wet bar rough-in. The lookout design enhances the lower level with natural light, creating a comfortable, versatile space ideal for relaxing, entertaining, or accommodating guests. The Fairbanks blends modern style with practical design,, delivering comfortable living in a prime Lake Charles location. Disclaimer: Photos shown are facsimiles only. Colour selections and finishes may vary by unit. (id:27476)

Property Highlights

MLS® Number
202604815
Type
Single Family
Community Name
Dartmouth
Ownership Type
Freehold
Land Size
0.0648 ac

Building

Building Type
Row / Townhouse
Storeys
2.00
Square Footage
2200 sqft
Bathrooms Total
4
Bedrooms Above Ground
3
Bedrooms Total
3
Amenities
Park, Playground, Public Transit, Shopping, Place of Worship
Exterior Finish
Stone, Vinyl
Fireplace Present
No
Basement Type
Basement Features
Building Heating Type
Heating Fuel
Building Cooling Type
Heat Pump

Utilities

Water
Municipal water
Utility Sewer
Municipal sewage system

Room Layout

Primary Bedroom
Second level
12.9 x 13.8
Ensuite (# pieces 2-6)
Second level
7.10 x 9.0
Bath (# pieces 1-6)
Second level
5.10 x 8.3
Bedroom
Second level
10.2 x 10.9
Bedroom
Second level
9.0 x 10.1
Recreational, Games room
Lower level
13.6 x 15.3
Bath (# pieces 1-6)
Lower level
5.0 x 8.2
Storage
Lower level
4.0 x 7.8
Foyer
Main level
4.5 x 7.8
Living room
Main level
12.5 x 12.8
Bath (# pieces 1-6)
Main level
3.9 x 7.10
Kitchen
Main level
13.9 x 14.1
Dining nook
Main level
9.11 x 11.5
Family room
Main level
10.11 x 11.6

Location

Learn more about this property
Listing provided by:
Royal LePage Atlantic
MLS® number:
202604815
Agent:
Amanee Mousavi
*Indicates required field
Name is required
Email is required
Please enter a valid phone number (e.g., 416-111-1111).