Irwin Lake Road, Hilden, Nova Scotia B0N 1C0

Listed for:
$299,900
2 beds
1 baths
Listed 8 days ago
House for rent: Irwin Lake Road, Hilden, Nova Scotia B0N 1C0

View all 9 photos

Learn more about this property
Listing provided by:
Royal LePage Atlantic (Enfield)
MLS® number:
202529707
Agent:
Kathy Harpell
*Indicates required field
Name is required
Email is required
Please enter a valid phone number (e.g., 416-111-1111).

About

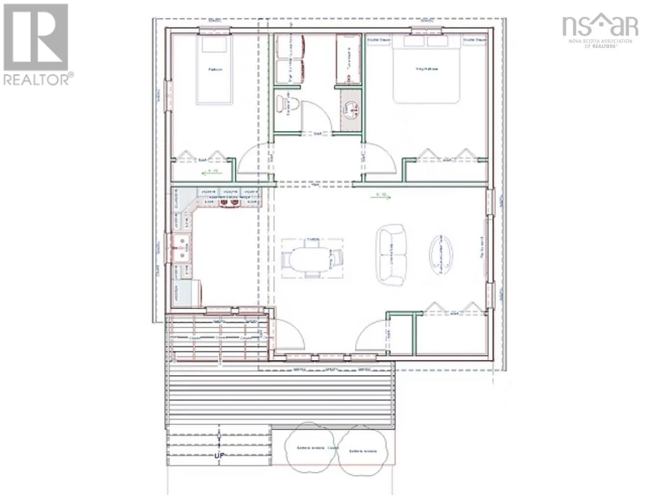
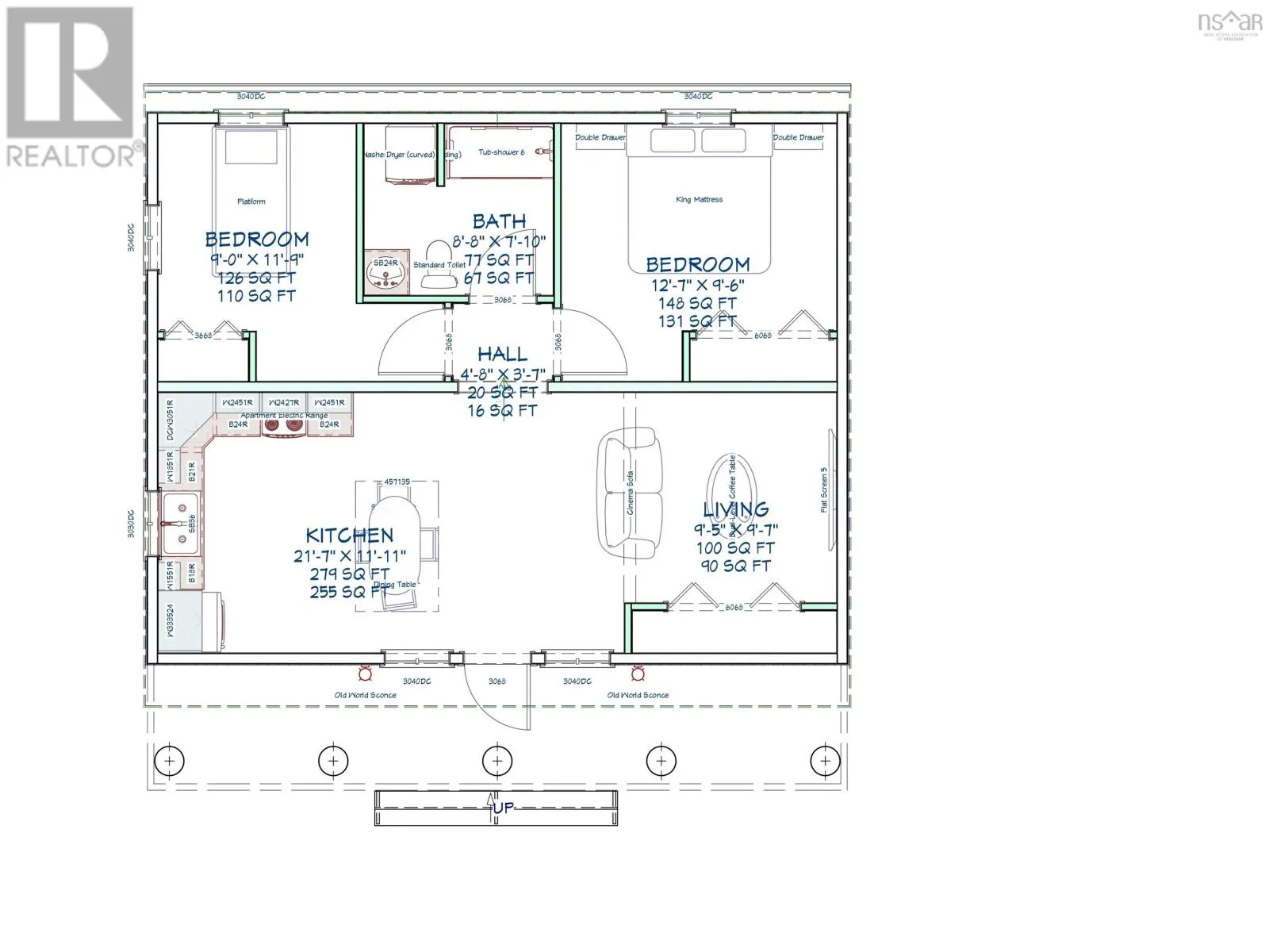
https://maps.app.goo.gl/GTWXepZTy3W3JYyv9 Introducing a small but mighty 1000 sq ft plan featuring 2 bedrooms and 1 well-appointed bathroom. This versatile layout is perfect for first homebuyers or those looking to downsize in retirement. Enjoy the charm and functionality of a space designed for comfort, no matter your stage in life. Embrace the possibilities this has to offer! This innovative property features all-metal siding and roofing for durability and style. Enjoy the comfort of in-floor heating combined with an efficient heat pump, ensuring a cozy atmosphere year-round Experience modern living with high-quality materials and energy-efficient solutions. Explore perfect blend of functionality and aesthetics in your next home! Discover the beauty of minimalist living in this charming 2-bedroom, 1-bath home. Enjoy the convenience of an eat-in kitchen that flows seamlessly into an open concept living room, perfect for relaxation and entertaining. Enjoy simplicity and comfort in a space designed for modern living. Discover the beauty of minimalist living in this charming 2-bedroom, 1-bath home. Enjoy the convenience of an eat-in kitchen that flows seamlessly into an open concept living room, perfect for relaxation and entertaining. Enjoy simplicity and comfort in a space designed for modern living. Even better, the purchase price qualifies for the Nova Scotia First-Time Home Buyers Down Payment Assistance Program for Colchester County, making this an excellent opportunity for eligible buyers to step into homeownership. Discover a space that truly feels like home. The property will be subdivided from a larger parcel. (id:27476)

Property Highlights

MLS® Number
202529707
Type
Single Family
Community Name
Hilden
Ownership Type
Freehold
Land Size
under 1/2 acre

Building

Building Type
House
Square Footage
1000 sqft
Bathrooms Total
1
Bedrooms Above Ground
2
Bedrooms Total
2
Exterior Finish
Steel
Fireplace Present
No
Basement Type
None
Basement Features
Building Heating Type
Heating Fuel
Building Cooling Type
Heat Pump

Utilities

Water
Drilled Well
Utility Sewer
Municipal sewage system

Location

Street Spotlight - For sale