Irwin Lake Road, Hilden, Nova Scotia B0N 1C0

Listed for:
$425,900
2 beds
2 baths
Listed 24 days ago
House for rent: Irwin Lake Road, Hilden, Nova Scotia B0N 1C0

View all 13 photos

About

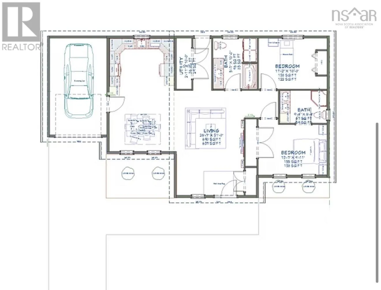
https://maps.app.goo.gl/GTWXepZTy3W3JYyv9 Welcome to this charming 1200 sq ft, 2 bedroom, 2 bath, open concept home, designed for comfortable living and modern convenience. The spacious layout features three bedrooms, perfect for family or guests, and two well-appointed bathrooms ensure privacy and functionality. The inviting living area seamlessly flows into the kitchen, creating an ideal space for entertaining and family gatherings. Enjoy the natural light that fills the space, enhancing the warm and welcoming atmosphere throughout. This property includes a convenient single-car garage, providing ample space for your vehicle. The exterior boasts durable metal & Vinyl siding and a sturdy metal roof, ensuring long-lasting protection and minimal maintenance. It's a perfect blend of functionality and modern design. Experience the seamless flow of an open concept kitchen that effortlessly merges with the inviting living room, leading you right into your private ensuite. This design creates a harmonious space, perfect for both relaxation and entertaining. Enjoy the convenience and comfort of having everything you need just steps away. Embrace modern living in this beautifully integrated environment. The property will be subdivided from a larger parcel. (id:27476)

Property Highlights

MLS® Number
202529708
Type
Single Family
Community Name
Hilden
Ownership Type
Freehold
Land Size
under 1/2 acre

Building

Building Type
House
Storeys
1.00
Square Footage
1200 sqft
Bathrooms Total
2
Bedrooms Above Ground
2
Bedrooms Total
2
Exterior Finish
Steel, Vinyl
Fireplace Present
No
Basement Type
None
Basement Features
Building Heating Type
Heating Fuel
Building Cooling Type
Heat Pump

Utilities

Water
Drilled Well
Utility Sewer
Municipal sewage system

Room Layout

Living room
Main level
16.4x15.3
Kitchen
Main level
13.11x23.9
Bath (# pieces 1-6)
Main level
10.3x7.1
Bedroom
Main level
101x10.5
Primary Bedroom
Main level
14x143
Ensuite (# pieces 2-6)
Main level
9.1x7.3

Location

Learn more about this property
Listing provided by:
Royal LePage Atlantic (Enfield)
MLS® number:
202529708
Agent:
Kathy Harpell
*Indicates required field
Name is required
Email is required
Please enter a valid phone number (e.g., 416-111-1111).

Street Spotlight - For sale