169 Cockscomb Lake Drive, Mount Uniacke, Nova Scotia B0N 1Z0

Listed for:
$879,900
2 beds
1 baths
Listed 110 days ago
House for rent: 169 Cockscomb Lake Drive, Mount Uniacke, Nova Scotia B0N 1Z0

View all 32 photos

About

Highway 1 to Uniacke Mines Road to Cockscomb Lake Drive Charming Lakefront Home on Cockscomb Lake A Rare Find! Welcome to your lakeside retreat! This beautifully crafted 2-bedroom, 1-bath Dow and Duggan log siding home offers cozy comfort with a stunning wood interior and a breathtaking floor-to-ceiling stone fireplace at its heart. Nestled on the shores of Cockscomb Lake, one of Mount Uniackes largest and most sought-after boating lakes, this property is the perfect escape for nature lovers and water enthusiasts alike. Step outside to a wrap-around covered deck that provides panoramic views of the lake the ideal setting for morning coffee, evening sunsets, or entertaining guests. The home also features an attached garage and an unfinished basement, offering potential for expanded living space or storage. But thats not all the property boasts a massive 36x31 detached garage with oversized double doors, perfect for storing boats, ATVs, or other toys. Above the garage, youll find a bonus space with 2 additional bedrooms, a large open living area, and its own covered deck with lake views perfect for guests, rental potential, or a private retreat. The landscaping is truly one-of-a-kind, with thoughtfully designed steps and multi-level decks leading down to your private dock. Whether you're boating, swimming, or simply enjoying the view, every detail of this property enhances your lakefront lifestyle. Dont miss this opportunity to own a unique and versatile lakefront home with unmatched character and charm on Cockscomb Lake. (id:27476)

Property Highlights

MLS® Number
202522309
Type
Single Family
Community Name
Mount Uniacke
Ownership Type
Freehold
Land Size
0.5863 ac

Building

Building Type
House
Storeys
1.00
Square Footage
1008 sqft
Bathrooms Total
1
Bedrooms Above Ground
2
Bedrooms Total
2
Exterior Finish
Log
Fireplace Present
Yes
Basement Type
Full (Unfinished)
Basement Features
Walk out
Building Heating Type
Heating Fuel
Building Cooling Type
Heat Pump

Utilities

Water
Lake/River Water Intake
Utility Sewer
Septic System

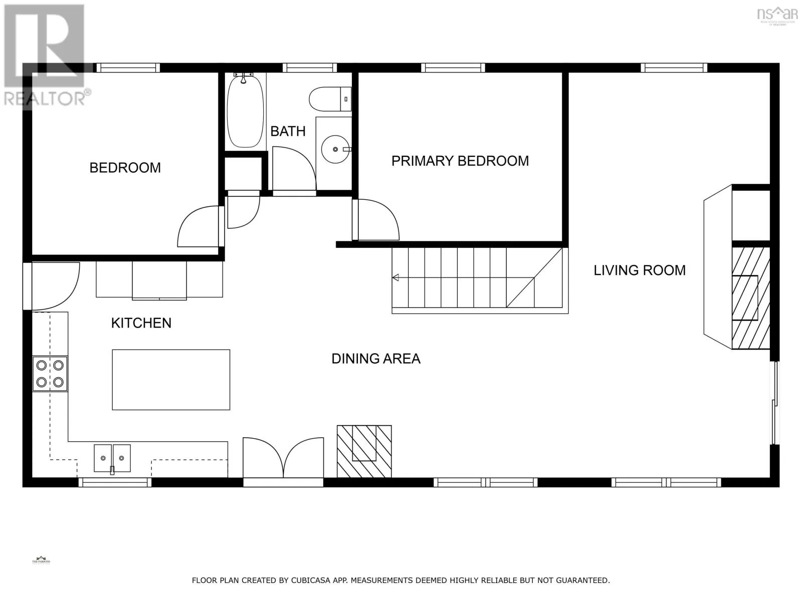
Room Layout

Living room
Main level
23x11.5
Dining room
Main level
9.2x7.4
Kitchen
Main level
22x12.4
Primary Bedroom
Main level
10.6x9.11
Bedroom
Main level
10.5x9.9
Bath (# pieces 1-6)
Main level
6.5x6.9

Location

Learn more about this property
Listing provided by:
Keller Williams Select Realty
MLS® number:
202522309
Agent:
Rhonda Parsons
*Indicates required field
Name is required
Email is required
Please enter a valid phone number (e.g., 416-111-1111).

Community Spotlight: Homes For sale in Your Neighborhood