Lot # 6b Kara Anne Court, New Minas, Nova Scotia B4N 0H6

Listed for:
$439,000
3 beds
2 baths
Listed 64 days ago
House for rent: Lot # 6b Kara Anne Court, New Minas, Nova Scotia B4N 0H6

View all 11 photos

Learn more about this property
Listing provided by:
Royal LePage Atlantic (New Minas)
MLS® number:
202521092
Agent:
Rhonda Morse
*Indicates required field
Name is required
Email is required
Please enter a valid phone number (e.g., 416-111-1111).

About

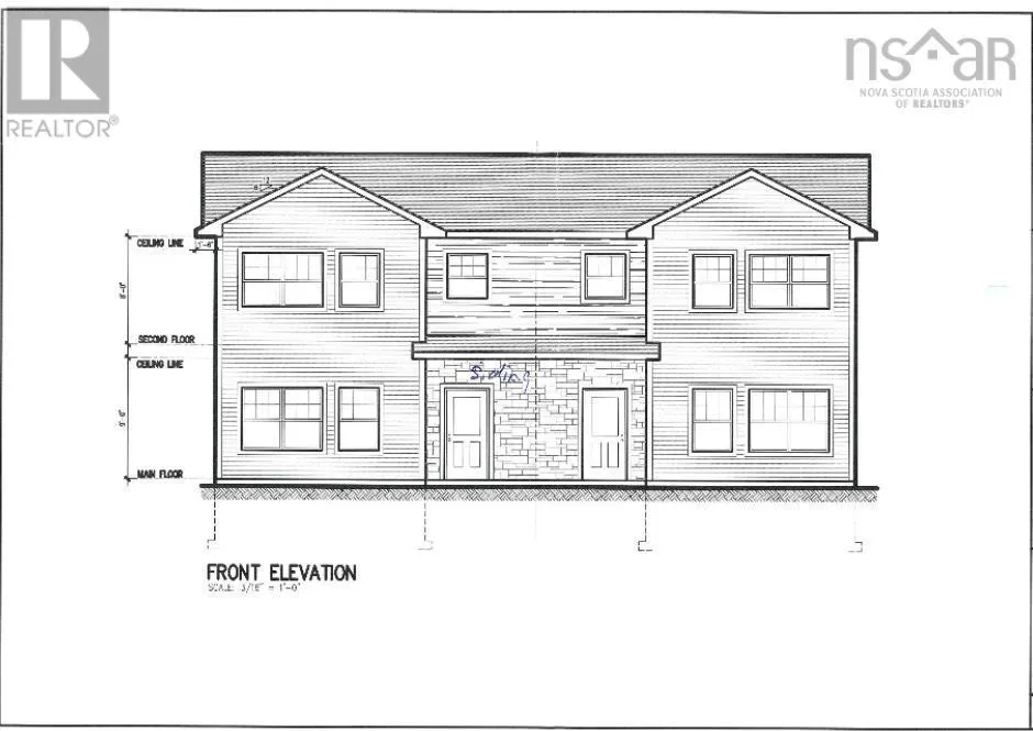
Highbury Road to Moores Landing, left to Kara Anne. Watch for sign on the left. This brand new, three bedroom, 1.5 bath family home is now under construction. These quality built homes are conveniently located on the bus route. Sidewalks lead you to downtown, where you can enjoy many amenities, including shopping, theatre, the gym, dining, the Veterinary and many more! It's just a short drive to Acadia University, many local award-winning wineries, Hwy # 101 access and Kingsport, where you can enjoy views of some of the highest tides in the world. The kitchen boasts ample cabinets, with a peninsula and space for a dishwasher. You can access the deck via patio doors from the dining area. The laundry is conveniently located on the upper level near the bedrooms. Large windows allow for lots of natural light. Easy care vinyl plank flooring is found throughout the home, except the stairway, where you'll find non-slip carpet. Lot to be subdivided prior to closing. Total lot size to be approx 5500 sf, but will be determined when divided. (id:27476)

Property Highlights

MLS® Number
202521092
Type
Single Family
Community Name
New Minas
Ownership Type
Freehold
Land Size
0.116 ac

Building

Building Type
House
Storeys
2.00
Square Footage
1520 sqft
Bathrooms Total
2
Bedrooms Above Ground
3
Bedrooms Total
3
Amenities
Golf Course, Park, Playground, Public Transit, Shopping, Place of Worship
Exterior Finish
Vinyl
Fireplace Present
No
Basement Type
None
Basement Features
Building Heating Type
Heating Fuel
Building Cooling Type
Heat Pump

Utilities

Water
Municipal water
Utility Sewer
Municipal sewage system

Room Layout

Primary Bedroom
Second level
12.6 x 14
Other
Second level
8.10x8.3 - jog walkin
Bath (# pieces 1-6)
Second level
6.4 x 8.8
Bedroom
Second level
10.2 x 10.7
Bedroom
Second level
10.2 x 8.3
Laundry room
Second level
6. x 9
Foyer
Main level
4.11 x 6.3
Living room
Main level
12. x 20.7
Dining room
Main level
10.8 x 10.5
Kitchen
Main level
12. x 10.5
Bath (# pieces 1-6)
Main level
6.1 x 6.9
Utility room
Main level
3.6 x 4.11

Location