Lot 13 Nichols Avenue, North Kentville, Nova Scotia B4N 3V7

Listed for:
$348,800
2 beds
1 baths
Listed 68 days ago
House for rent: Lot 13 Nichols Avenue, North Kentville, Nova Scotia B4N 3V7

View all 1 photos

About

From Kentville on Nichols Avenue. Property on Left Side. Tired of renting? If so don't miss your chance to own a new construction this year. 2-bedroom, 1-bath home offers a modern open-concept layout, seamlessly connecting the living, dining, and kitchen areas, perfect for entertaining and everyday living. Enjoy the convenience of a single-car garage and a large lot, providing plenty of space for outdoor activities or gardening. Located close to all amenities, including Valley Regional Hospital, shopping, dining, and schools, this home offers the ideal combination of comfort and accessibility. Act fast this is the last available lot in the subdivision! Make this beautiful new home yours today. (id:27476)

Property Highlights

MLS® Number
202604204
Type
Single Family
Community Name
North Kentville
Ownership Type
Freehold
Land Size
0.2222 ac

Building

Building Type
House
Storeys
1.00
Square Footage
806 sqft
Bathrooms Total
1
Bedrooms Above Ground
2
Bedrooms Total
2
Amenities
Golf Course, Place of Worship
Exterior Finish
Vinyl
Fireplace Present
No
Basement Type
None
Basement Features
Building Heating Type
Heating Fuel
Building Cooling Type
Heat Pump

Utilities

Water
Community Water System
Utility Sewer
Municipal sewage system

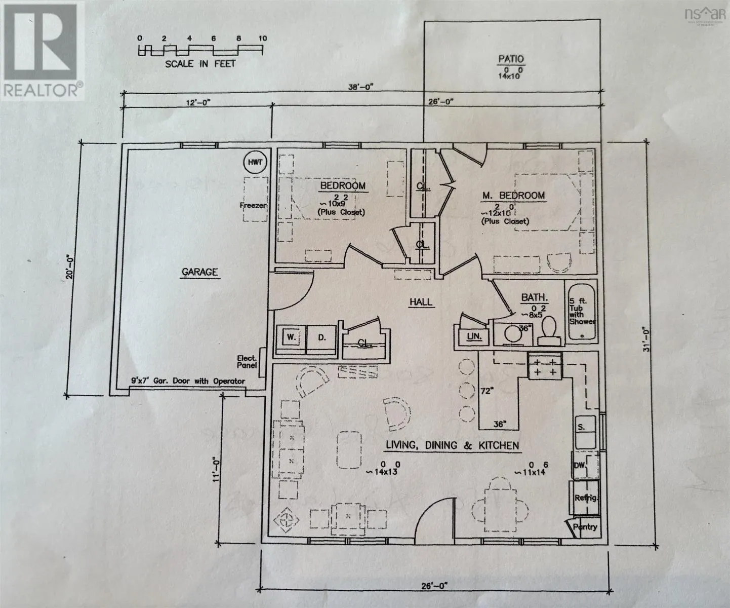
Room Layout

Eat in kitchen
Main level
11 x 14
Living room
Main level
14 x 13
Primary Bedroom
Main level
12 x 10
Bath (# pieces 1-6)
Main level
8 x 5
Bedroom
Main level
10 X 9

Location

Learn more about this property
Listing provided by:
EXP Realty of Canada Inc.
MLS® number:
202604204
Agent:
Becky Tupper
*Indicates required field
Name is required
Email is required
Please enter a valid phone number (e.g., 416-111-1111).