209 Louise Street, Pictou, Nova Scotia B0K 1H0

Listed for:
$449,000
3 beds
2 baths
Listed 73 days ago
House for rent: 209 Louise Street, Pictou, Nova Scotia B0K 1H0

View all 46 photos

About

West River Road, left on Faulkland Street, left on Patterson Street, right onto Louise Street. Welcome home to 209 Louise Street in the beautiful town of Pictou. This immaculately maintained, 3-bedroom, 2 bath bungalow is situated on a large lot, and has a fully subdivided side lot included in the package. This home is flooded with natural daylight in every room. The kitchen is beautifully upgraded with amazing cupboards and drawers for storage, and stone counter tops that sparkle. Its an eat in kitchen that opens onto a 3-season covered deck area. through new patio doors. The living room and dining room are open to each other but large enough to be separate spaces, boasting large windows. The cozy electric fireplace provides warmth and charm. Three large size bedrooms, and 2 upgraded full bathrooms complete the main level. Downstairs is a world of opportunity to complete this high and dry basement. A walk out to the backyard would be perfect for a secondary suite, or even a home-based business. The detached, wired garage at the end of the paved driveway is perfect for your vehicle especially in winters like weve just had. There are many upgrades including roofs, wiring and plumbing. (id:27476)

Property Highlights

MLS® Number
202603917
Type
Single Family
Community Name
Pictou
Ownership Type
Freehold
Land Size
0.5115 ac

Building

Building Type
House
Storeys
1.00
Square Footage
1898 sqft
Bathrooms Total
2
Bedrooms Above Ground
3
Bedrooms Total
3
Amenities
Park, Playground, Beach
Exterior Finish
Vinyl
Fireplace Present
Yes
Basement Type
Basement Features
Building Heating Type
Heating Fuel
Building Cooling Type
Wall unit, Heat Pump

Utilities

Water
Municipal water
Utility Sewer
Municipal sewage system

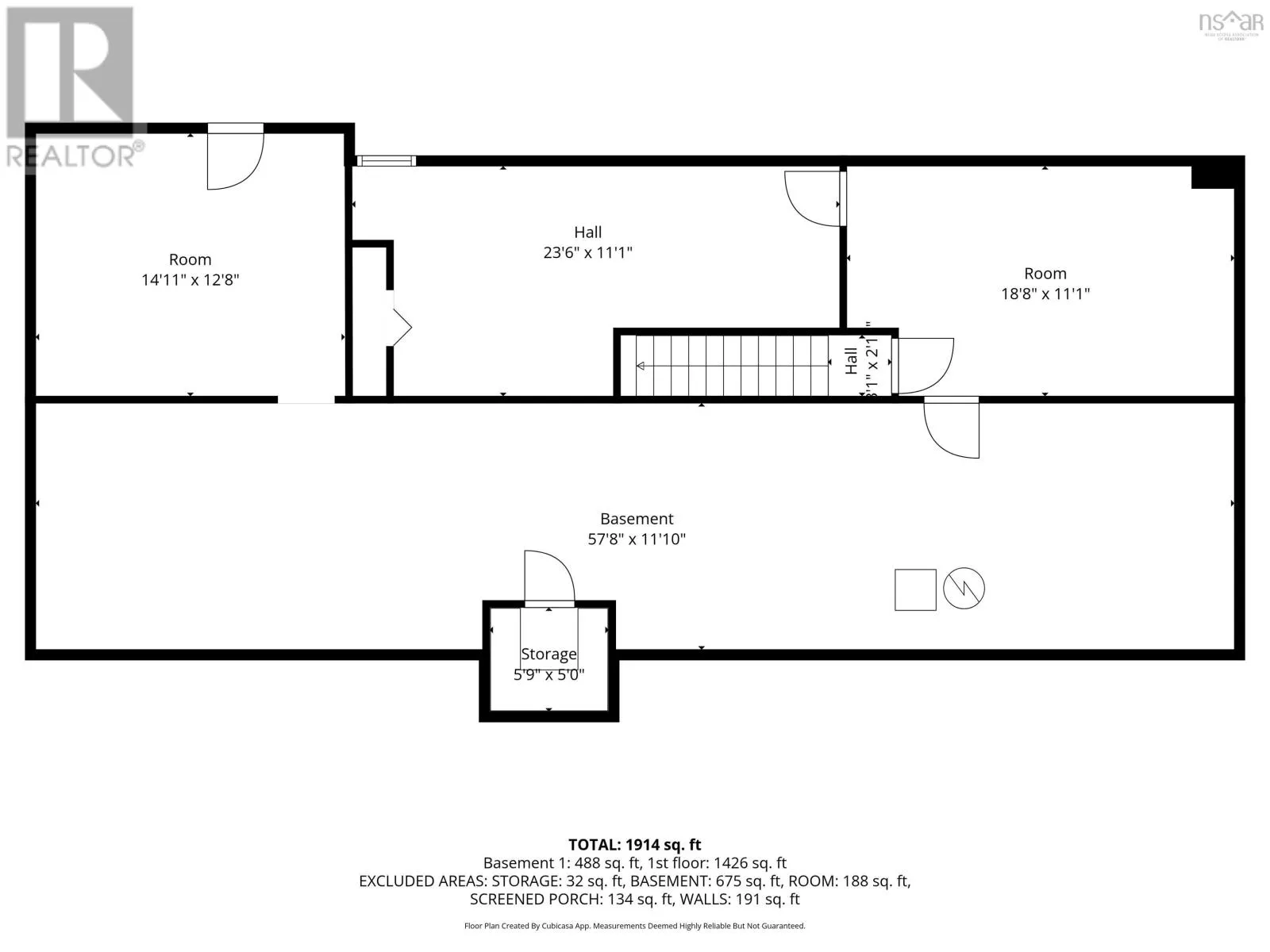
Room Layout

Other
Lower level
18.8x11.1
Recreational, Games room
Lower level
23.6x11.1
Utility room
Lower level
57.8x11.10
Workshop
Lower level
14.11x12.8
Foyer
Main level
4x9.7
Living room
Main level
18.10x11.10
Dining room
Main level
10.9x11.10
Kitchen
Main level
21.6x12.8
Dining nook
Main level
16.1x13.7
Bath (# pieces 1-6)
Main level
8.6x10.2
Primary Bedroom
Main level
11.10x14.5
Bedroom
Main level
11.9x10.2
Bedroom
Main level
8.10x11
Laundry room
Main level
6.6x10
Bath (# pieces 1-6)
Main level
12.4x3.11
Porch
Main level
11.7x11.6

Location

Learn more about this property
Listing provided by:
Results Realty Atlantic Inc.
MLS® number:
202603917
Agent:
Kevin Richardson
*Indicates required field
Name is required
Email is required
Please enter a valid phone number (e.g., 416-111-1111).

Community Spotlight: Homes For sale in Your Neighborhood