167 Prince Albert Street, Pugwash, Nova Scotia B0K 1L0

Listed for:
$174,900
2 beds
1 baths
Listed 53 days ago
Mobile Home for rent: 167 Prince Albert Street, Pugwash, Nova Scotia B0K 1L0

View all 37 photos

About

. Rare Opportunity! Potential 2 bedroom home, on an established lot with beautiful 2 story 24*24 garage! with views of Pugwash Harbour! The specular property is just waiting for an investor/new owner to design the way they wish!! The potential here is endless: family home, multi-generational property, Air B&B business/Office space, Sr rental spaces and much more! The property is located just 20 minutes to two world class golf courses, 20 minutes to Oxford NS (or the Trans-Canada Highway), 40 minutes to Amherst. Pugwash has so much to offer with all the required amenities, quaint restaurants, vineyard, and great summertime farmer markets seconds from your doorstep. Enjoy swimming, boating, kayaking in our beautiful waters or simply just sit and enjoy the stunning sunsets from your deck. (id:27476)

Property Highlights

MLS® Number
202605381
Type
Single Family
Community Name
Pugwash
Ownership Type
Freehold
Land Size
0.1469 ac

Building

Building Type
Mobile Home
Storeys
1.00
Square Footage
1022 sqft
Bathrooms Total
1
Bedrooms Above Ground
2
Bedrooms Total
2
Amenities
Golf Course, Park, Playground, Shopping, Place of Worship, Beach
Exterior Finish
Vinyl
Fireplace Present
No
Basement Type
None
Basement Features
Building Heating Type
Heating Fuel
Building Cooling Type

Utilities

Water
Well
Utility Sewer
Municipal sewage system

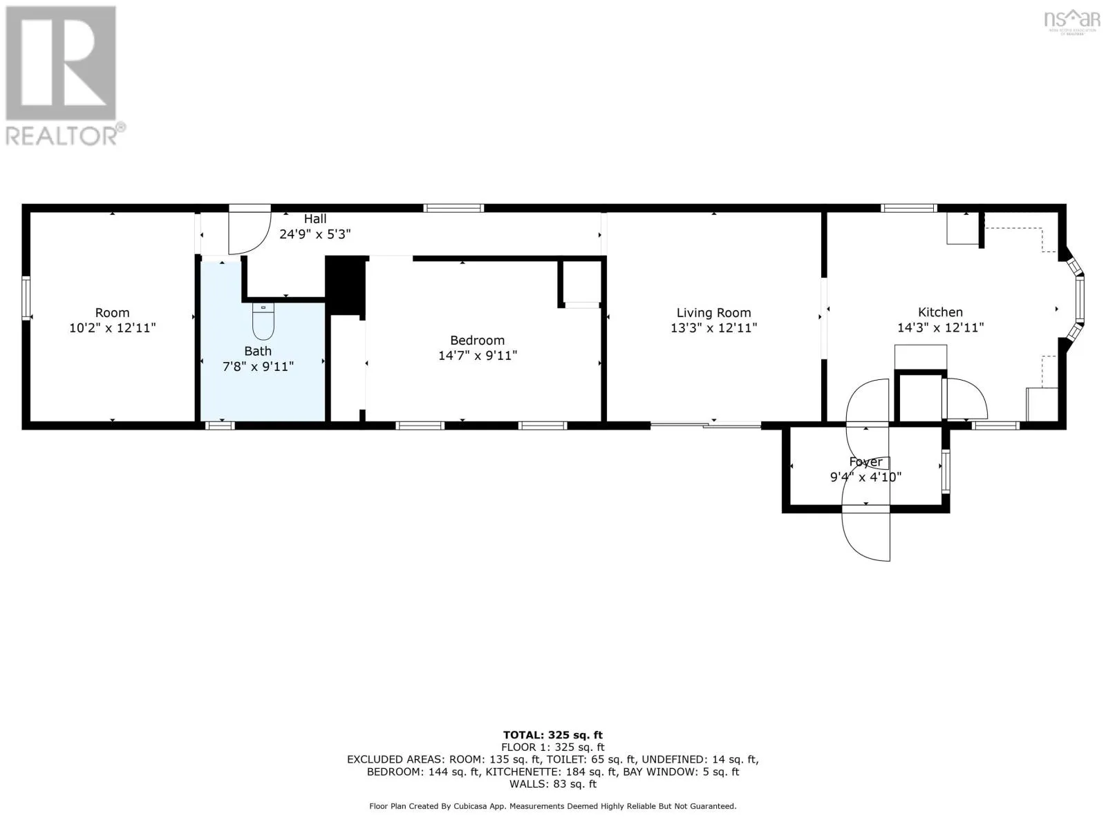
Room Layout

Kitchen
Main level
13x14.2
Living room
Main level
13x13
Primary Bedroom
Main level
10x11
Bedroom
Main level
10.5x11
Bath (# pieces 1-6)
Main level
7.10x10
Porch
Main level
4x9.9
Storage
Main level
3.9x18

Location

Learn more about this property
Listing provided by:
RE/MAX County Line Realty Ltd.
MLS® number:
202605381
Agent:
Lacey Fisher
*Indicates required field
Name is required
Email is required
Please enter a valid phone number (e.g., 416-111-1111).

Community Spotlight: Homes For sale in Your Neighborhood