78 Aralia Lane, Upper Tantallon, Nova Scotia B3Z 0P8

Listed for:
$899,000
4 beds
3 baths
Listed 132 days ago
House for rent: 78 Aralia Lane, Upper Tantallon, Nova Scotia B3Z 0P8

View all 50 photos

About

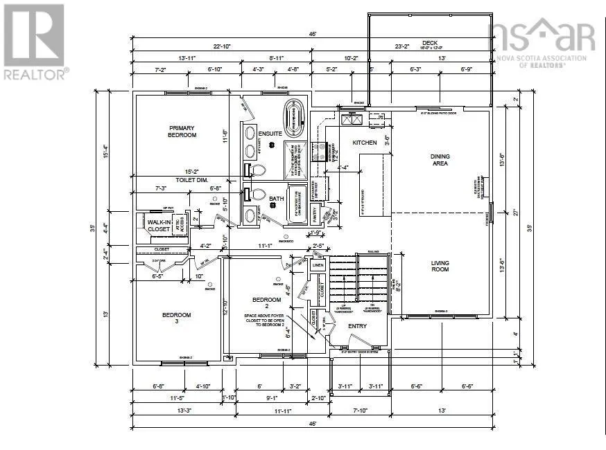
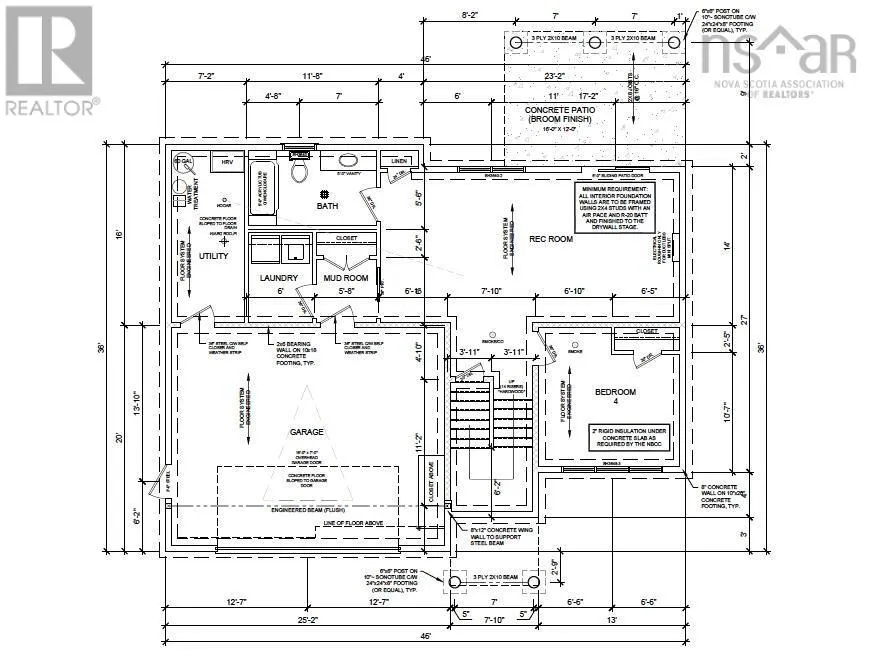
Hammonds Plains Road to Westwood Blvd. Left onto Oceanstone Dr. Then left onto Aralia Lane. Welcome to 78 Aralia Lane. This 4 bedroom, 3 bathroom split entry is located in the beautiful subdivision of Westwood Hills. This home sits on a treelined 1.69 acres with 260 feet of water frontage on Bull Pond. The main floor consists of an open concept kitchen/dining/living space, 3 great sized bedrooms and two full baths, including a primary ensuite. The lower level level includes a 4th bedroom, large family room, a full bath, laundry room and access to the double car garage. Construction is complete and awaiting its new owner! (id:27476)

Property Highlights

MLS® Number
202501562
Type
Single Family
Community Name
Upper Tantallon
Ownership Type
Freehold
Land Size
1.69 ac

Building

Building Type
House
Storeys
1.00
Square Footage
2443 sqft
Bathrooms Total
3
Bedrooms Above Ground
3
Bedrooms Total
4
Exterior Finish
Vinyl
Fireplace Present
No
Basement Type
Basement Features
Building Heating Type
Heating Fuel
Building Cooling Type
Heat Pump

Utilities

Water
Drilled Well
Utility Sewer
Septic System

Room Layout

Recreational, Games room
Lower level
25.1x12.7
Bedroom
Lower level
11.10x9.11
Bath (# pieces 1-6)
Lower level
11.8x5.6
Laundry room
Lower level
11.8x8.4
Dining room
Main level
12.6x11.6
Living room
Main level
13x14.6
Kitchen
Main level
10.4x14.8
Bath (# pieces 1-6)
Main level
5.10x8.11
Bedroom
Main level
10.9x12.2
Bedroom
Main level
10.9x12.4
Bedroom
Main level
13.3x14.8
Ensuite (# pieces 2-6)
Main level
8.11x11.6

Location

Learn more about this property
Listing provided by:
Exit Realty Metro
MLS® number:
202501562
Agent:
Scott Allison
*Indicates required field
Name is required
Email is required
Please enter a valid phone number (e.g., 416-111-1111).

Community Spotlight: Homes For sale in Your Neighborhood