Lw14 209 Lewis Drive, West Bedford, Nova Scotia B4B 0L3

Listed for:
$844,900
4 beds
4 baths
Listed 68 days ago
House for rent: Lw14 209 Lewis Drive, West Bedford, Nova Scotia B4B 0L3

View all 5 photos

About

Hammonds Plains rd to Lewis Dr **Ready to move in by February 28, 2026** Introducing The Bellmore, a beautifully crafted 4-bedroom, 3.5-bath detached home byShaughnessy Homes in Belle Rose Park, West Bedford. Spanning 2,537 sq. ft. across three finished levels on a 34 lot, this homeblends modern style with everyday functionality. The main floor features an open-concept layout with a designer kitchen boasting awalk-in pantry, premium quartz countertops, and soft-close cabinetry. A stylish dining room bump-out adds a touch of elegance,perfect for gatherings. Engineered hardwood flows through the main and upper levels, complemented by an electric fireplace in theliving area. Step outside to a beautifully finished composite deck, providing long-lasting durability with low maintenance. The finishedbasement, with durable laminate flooring, offers flexible space for family or guests. If you're looking for a walk-out basement equippedwith a wet bar, washer and dryer rough in, bedroom, bathroom and a rec room - we have a limited number of The Bellmore walkoutmodels for $859,900, perfect for extended members of the family. Both versions include a fully ducted heat pump with natural gasbackup, plus rough-ins for a gas range, dryer, BBQ, water heater, and a 50 AMP EV charger. Nestled off Larry Uteck Blvd in theserene Belle Rose Park, this home is steps from schools, parks, and amenities. Built with Shaughnessy Homes signature quality,The Bellmore is a rare find in one of Bedfords most desirable communities. (id:27476)

Property Highlights

MLS® Number
202529247
Type
Single Family
Community Name
West Bedford
Ownership Type
Freehold
Land Size
0.1057 ac

Building

Building Type
House
Storeys
2.00
Square Footage
2537 sqft
Bathrooms Total
4
Bedrooms Above Ground
3
Bedrooms Total
4
Amenities
Park, Playground, Public Transit, Shopping
Exterior Finish
Stone, Vinyl
Fireplace Present
Yes
Basement Type
Basement Features
Building Heating Type
Heating Fuel
Building Cooling Type
Heat Pump

Utilities

Water
Municipal water
Utility Sewer
Municipal sewage system

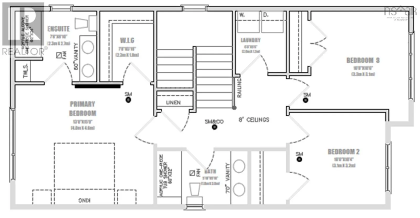
Room Layout

Primary Bedroom
Second level
13 x 15
Ensuite (# pieces 2-6)
Second level
5 Piece
Bedroom
Second level
10.8 x 10.6
Bedroom
Second level
10 x 10.4
Bath (# pieces 1-6)
Second level
4 Piece
Laundry room
Second level
6.8 x 5.6
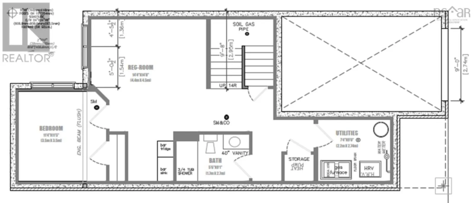
Kitchen
Lower level
8.1 x 13.9
Recreational, Games room
Lower level
14.4 x 14.8
Bedroom
Lower level
11.4 x 11.5
Bath (# pieces 1-6)
Lower level
4 Piece
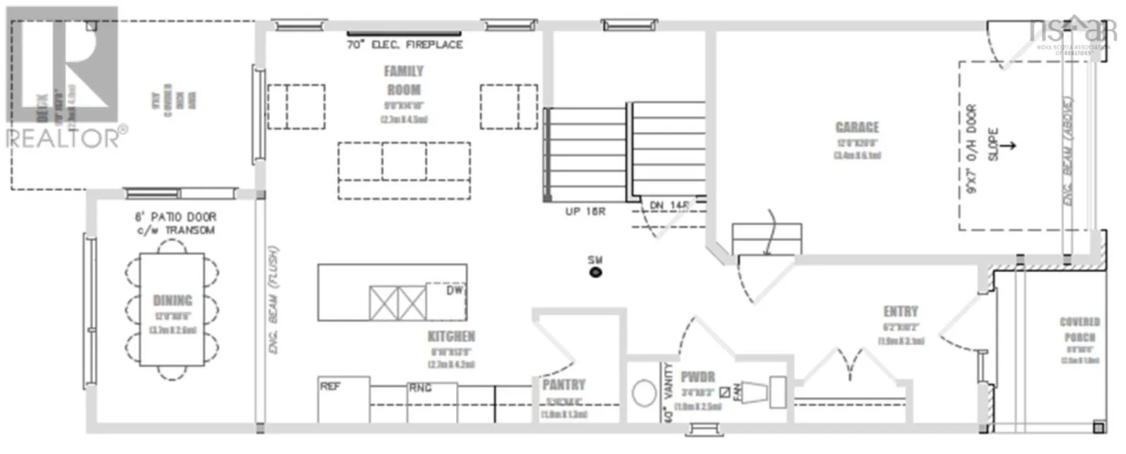
Foyer
Main level
6.2 x 10.2
Bath (# pieces 1-6)
Main level
2 Piece
Living room
Main level
9 x 14.1
Dining room
Main level
12 x 8.6

Location

Learn more about this property
Listing provided by:
Royal LePage Atlantic
MLS® number:
202529247
Agent:
Lorenzo Gallardo
*Indicates required field
Name is required
Email is required
Please enter a valid phone number (e.g., 416-111-1111).