Lw-01 210 Lewis Drive, West Bedford, Nova Scotia B4B 0L3

Listed for:
$864,900
4 beds
4 baths
Listed 66 days ago
House for rent: Lw-01 210 Lewis Drive, West Bedford, Nova Scotia B4B 0L3

View all 5 photos

About

Hammonds Plains Road to Lewis Drive **Ready to move in by February 14, 2026** Welcome to The Bellview, a 4-bed, 3.5-bath detached home by Shaughnessy Homes in the exclusive Belle Rose Park in West Bedford. Spanning over 2,600 sq. ft. on a 34 lot, this three-level residence offers premium living with thoughtful design. The main floor boasts an open concept layout with designer kitchen + walk-in pantry, premium finishes, quartz countertops and modern lighting, seamlessly blending style and function. Step outside to a beautifully finished composite deck, providing long-lasting durability with low maintenance. Enjoy ducted heating and cooling with natural gas backup, plus rough-ins for a gas range, dryer, BBQ, water heater, and a 50 AMP EV charger for future-ready living. Engineered hardwood flows through the main and upper levels, while the finished basement features durable laminate, perfect for versatile living spaces. Nestled off Larry Uteck Blvd, Belle Rose Park is a serene, master-planned community with easy access to schools, shops, and parks. Built with Shaughnessy Homes renowned craftsmanship, The Bellview is part of a limited collection of detached homes in one of Bedfords most desirable neighborhoods. (id:27476)

Property Highlights

MLS® Number
202529341
Type
Single Family
Community Name
West Bedford
Ownership Type
Freehold
Land Size
0.2598 ac

Building

Building Type
House
Storeys
2.00
Square Footage
2601 sqft
Bathrooms Total
4
Bedrooms Above Ground
3
Bedrooms Total
4
Amenities
Park, Playground, Public Transit, Shopping
Exterior Finish
Stone, Vinyl
Fireplace Present
Yes
Basement Type
Basement Features
Building Heating Type
Heating Fuel
Building Cooling Type
Heat Pump

Utilities

Water
Municipal water
Utility Sewer
Municipal sewage system

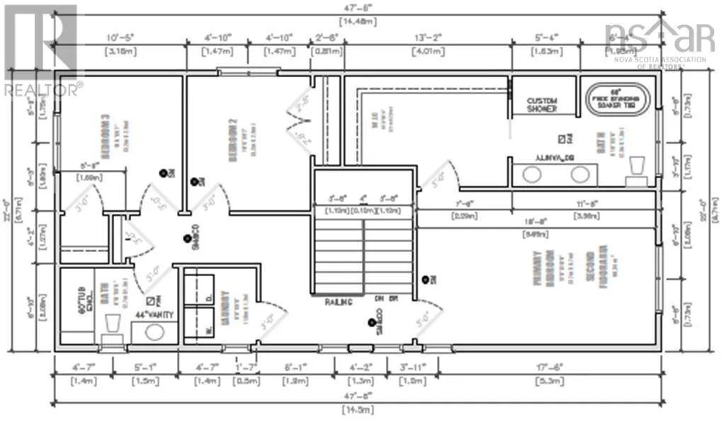
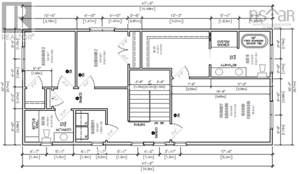
Room Layout

Primary Bedroom
Second level
12 x 18.8
Ensuite (# pieces 2-6)
Second level
5 Piece
Bedroom
Second level
10 x 6.7
Bedroom
Second level
10 x 6.7
Bath (# pieces 1-6)
Second level
4 Piece
Laundry room
Second level
6 x 5.8
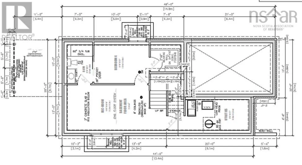
Kitchen
Lower level
9 x 10.2
Recreational, Games room
Lower level
10.6 x 18.1
Bedroom
Lower level
8.1 x 12.7
Bedroom
Lower level
8.1 x 12.7
Bath (# pieces 1-6)
Lower level
4 Piece
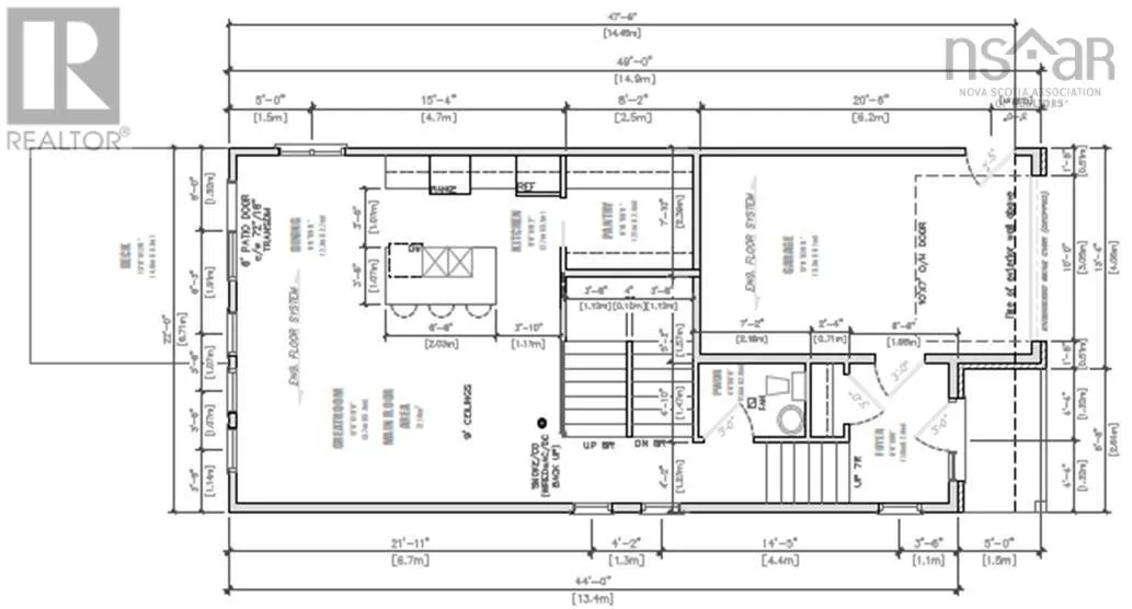
Foyer
Main level
6 x 8.6
Bath (# pieces 1-6)
Main level
2 Piece
Living room
Main level
12 x 19.6
Dining room
Main level
9 x 9

Location

Learn more about this property
Listing provided by:
Royal LePage Atlantic
MLS® number:
202529341
Agent:
Lorenzo Gallardo
*Indicates required field
Name is required
Email is required
Please enter a valid phone number (e.g., 416-111-1111).