50 Mulberry Court, Amherstburg, Ontario N9V 1N3

Listed for:
$699,444
2 beds
2 baths
Listed 9 days ago
House for rent: 50 Mulberry Court, Amherstburg, Ontario N9V 1N3

View all 34 photos

Learn more about this property
Listing provided by:
BOB PEDLER REAL ESTATE LIMITED
MLS® number:
25028451
Agent:
Joe Shaw
*Indicates required field
Name is required
Email is required
Please enter a valid phone number (e.g., 416-111-1111).

About

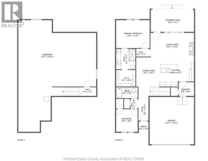
SIMCOE ST. TO MULBERRY Welcome to Mulberry Court, a small, quiet, private development on its own with no through traffic, conveniently located for all that Amherstburg has to offer. 1315 sq. ft. Stone and stucco Raised Ranch, freehold townhome. Quality construction by Sunset Luxury Homes Inc. Features include, Engineered hardwood, tile in wet areas, 9'ceilings with step up boxes, granite or quartz countertops, generous allowances, gas FP, large covered rear porch, concrete drive, HRV, glass shower ensuite, walk-in, finished double garage, full basement, and much more. Contact LBO for all the additional info, other lots available, other sizes and plans, more options etc. (id:27476)

Property Highlights

MLS® Number
25028451
Type
Single Family
Ownership Type
Freehold
Land Size
40 X 106 FT APPROX

Building

Building Type
House
Storeys
1.00
Bathrooms Total
2
Bedrooms Above Ground
2
Bedrooms Total
2
Exterior Finish
Stone, Concrete/Stucco
Fireplace Present
Yes
Basement Type
Basement Features
Building Heating Type
Forced air
Heating Fuel
Natural gas
Building Cooling Type
Central air conditioning

Location

Street Spotlight - For sale