55 Mulberry Court, Amherstburg, Ontario N9V 1N3

Listed for:
$699,444
2 beds
2 baths
Listed 165 days ago
Row / Townhouse for rent: 55 Mulberry Court, Amherstburg, Ontario N9V 1N3

View all 31 photos

About

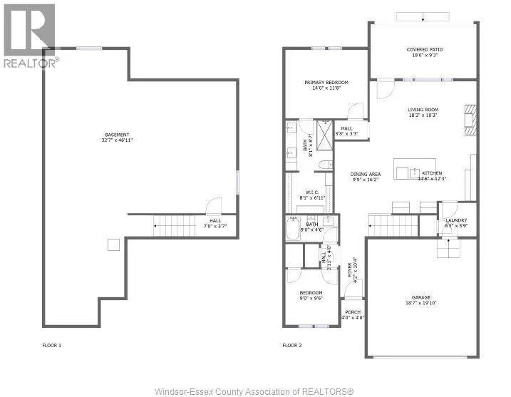
Simcoe St. to Mulberry WINTER SALE - LIMITED TIME ONLY! Welcome to Mulberry Court, a small, quiet private development, no through traffic, conveniently located for all that Amherstburg has to offer. 1315 sq.ft. Stone and stucco Ranch, freehold townhome. Quality construction by Sunset Luxury Homes Inc. Features include engineered hardwood throughout, tile in wet areas, 9' ceilings with step up boxes, granite or quartz countertops, generous allowances, gas FP, Pot Lights, large covered rear porch, concrete drive, HRV, glass shower Ensuite, walk-in, finished double garage. Contact LBO for all the additional info, other lots available, other sizes and plans, more options etc. On a premium included cul-de-sac lot. (id:27476)

Property Highlights

MLS® Number
25031100
Type
Single Family
Ownership Type
Freehold
Land Size
26 X IRREG (ON CURVE)

Building

Building Type
Row / Townhouse
Storeys
1.00
Bathrooms Total
2
Bedrooms Above Ground
2
Bedrooms Total
2
Exterior Finish
Stone, Concrete/Stucco
Fireplace Present
Yes
Basement Type
Basement Features
Building Heating Type
Forced air
Heating Fuel
Natural gas
Building Cooling Type
Central air conditioning

Location

Learn more about this property
Listing provided by:
BOB PEDLER REAL ESTATE LIMITED
MLS® number:
25031100
Agent:
Joe Shaw
*Indicates required field
Name is required
Email is required
Please enter a valid phone number (e.g., 416-111-1111).

Street Spotlight - For sale