8350 County Road 15 Road, Augusta, Ontario K0G 1R0

Listed for:
$1,099,900
6 beds
6 baths
Listed 99 days ago
Other for rent: 8350 County Road 15 Road, Augusta, Ontario K0G 1R0

View all 50 photos

Learn more about this property
Listing provided by:
RE/MAX HOMETOWN REALTY INC
MLS® number:
X12434507
Agent:
Bambi Marshall
*Indicates required field
Name is required
Email is required
Please enter a valid phone number (e.g., 416-111-1111).

About

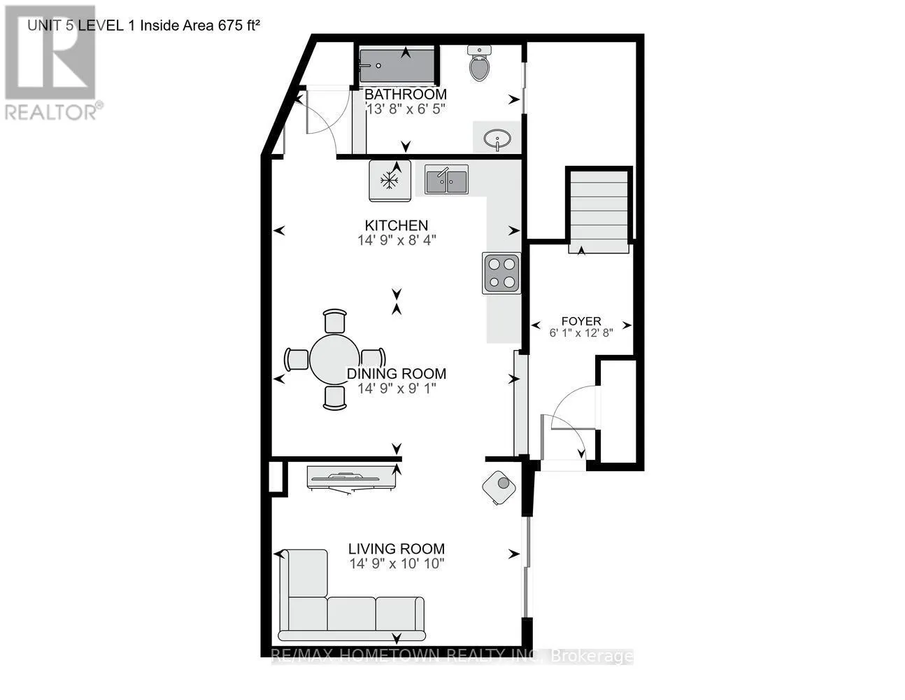
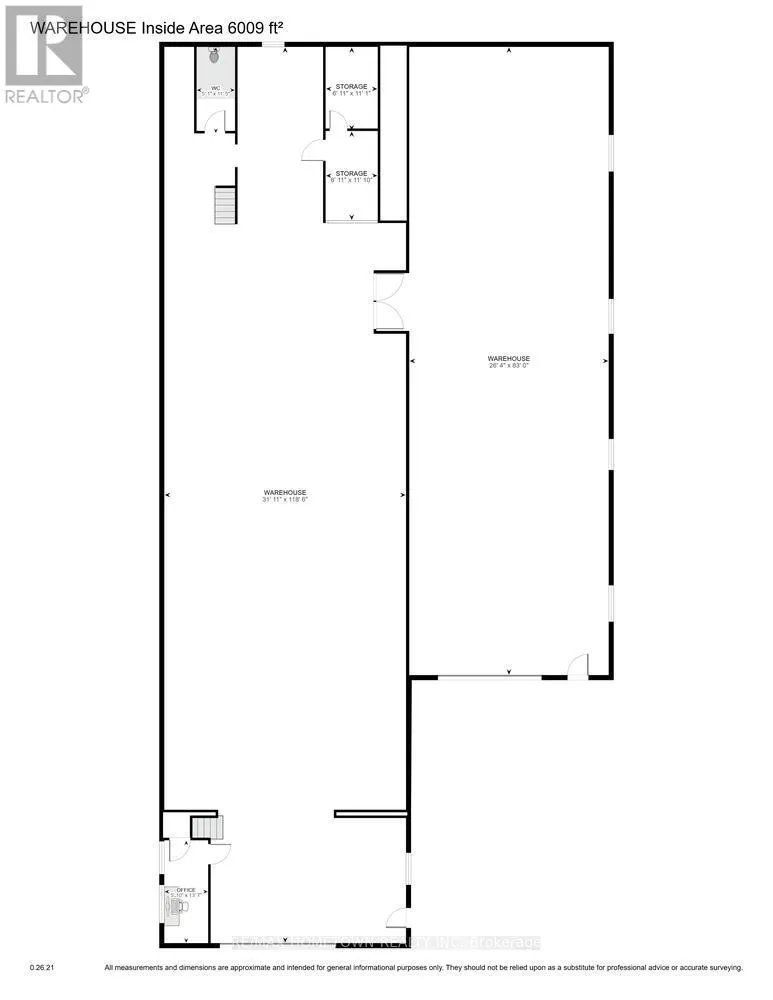
Cross Streets: Cty Road 15. ** Directions: After coming off 401, head north on Cty Road 15 and travel for approx. 10 minutes. Just as you come into North Augusta the house will be located on the right-hand side of Cty Rd 15 to #8350. Exciting investment opportunity in the quaint village of North Augusta! Situated on over 1 acre of land, this property offers 6 fully renovated rental units plus a large garage space, perfect for storage or workshop---a rare find with incredible flexibility. Prime Location: Only a short drive to Brockville, Highway 401, Kemptville, Merrickville, and Ottawa. Renovated Units: Each apartment comes with appliances, outdoor storage, and its own porch (except unit 4). All but one include a propane fireplace (except unit 6) for cozy comfort. Peace of Mind: A separate utility room houses a generator that keeps power running for all 6 units and the garage - no outages to worry about. Modern Upgrades: Two brand-new septic systems and a paved driveway are already completed. Income-turnkey: Live in one unit while rental income helps pay the mortgage. Versatile Garage: A large, heated space ideal for equipment storage or a workshop. Opportunities like this are rare: a turnkey income property with built-in security, comfort, and long-term potential. Rentals all include 2 parking spots, 1 locker, heat and hydro. #1 - $525.00 (bachelor) / #2 - 1950.00 / #3 - 1800.00 / #4 - 1103.16 / #5 - 1600.00 / #6 - 1550.00 / Garage is 1800.00(or you can split and smaller side 1000.00 and 1200.00 for the bigger side)= 10,328.16 per month = 123,937.92 for the year ---------- Taxes - $8100.00 / Insurance - $7400.00 / Heating - $7348.00 / Electricity - $17,890.00 = 40,738.00 ---------------- NET INCOME is $ 83,203.52 divided by 12 net per month is approx. 6933.00 per month with current rents (id:27476)

Property Highlights

MLS® Number
X12434507
Type
Multi-family
Community Name
809 - Augusta Twp
Land Size
120.5 FT
Parking Space Total
30

Building

Building Type
Other
Storeys
1.50
Square Footage
5000 - 100000 sqft
Bathrooms Total
6
Bedrooms Above Ground
6
Bedrooms Total
6
Amenities
Fireplace(s)
Exterior Finish
Steel
Fireplace Present
Yes
Basement Type
None
Basement Features
Building Heating Type
Baseboard heaters
Heating Fuel
Other
Building Cooling Type
Window air conditioner

Utilities

Utility Sewer
Septic System

Location