2 - 544 Bayfield Street, Barrie, Ontario L4M 5A2

Listed for:
$18
0 beds
0 baths
Listed 74 days ago
2 - 544 Bayfield Street, Barrie, Ontario L4M 5A2

View all 3 photos

Learn more about this property
More info:
Sutton Group Innovative Realty Inc.
MLS® number:
S10421055
Agent:
Darya Strilyana
Phone:
*Indicates required field
Name is required
Email is required
Please enter a valid phone number (e.g., 416-111-1111).

About

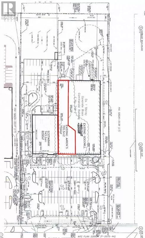
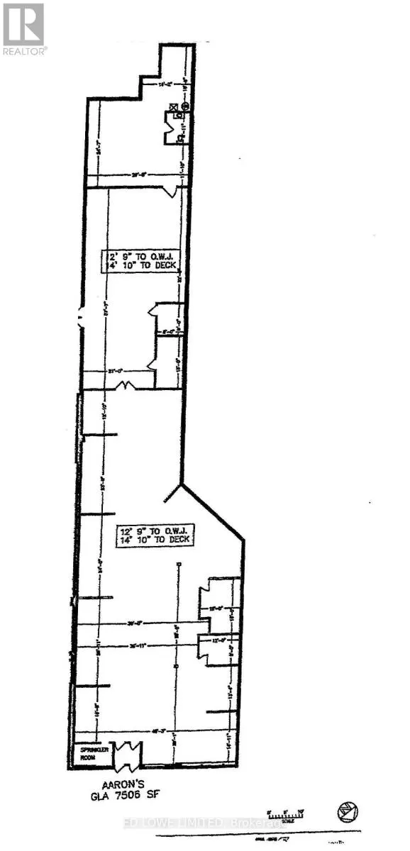
400 North to Bayfield St 7506 s.f. Unit for Lease in high profile neighborhood shopping centre at Bayfield St location on the Golden Mile. Great exposure and plenty of parking. Unit between Scotiabank and Pet Smart. High traffic plaza/area. (id:27476)

Property Highlights

MLS® Number
S10421055
Type
Retail
Community Name
Bayfield
Land Size
250 x 600 FT

Building

Square Footage
7506 sqft
Amenities
Highway, Recreation
Fireplace Present
No
Basement Type
Basement Features
Building Heating Type
Forced air
Heating Fuel
Natural gas
Building Cooling Type
Fully air conditioned

Utilities

Water
Municipal water

Location

Street Spotlight - For lease