152 Greer Street, Barrie, Ontario L9J 0R5

Listed for:
$789,000
4 beds
3 baths
Listed 17 days ago
Row / Townhouse for rent: 152 Greer Street, Barrie, Ontario L9J 0R5

View all 42 photos

Learn more about this property
More info:
Sutton Group Innovative Realty Inc.
MLS® number:
S12309825
Agent:
Darya Strilyana
Phone:
*Indicates required field
Name is required
Email is required
Please enter a valid phone number (e.g., 416-111-1111).

About

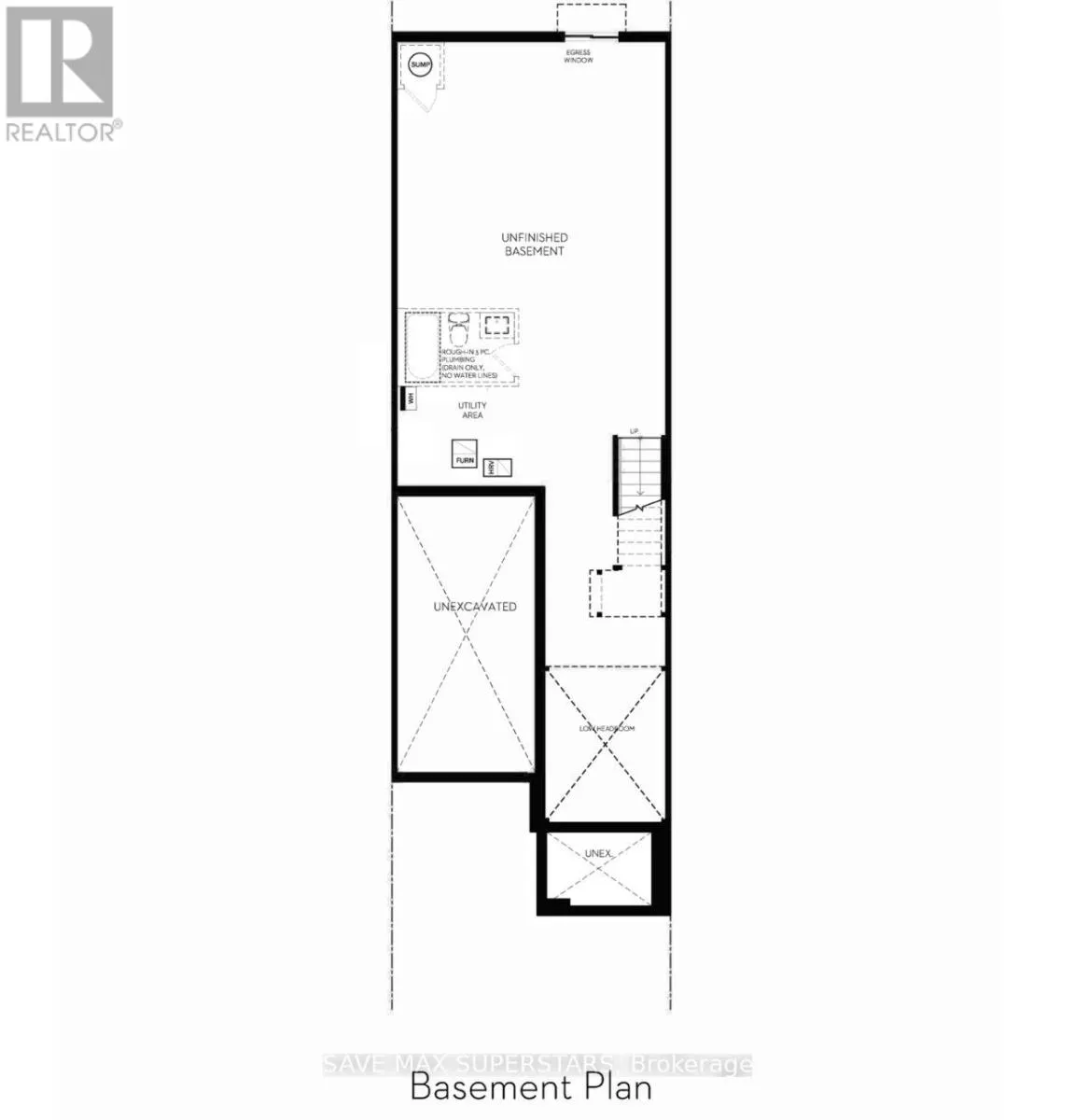
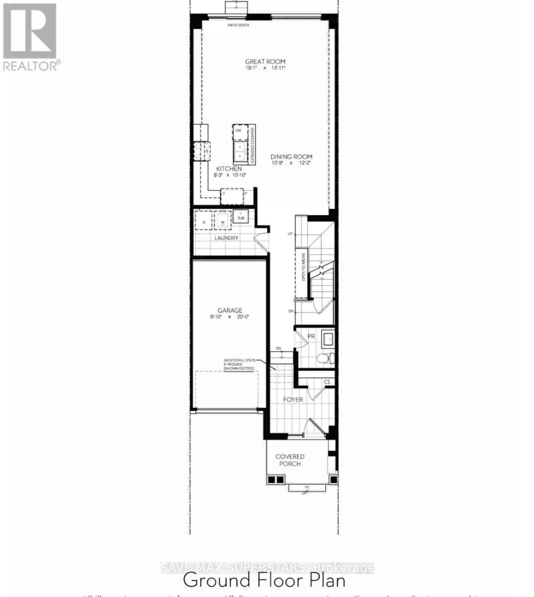
Mapleview Dr E. & Greer St. Stunning 1-year-old, 1985 sq ft townhouse at 152 GREER ST, featuring over $66,000 in premium builder upgrades and 9 ft ceilings on the main floor. The chef-inspired kitchen showcases sleek slate grey QTK cabinets, luxurious Calacatta Nuvo quartz countertops, a Cyclone chimney hood, and an elegant Oriental White marble chevron backsplash. Stainless steel appliances, a Blanco undermount sink, and custom cabinetry with a 3-bin pull-out recycling unit and magic corner cabinet combine style with smart storage. The spacious main floor features an open-concept great room with upgraded hardwood flooring and an abundance of natural light, as well as a large dining area. The main-floor laundry includes extended cabinetry for added comfort and convenience. The unfinished look-out basement features a bathroom rough-in and a 200-AMPelectrical service, offering excellent future development potential. Upstairs are three bright bedrooms and a large loft with a walk-in closet ideal for a home office or extra living space. The primary bedroom features his and her walk-in closets, hardwood floors, and a 3-pieceensuite. Secondary bedrooms also offer hardwood flooring, ample closet space, and oversized windows. Bathrooms throughout include concrete countertops, raised vanities, and modern hardware for a polished finish. Located just minutes from Barrie South GO Station (2-minutedrive/15-minute walk), with quick access to shopping, grocery stores (Costco, Metro, Walmart, Sobeys, Zehrs), restaurants, schools, parks, golf, Highway 400, and Friday Harbour. This move-in-ready home offers a perfect blend of style, function, and location don't miss this exceptional opportunity! (id:27476)

Property Highlights

MLS® Number
S12309825
Type
Single Family
Community Name
Rural Barrie Southeast
Ownership Type
Freehold
Land Size
20 x 91.9 FT|under 1/2 acre
Parking Space Total
2

Building

Building Type
Row / Townhouse
Storeys
2.00
Square Footage
1500 - 2000 sqft
Bathrooms Total
3
Bedrooms Above Ground
3
Bedrooms Total
4
Amenities
Golf Nearby, Park, Public Transit, Schools
Exterior Finish
Brick, Vinyl siding
Fireplace Present
No
Basement Type
N/A (Unfinished)
Basement Features
Building Heating Type
Forced air
Heating Fuel
Natural gas
Building Cooling Type
Central air conditioning

Utilities

Water
Municipal water
Utility Sewer
Sanitary sewer

Room Layout

Primary Bedroom
Second level
4.28 m x 4.24 m
Bedroom 2
Second level
2.4 m x 3.3 m
Bedroom 3
Second level
2.7 m x 3.3 m
Kitchen
Main level
2.5 m x 3.03 m
Dining room
Main level
3.37 m x 3.6 m
Great room
Main level
5.8 m x 3.9 m
Loft
Main level
2.7 m x 3.3 m

Location