11715 Plank Road, Bayham, Ontario N0J 1H0

Listed for:
$839,900
3 beds
3 baths
Listed 21 days ago
House for rent: 11715 Plank Road, Bayham, Ontario N0J 1H0

View all 41 photos

About

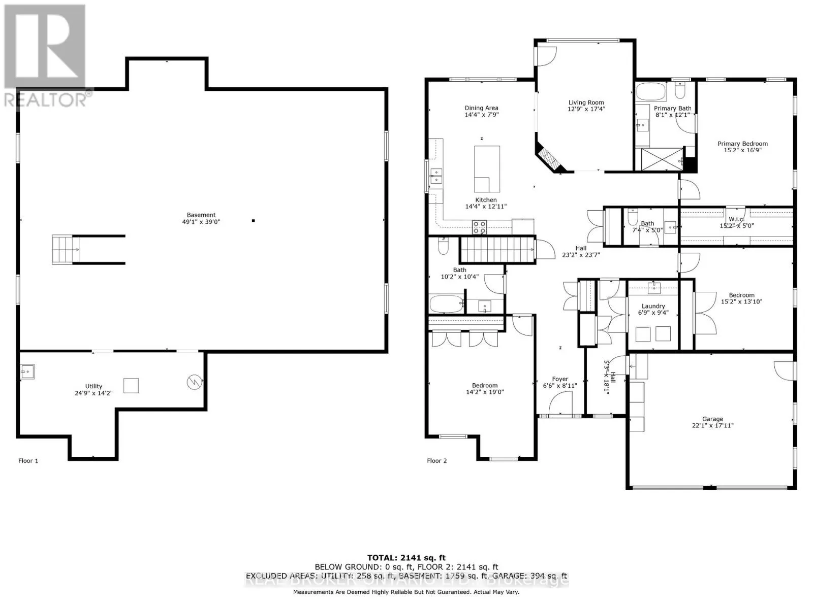
Cross Streets: EDEN LINE. ** Directions: Eden Line to Plank Rd. This stunning 2,141 sq. ft. bungalow is set on a picturesque lot and offers exceptional curb appeal with a double-car garage, elegant stone accents, metal roof, and sleek black trim. Beautiful landscaping and a wide concrete walkway welcome you into a thoughtfully designed home featuring soaring 9-foot ceilings and upscale finishes throughout. The gourmet kitchen is a showstopper, complete with rich dark cabinetry extending to the ceiling, striking high-contrast quartz countertops, upgraded fixtures, and tiled floors and backsplash. The oversized island is ideal for casual dining and entertaining, while the adjoining dinette offers a more formal dining space with walk-out access to the raised deck-perfect for indoor/outdoor living and enjoying scenic views. The living room invites you to unwind by the cozy stone corner gas fireplace. Additional main-floor conveniences include a stylish 2-piece powder room and a separate laundry room with custom cabinetry and quartz counters. The primary bedroom serves as a private retreat, featuring a luxurious 4-piece ensuite with a stunning glass shower and a relaxing soaker tub. Two additional bedrooms offer generous space for family, guests, or a home office, and are supported by a full 4-piece bathroom. The expansive double-car garage provides ample room for vehicles and storage, while the single-wide driveway expands to a triple-wide apron, offering abundant parking. The unfinished basement includes a finished staircase, bathroom rough-in, and deep windows-an excellent opportunity to create additional living space tailored to your needs. Ideally located close to schools, shopping, and everyday amenities, this exceptional home is also just 30 minutes from Amazon, Toyota, and Volkswagen's Battery Plant-making it a perfect blend of modern style, functionality, and convenient commuting. (id:27476)

Property Highlights

MLS® Number
X12875146
Type
Single Family
Community Name
Eden
Ownership Type
Freehold
Land Size
75.5 x 224.8 FT|under 1/2 acre
Parking Space Total
10

Building

Building Type
House
Storeys
1.00
Square Footage
2000 - 2500 sqft
Bathrooms Total
3
Bedrooms Above Ground
3
Bedrooms Total
3
Amenities
Fireplace(s)
Exterior Finish
Wood, Stone
Fireplace Present
Yes
Basement Type
Full (Unfinished)
Basement Features
Building Heating Type
Forced air
Heating Fuel
Natural gas
Building Cooling Type
Central air conditioning, Air exchanger

Utilities

Water
Drilled Well
Utility Sewer
Sanitary sewer

Room Layout

Foyer
Main level
1.98 m x 2.72 m
Bathroom
Main level
2.24 m x 1.52 m
Kitchen
Main level
3.95 m x 4.37 m
Dining room
Main level
2.36 m x 4.37 m
Living room
Main level
5.28 m x 3.89 m
Primary Bedroom
Main level
5.11 m x 4.62 m
Bedroom 2
Main level
5.79 m x 4.32 m
Bedroom 3
Main level
4.22 m x 4.62 m
Laundry room
Main level
2.84 m x 2.06 m
Bathroom
Main level
3.68 m x 2.44 m
Bathroom
Main level
3.15 m x 3.08 m

Location

Learn more about this property
Listing provided by:
REAL BROKER ONTARIO LTD.
MLS® number:
X12875146
Agent:
Chris Costabile
*Indicates required field
Name is required
Email is required
Please enter a valid phone number (e.g., 416-111-1111).

Street Spotlight - For sale