25 Edison Drive, Bayham, Ontario N0J 1Z0

Listed for:
$609,000
3 beds
2 baths
Listed 7 days ago
House for rent: 25 Edison Drive, Bayham, Ontario N0J 1Z0

View all 47 photos

About

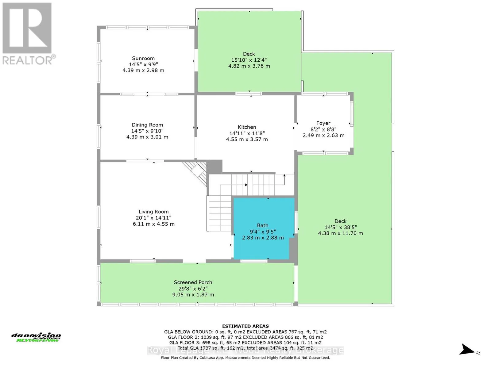
Cross Streets: Ann St. ** Directions: Head North on Edison Drive from Plank Road. Rare opportunity to own two properties for the price of one. This offering includes a beautifully renovated century home situated on over 0.5 acres, plus a separate 1-acre riverfront lot located directly across the street.The main home features a spacious and well-maintained layout, blending original character with modern updates. The renovated kitchen is equipped with stainless steel appliances and slate flooring, and connects conveniently to a mudroom. A generous dining room with built-in cabinetry, quality millwork, and ample natural light anchors the main living area. Additional living spaces include a cozy living room, a rear oversized sunroom, and a front four-season sunroom with views toward the riverfront lot.The main floor also offers a renovated 3-piece bathroom with laundry. Upstairs, there are three bedrooms and an updated 4-piece bathroom featuring a clawfoot tub.Exterior features include a detached double car garage, fully fenced yard, and a large deck with panoramic views of the surrounding valley and river.The included riverfront parcel offers a private recreational retreat complete with a fire pit, small cabin, and solar power system.A unique property ideal for those seeking space, privacy, and direct access to nature. (id:27476)

Property Highlights

MLS® Number
X12980060
Type
Single Family
Community Name
Vienna
Ownership Type
Freehold
Land Size
126 x 199 FT
Parking Space Total
12

Building

Building Type
House
Storeys
1.50
Square Footage
1500 - 2000 sqft
Bathrooms Total
2
Bedrooms Above Ground
3
Bedrooms Total
3
Exterior Finish
Vinyl siding
Fireplace Present
No
Basement Type
Full
Basement Features
Building Heating Type
Forced air
Heating Fuel
Natural gas
Building Cooling Type
None

Utilities

Water
Municipal water
Utility Sewer
Sanitary sewer

Location

Learn more about this property
Listing provided by:
Royal Lepage R.E. Wood Realty Brokerage
MLS® number:
X12980060
Agent:
David Bennett
*Indicates required field
Name is required
Email is required
Please enter a valid phone number (e.g., 416-111-1111).