435 Mara Rd Road, Beaverton, Ontario L0K 1A0

Listed for:
$899,900
0 beds
0 baths
Listed 50 days ago
435 Mara Rd Road, Beaverton, Ontario L0K 1A0

View all 36 photos

Learn more about this property
Listing provided by:
RE/MAX ALL-STARS REALTY INC.
MLS® number:
40773379
Agent:
Darrah Smith
*Indicates required field
Name is required
Email is required
Please enter a valid phone number (e.g., 416-111-1111).

About

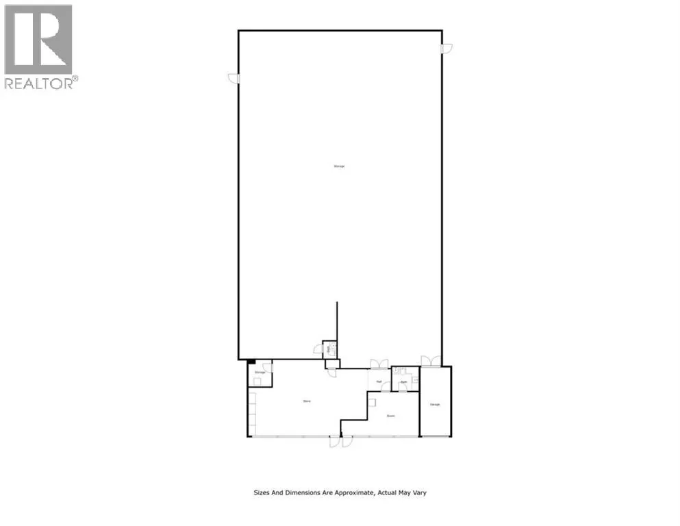
Mara Rd. & Dundas St. Beaverton Prime Commercial/Retail Opportunity In The Heart Of Beaverton! Offering Approximately 6,000+ Sq. Ft. Of Versatile, Open Space, This Well-Maintained Concrete Block Building Presents Endless Possibilities For A Variety Of Commercial Or Retail Uses. Ideally Situated On One Of Beaverton’s Main Roads, This High-Visibility Location Ensures Excellent Exposure And Accessibility For Customers And Clients Alike. The Expansive Interior Can Be Easily Adapted Or Divided Into Multiple Smaller Retail Or Service Units, Making It A Flexible Option For Investors Or Owner-Operators. Features Include A Solid Concrete Floor, One Transport Truck Loading Bay At The Front For Easy Deliveries, And Two Convenient 2-Piece Bathrooms. With Its Durable Construction And Practical Layout, This Property Is Perfect For Retail, Office Space, Laundromat, Service-Based Businesses Or Many Other Possibilities (Subject To Municipal Approvals). Take Advantage Of This Rare Opportunity To Establish Or Expand Your Business In A Growing, Sought-After Community! Sale Of Building And Property. (id:27476)

Property Highlights

MLS® Number
40773379
Type
Other
Ownership Type
Freehold
Land Size
under 1/2 acre

Building

Storeys
1.00
Square Footage
6400 sqft
Fireplace Present
No
Basement Type
None
Basement Features
Building Heating Type
Heating Fuel
Building Cooling Type

Utilities

Water
Municipal water
Utility Sewer
Septic System

Location