60 Summit (lot 24) Crescent, Belleville, Ontario K8N 0A2

Listed for:
$649,000
3 beds
2 baths
Listed 95 days ago
House for rent: 60 Summit (lot 24) Crescent, Belleville, Ontario K8N 0A2

View all 31 photos

About

Hwy. 401 to Hwy. 37 (Cannifton Road) to McFarland Street to Summit Crescent. Welcome to Highpoint Village, where modern comfort meets community charm! Built by BrauerHomes, this thoughtfully designed MOIRA Model sits on a peaceful crescent just steps from parks, schools, and the Quinte Sports & Wellness Centre. Inside, 9-foot ceilings and an open-concept layout create a spacious, inviting atmosphere. The sleek kitchen with a large island flows effortlessly into the bright living area, perfect for gatherings. The main-floor primary suite offers a walk-in closet and private ensuite, while the main-floor laundry adds everyday convenience. With a sodded lot, stone walkway, customizable finishes, and an optional finished basement, this home blends style, function, and value in one beautiful package. Don't miss your opportunity to live beautifully in a growing community. Contact the listing agent for full details today. (id:27476)

Property Highlights

MLS® Number
X12501970
Type
Single Family
Community Name
Belleville Ward
Ownership Type
Freehold
Land Size
49.1 x 101.5 FT|under 1/2 acre
Parking Space Total
4

Building

Building Type
House
Storeys
1.00
Square Footage
1100 - 1500 sqft
Bathrooms Total
2
Bedrooms Above Ground
3
Bedrooms Total
3
Amenities
Public Transit, Park
Exterior Finish
Vinyl siding, Brick
Fireplace Present
No
Basement Type
Full
Basement Features
Building Heating Type
Forced air
Heating Fuel
Natural gas
Building Cooling Type
Central air conditioning

Utilities

Water
Municipal water
Utility Sewer
Sanitary sewer

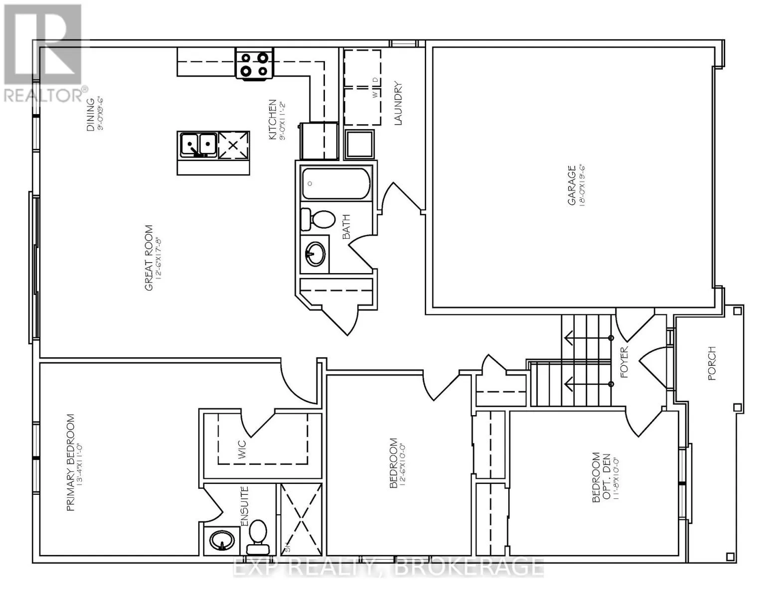
Room Layout

Kitchen
Main level
2.74 m x 3.4 m
Dining room
Main level
2.74 m x 2.9 m
Great room
Main level
3.81 m x 5.39 m
Primary Bedroom
Main level
4.06 m x 3.35 m
Bedroom 2
Main level
3.81 m x 3.05 m
Bedroom 3
Main level
3.56 m x 3.05 m

Location

Learn more about this property
Listing provided by:
EXP REALTY, BROKERAGE
MLS® number:
X12501970
Agent:
Brandon Nadeau
*Indicates required field
Name is required
Email is required
Please enter a valid phone number (e.g., 416-111-1111).

Community Spotlight: Homes For sale in Your Neighborhood