34 Royal Links Circle, Brampton, Ontario L6P 2Z9

Listed for:
$1,399,990
6 beds
5 baths
Listed 139 days ago
House for rent: 34 Royal Links Circle, Brampton, Ontario L6P 2Z9

View all 33 photos

About

Mayfield Rd & Airport Rd Welcome home. This beautiful property and the surrounding area is an example of the pride of home ownership. Immaculately well-kept, this home offers a total of six bedrooms, exquisite and classic finishes. Crown mouldings, high ceilings and no stucco on the first floor. A completely independent unit in the basement with top-of-the-line modern touches. The Basement separate entry was a builder addition. This home is not to be missed. The upstairs boasts four well-appointed bedrooms, a master en-suite, a Jack and Jill bathroom, and a hallway bathroom. As well as a bright and beautiful vaulted area overlooking the entrance. This home sits on an immaculate, extra-wide lot. Surrounded by equally meticulous neighbours, this street is among the most desirable areas to live in. (id:27476)

Property Highlights

MLS® Number
W12606402
Type
Single Family
Community Name
Vales of Castlemore North
Ownership Type
Freehold
Land Size
53.2 x 85.4 FT|under 1/2 acre
Parking Space Total
4

Building

Building Type
House
Storeys
2.00
Square Footage
2500 - 3000 sqft
Bathrooms Total
5
Bedrooms Above Ground
4
Bedrooms Total
6
Amenities
Place of Worship, Park, Schools, Public Transit
Exterior Finish
Brick, Stone
Fireplace Present
Yes
Basement Type
N/A (Finished), N/A
Basement Features
Separate entrance
Building Heating Type
Forced air
Heating Fuel
Natural gas
Building Cooling Type
Central air conditioning

Utilities

Water
Municipal water
Utility Sewer
Sanitary sewer

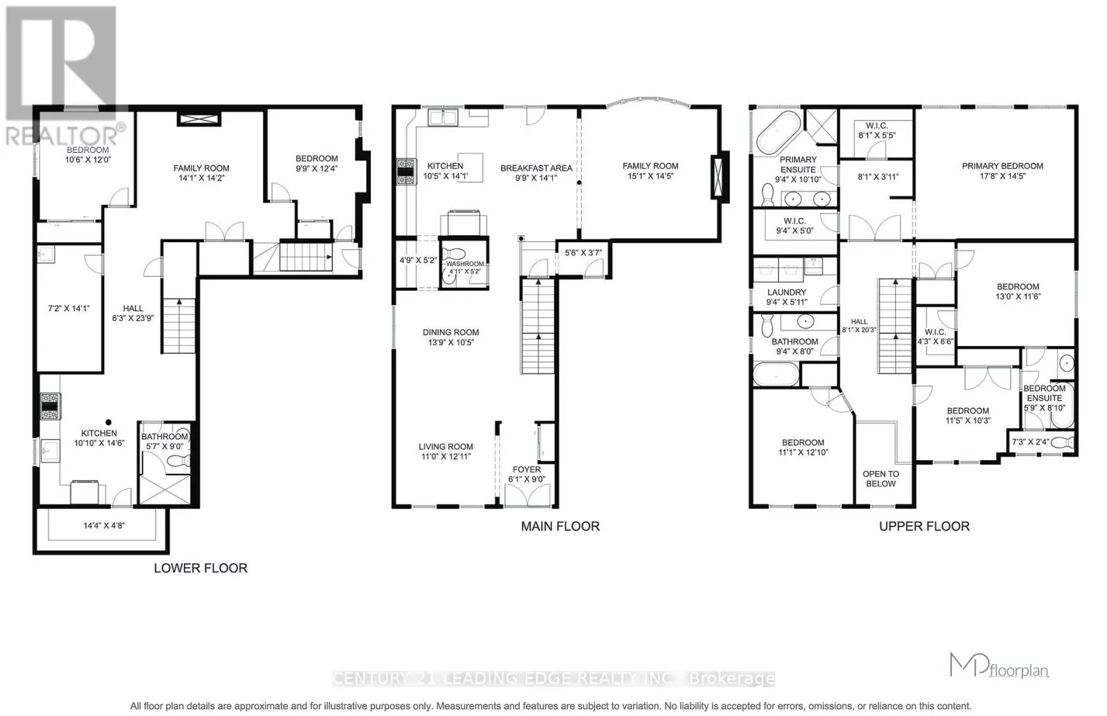
Room Layout

Primary Bedroom
Second level
5.49 m x 4.57 m
Bedroom 2
Second level
3.35 m x 3.81 m
Bedroom 3
Second level
3.36 m x 3.3 m
Bedroom 4
Second level
3.96 m x 3.35 m
Laundry room
Second level
2.85 m x 1.83 m
Bedroom
Basement
3.67 m x 3.2 m
Bedroom
Basement
3.76 m x 2.88 m
Recreational, Games room
Basement
4.34 m x 4.3 m
Living room
Main level
4.27 m x 7.17 m
Dining room
Main level
4.27 m x 7.17 m
Family room
Main level
4.57 m x 4.4 m
Kitchen
Main level
3.04 m x 4.4 m

Location

Learn more about this property
Listing provided by:
CENTURY 21 LEADING EDGE REALTY INC.
MLS® number:
W12606402
Agent:
Harmeet Singh Acharaya
*Indicates required field
Name is required
Email is required
Please enter a valid phone number (e.g., 416-111-1111).

Community Spotlight: Homes For sale in Your Neighborhood