241 Darling Street, Brantford, Ontario N3S 3X3

Listed for:
$1,265,000
9 beds
6 baths
Listed 59 days ago
Triplex for rent: 241 Darling Street, Brantford, Ontario N3S 3X3

View all 27 photos

Learn more about this property
Listing provided by:
Re/Max Twin City Realty Inc.
MLS® number:
40692112
Agent:
Darryl Van Sickle
*Indicates required field
Name is required
Email is required
Please enter a valid phone number (e.g., 416-111-1111).

About

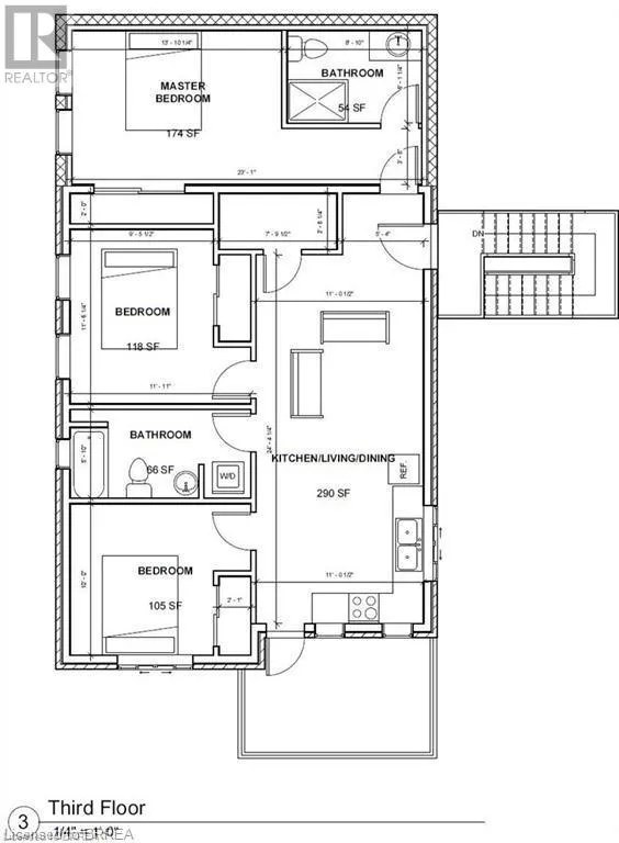
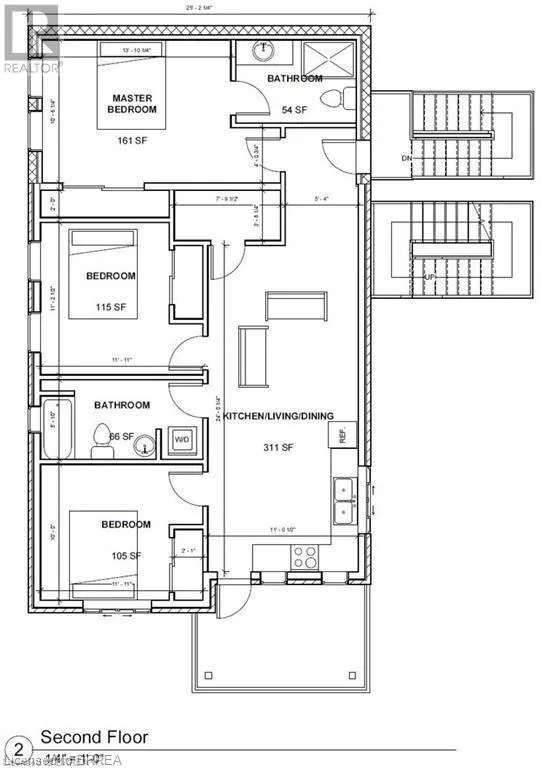
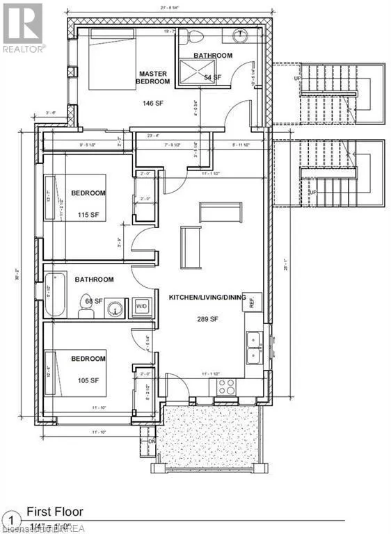
Murray St Fully rented triplex generating $6,300/month in rental income, with all utilities paid by the tenants. Each of the three self-contained units includes its own furnace and air conditioner. Units offer 3 bedrooms and 2 bathrooms, including a private ensuite in the primary bedroom. Modern layout with balconies and quality finishes throughout. (id:27476)

Property Highlights

MLS® Number
40692112
Type
Multi-family
Ownership Type
Freehold
Land Size
under 1/2 acre
Parking Space Total
3

Building

Building Type
Triplex
Storeys
3.00
Square Footage
2950 sqft
Bathrooms Total
6
Bedrooms Total
9
Amenities
Park, Public Transit
Exterior Finish
Stucco
Fireplace Present
No
Basement Type
None
Basement Features
Building Heating Type
Forced air
Heating Fuel
Natural gas
Building Cooling Type
Central air conditioning

Utilities

Water
Municipal water
Utility Sewer
Municipal sewage system

Location