902 - 9 Bonheur Court, Brantford, Ontario N3P 1Z5

Listed for:
$399,900
2 beds
1 baths
Listed 219 days ago
Apartment for rent: 902 - 9 Bonheur Court, Brantford, Ontario N3P 1Z5

View all 24 photos

About

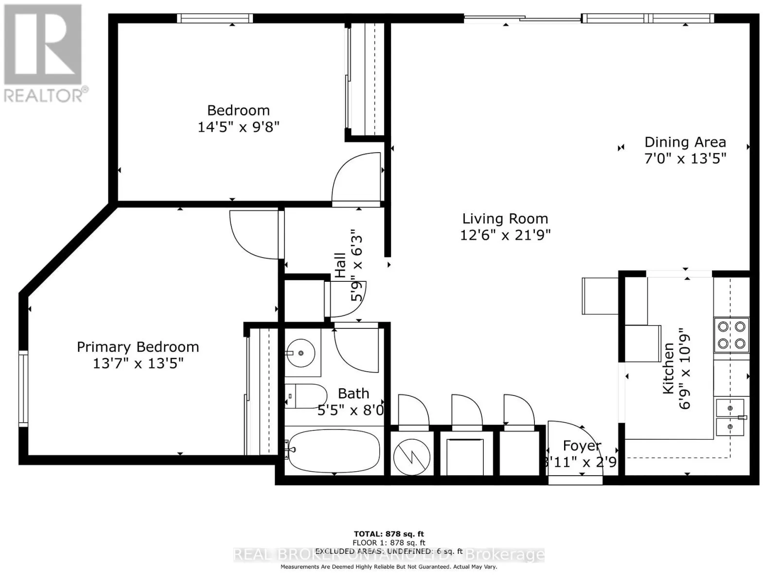
Exit at Wayne Gretzky, to Lynden road, Brantwood, to Sympatica to Bonheur Court at the end Welcome to this beautifully maintained, move-in-ready 2-bedroom condo in the desirable Lynden Manor, one of Brantford's most popular addresses! This bright, inviting unit boasts an open-concept living and dining area, highlighted by a full wall of glass and sliding doors that open to a private balcony, ideal for morning coffee or evening unwinding. The well-appointed kitchen features ample cabinetry and generous counter space, perfect for both everyday meals and entertaining guests. Both bedrooms are spacious with double closets, and the large 4-piece bathroom offers both a tub/shower combination and a separate walk-in shower for added comfort. Additional features include in-suite laundry with a stackable washer/dryer, a dedicated hot water heater, one parking space, and a large storage locker. Residents of Lynden Manor enjoy access to a well-maintained building with great amenities, including a fitness center, party room, welcoming lobby, and beautifully landscaped outdoor spaces. Conveniently located within walking distance to grocery stores, restaurants, gyms, and charming local shops,with Lynden Park Mall and Highway 403 just minutes away, this is condo living at its best! (id:27476)

Property Highlights

MLS® Number
X12393717
Type
Single Family
Maintenance Fee
498.92
Ownership Type
Condominium/Strata
Parking Space Total
1

Building

Building Type
Apartment
Square Footage
800 - 899 sqft
Bathrooms Total
1
Bedrooms Above Ground
2
Bedrooms Total
2
Amenities
Storage - Locker
Exterior Finish
Brick
Fireplace Present
No
Basement Type
None
Basement Features
Building Heating Type
Forced air
Heating Fuel
Electric
Building Cooling Type
Wall unit

Location

Learn more about this property
Listing provided by:
REAL BROKER ONTARIO LTD.
MLS® number:
X12393717
Agent:
Chris Costabile
*Indicates required field
Name is required
Email is required
Please enter a valid phone number (e.g., 416-111-1111).

Street Spotlight - For sale