59 Salisbury Avenue, Brantford, Ontario N3S 1M8

Listed for:
$339,000
2 beds
1 baths
Listed 9 days ago
House for rent: 59 Salisbury Avenue, Brantford, Ontario N3S 1M8

View all 27 photos

Learn more about this property
Listing provided by:
Sotheby's International Realty Canada, Brokerage
MLS® number:
X12530464
Agent:
Zack Haight
*Indicates required field
Name is required
Email is required
Please enter a valid phone number (e.g., 416-111-1111).

About

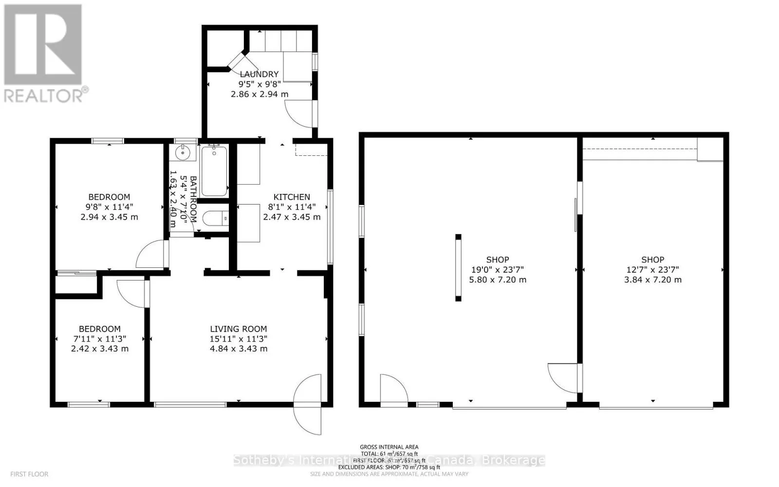
Cross Streets: Erie Avenue & Salisbury Avenue. ** Directions: Erie Avenue towards Salisbury Avenue. Incredible potential for this detached bungalow with a detached double car garage/shop in Brantford's Eagle Place. Some renovations already begun, this home is an incredible opportunity for a first time home buyer, investor, or handyman. Two spacious bedrooms with one ready for finishing touches. The kitchen has lower cabinets installed and awaits countertops and appliances to complete the space. The double car garage provides an excellent space for car enthusiasts, hobbyists, or a small workshop. A few minutes walk or drive will bring you to local schools, parks, hospital, grocers, Grand River trails, and public transit. Don't miss this opportunity to transform a solid home in a convenient, family-friendly area. (id:27476)

Property Highlights

MLS® Number
X12530464
Type
Single Family
Ownership Type
Freehold
Land Size
39 x 114.8 FT|under 1/2 acre
Parking Space Total
3

Building

Building Type
House
Square Footage
0 - 699 sqft
Bathrooms Total
1
Bedrooms Above Ground
2
Bedrooms Total
2
Exterior Finish
Vinyl siding
Fireplace Present
No
Basement Type
N/A (Unfinished)
Basement Features
Building Heating Type
Forced air
Heating Fuel
Natural gas
Building Cooling Type
None

Utilities

Water
Municipal water
Utility Sewer
Sanitary sewer

Room Layout

Living room
Main level
4.84 m x 3.43 m
Bedroom
Main level
2.42 m x 3.43 m
Bedroom
Main level
2.94 m x 3.45 m
Bathroom
Main level
1.63 m x 2.4 m
Kitchen
Main level
2.47 m x 3.45 m
Laundry room
Main level
2.86 m x 2.94 m

Location