36 Easton Road, Brantford, Ontario N3P 1J5

Listed for:
$6,500,000
0 beds
0 baths
Listed 76 days ago
36 Easton Road, Brantford, Ontario N3P 1J5

View all 33 photos

About

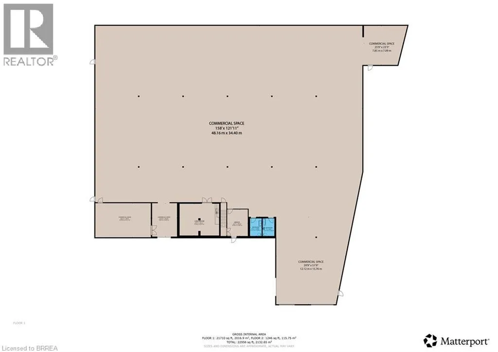
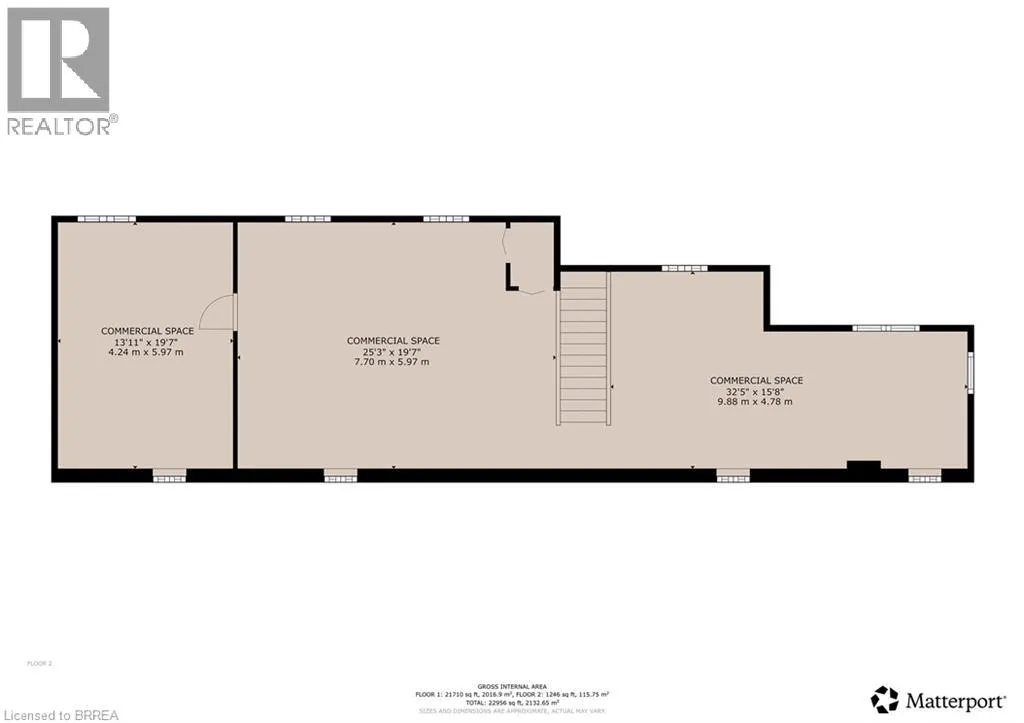
Off Lynden Road to Easton Road, property on east side of road Freestanding 35,313 sq. ft. industrial building. This updated facility features a perfect balance of high-quality office space and functional shop area. Beautifully finished offices offering a professional environment, designed with attention to detail, are built for your team's comfort and productivity, as well as the well-appointed lunchroom within the warehouse. A separate entrance to the staff locker room, leads into the fully air-conditioned warehouse with epoxy floors and advanced sensor lighting for energy efficiency. Enjoy quick access to bus routes or HWY 403 and easy access to the food court for employees. Available immediately. (id:27476)

Property Highlights

MLS® Number
40790773
Type
Industrial
Ownership Type
Freehold
Land Size
1/2 - 1.99 acres
Parking Space Total
25

Building

Storeys
1.00
Square Footage
35313 sqft
Amenities
Public Transit
Fireplace Present
No
Basement Type
None
Basement Features
Building Heating Type
Heating Fuel
Building Cooling Type

Utilities

Water
Municipal water
Utility Sewer
Municipal sewage system

Location

Learn more about this property
Listing provided by:
Re/Max Twin City Realty Inc
MLS® number:
40790773
Agent:
Ed Doucet
*Indicates required field
Name is required
Email is required
Please enter a valid phone number (e.g., 416-111-1111).