36 Hayhurst Road Unit# 334, Brantford, Ontario N3R 6Y9

Listed for:
$359,900
3 beds
2 baths
Listed 26 days ago
Apartment for rent: 36 Hayhurst Road Unit# 334, Brantford, Ontario N3R 6Y9

View all 49 photos

About

Welcome to a well-maintained renovated two level condo with 3-bedrooms, 1.5 bath in the north end of Brantford. This condo offers approximately 1199 sq.ft. of living space. Renovated in 2024/2025 including new electrian panel/wiring, high quality 12mm laminate flooring throughout, numerous pot lights, high baseboards, quality appliances, reno'd baths. The main level features a sun filled living room with pot lights & walk-out to balcony, inviting dining room, an updated white kitchen with high quality stainless steel appliances, pot lights, upgraded sink & faucet & a main floor bedroom that can be used as den/office & reno'd 2pc bath & closet. The upper level comes complete with two spacious bedrooms, the reno'd 4pc bath, 2nd balcony & the in-suite laundry for added convenience. The large master bedroom offers wall to wall windows, walk in closet & walk-in storage room. Condo fees include heat, hydro, water, building insurance, exterior maintenance, landscaping, recycling & 2 parking spaces - 1 underground & 1 above ground. Building amenities include an exercise room, party room, library/extra laundry area. Just minutes to Highway 403 & numerous shopping centres, restaurants, schools, public transit & walk to Gretzky Community Sports Centre. (id:27476)

Property Highlights

MLS® Number
40809820
Type
Single Family
Maintenance Fee
834.87
Ownership Type
Condominium
Land Size
Unknown
Parking Space Total
2

Building

Building Type
Apartment
Storeys
2.00
Square Footage
1199 sqft
Bathrooms Total
2
Bedrooms Above Ground
3
Bedrooms Total
3
Amenities
Exercise Centre, Party Room Park, Place of Worship, Public Transit, Schools, Shopping
Exterior Finish
Brick
Fireplace Present
No
Basement Type
None
Basement Features
Building Heating Type
Baseboard heaters
Heating Fuel
Electric
Building Cooling Type
None

Utilities

Water
Municipal water
Utility Sewer
Municipal sewage system

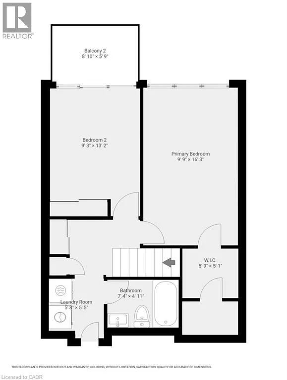
Room Layout

4pc Bathroom
Second level
Measurements not available
Laundry room
Second level
5'8'' x 5'5''
Other
Second level
5'9'' x 5'1''
Bedroom
Second level
13'2'' x 9'3''
Primary Bedroom
Second level
16'3'' x 9'9''
2pc Bathroom
Main level
Measurements not available
Bedroom
Main level
8'9'' x 8'9''
Kitchen
Main level
13'9'' x 8'11''
Dining room
Main level
9'0'' x 8'8''
Living room
Main level
16'0'' x 10'4''

Location

Learn more about this property
Listing provided by:
RE/MAX Aboutowne Realty Corp.
MLS® number:
40809820
Agent:
Tomasz Wdowczyk
*Indicates required field
Name is required
Email is required
Please enter a valid phone number (e.g., 416-111-1111).