31 Willow Drive, Brantford, Ontario N3R 2W5

Listed for:
$639,999
3 beds
2 baths
Listed 21 days ago
House for rent: 31 Willow Drive, Brantford, Ontario N3R 2W5

View all 35 photos

About

Nestled on a quiet, mature street, 31 Willow Drive combines timeless charm with thoughtful updates. The sunlit living room features original hardwood floors and an inviting fireplace (electric) open to the kitchen (eat-in dining room), 2+1 bedrooms and 2 fully updated bathrooms. A newly renovated basement expands your living options with fresh, modern finishes. Outdoors is an oversized fenced yard offers privacy, large deck, gas BBQ hook-up and room to play ,double car driveway, while the one-car garage adds everyday convenience. With close proximity to Hwy 403, the Wayne Gretzky Centre, schools, city transit, shopping and scenic parks, this home offers an ideal balance of tranquility and accessibility. (id:27476)

Property Highlights

MLS® Number
40808381
Type
Single Family
Ownership Type
Freehold
Land Size
0.2 ac|under 1/2 acre
Parking Space Total
7

Building

Building Type
House
Storeys
1.00
Square Footage
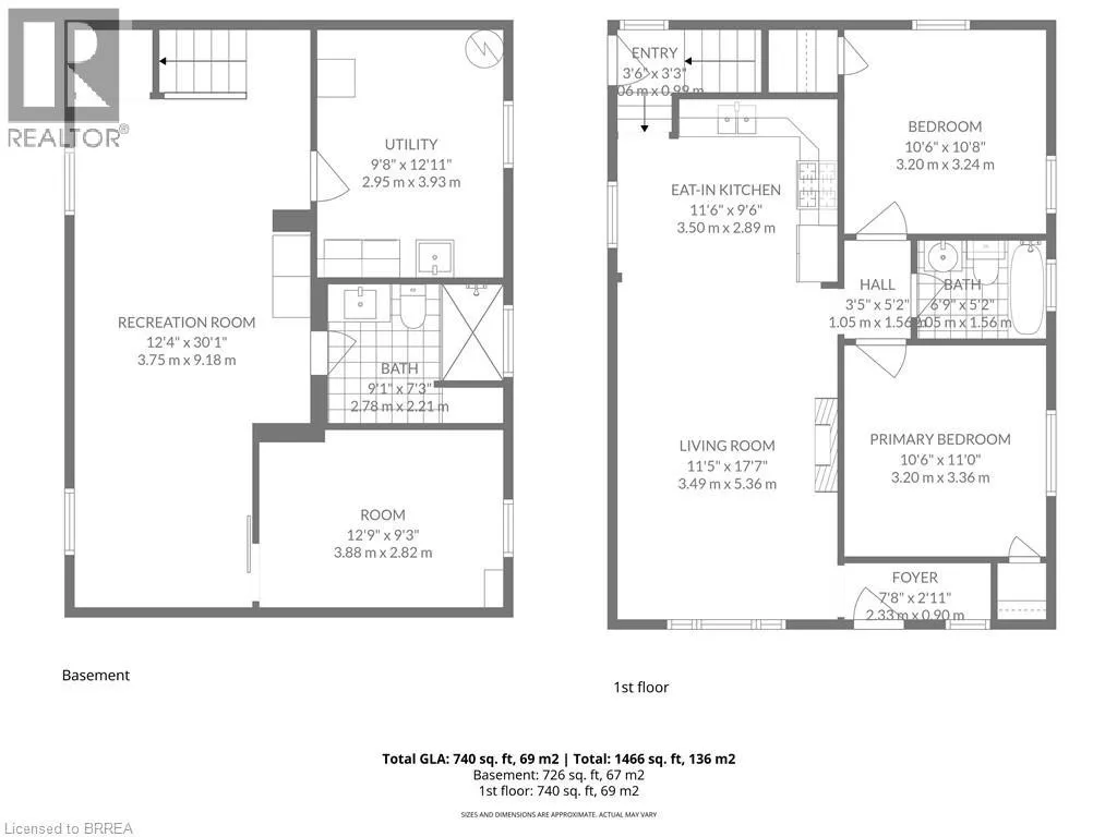
1466 sqft
Bathrooms Total
2
Bedrooms Above Ground
2
Bedrooms Total
3
Amenities
Hospital, Park, Place of Worship, Playground, Public Transit, Schools, Shopping
Exterior Finish
Vinyl siding
Fireplace Present
Yes
Basement Type
Full (Finished)
Basement Features
Building Heating Type
Forced air
Heating Fuel
Natural gas
Building Cooling Type
Central air conditioning

Utilities

Water
Municipal water
Utility Sewer
Municipal sewage system

Room Layout

3pc Bathroom
Basement
Measurements not available
Recreation room
Basement
30'1'' x 12'4''
Bedroom
Basement
12'9'' x 9'3''
Laundry room
Basement
12'11'' x 9'8''
4pc Bathroom
Main level
Measurements not available
Bedroom
Main level
11'0'' x 10'6''
Primary Bedroom
Main level
10'8'' x 10'6''
Kitchen/Dining room
Main level
11'6'' x 9'6''
Living room
Main level
17'7'' x 11'5''

Location

Learn more about this property
Listing provided by:
Peak Realty Ltd.
MLS® number:
40808381
Agent:
Jodie Reppington
*Indicates required field
Name is required
Email is required
Please enter a valid phone number (e.g., 416-111-1111).