12 White Owl Crescent, Brantford, Ontario N3P 1A2

Listed for:
$485,000
2 beds
3 baths
Listed 15 days ago
House for rent: 12 White Owl Crescent, Brantford, Ontario N3P 1A2

View all 34 photos

About

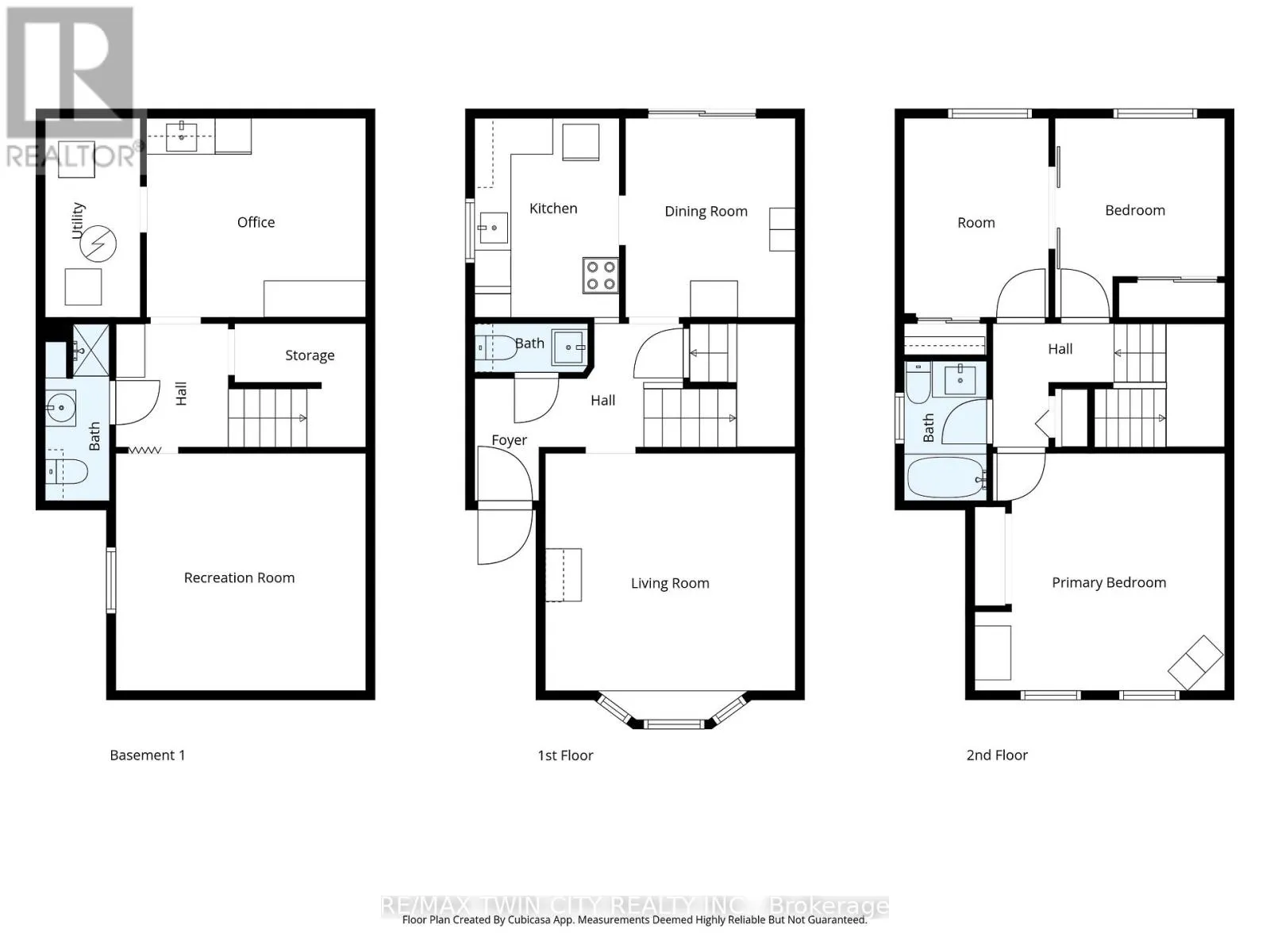
Cross Streets: Viscount Rd & White Owl Cres. ** Directions: Going north on Brantwood Park Rd, take a left onto Viscount Road and then a right onto White Owl Cres. Welcome to 12 White Owl Crescent, a home with so much potential, featuring 2 bedrooms plus a den, (previously was third bedroom and can be converted back,) and 3 bathrooms in Brantford's desirable North End. This semi-detached home offers bright living spaces with a large bay window in the front living room, sliding doors off the dining room leading to the deck, and a finished basement with additional living space ideal for lounging, a home office or flex area, and a convenient wet bar with cabinetry. The main level includes a 2-piece powder room, the upper level is complete with a full 4-piece bathroom, and the basement offers a 3-piece bath, making this home well-suited for everyday living and growing families. The large backyard is a standout feature-perfect for kids, dogs, outdoor play, and future family plans. With major updates completed in the last five years, including windows, roof, furnace, A/C, and driveway, you can move in with confidence while adding your own personal touches over time. A fantastic opportunity for first-time buyers or a young family looking to settle into a friendly, convenient North End community. (id:27476)

Property Highlights

MLS® Number
X12892020
Type
Single Family
Ownership Type
Freehold
Land Size
27.5 x 107 FT
Parking Space Total
2

Building

Building Type
House
Storeys
2.00
Square Footage
1100 - 1500 sqft
Bathrooms Total
3
Bedrooms Above Ground
2
Bedrooms Total
2
Exterior Finish
Aluminum siding, Brick Facing
Fireplace Present
No
Basement Type
N/A (Finished)
Basement Features
Building Heating Type
Forced air
Heating Fuel
Natural gas
Building Cooling Type
Central air conditioning

Utilities

Water
Municipal water
Utility Sewer
Sanitary sewer

Room Layout

Bedroom
Second level
4.14 m x 3.94 m
Bedroom
Second level
2.82 m x 3.3 m
Den
Second level
2.39 m x 3.3 m
Bathroom
Second level
1.37 m x 2.31 m
Utility room
Basement
1.57 m x 3.3 m
Living room
Basement
4.14 m x 3.94 m
Bathroom
Basement
1.07 m x 2.95 m
Recreational, Games room
Basement
3.63 m x 3.3 m
Foyer
Main level
1.07 m x 2.03 m
Bathroom
Main level
1.88 m x 0.81 m
Kitchen
Main level
2.39 m x 3.3 m
Dining room
Main level
2.82 m x 3.3 m
Living room
Main level
4.14 m x 3.94 m

Location

Learn more about this property
Listing provided by:
RE/MAX TWIN CITY REALTY INC.
MLS® number:
X12892020
Agent:
Ryand Campbell
*Indicates required field
Name is required
Email is required
Please enter a valid phone number (e.g., 416-111-1111).