375 Wellington Street, Brantford, Ontario N3S 4A8

Listed for:
$579,000
4 beds
2 baths
Listed 3 days ago
House for rent: 375 Wellington Street, Brantford, Ontario N3S 4A8

View all 41 photos

About

Puleston Welcome home to 375 Wellington Street — a beautifully maintained all-brick 3+1 bedroom, 2 bathroom bungalow tucked into a welcoming family neighbourhood. Offering 1,063 sq. ft. of bright, comfortable living space above grade plus a fully finished lower level, this solid-built home sits proudly on a generous 53 x 126 ft. lot with plenty of room to enjoy. From the moment you pull into the long private driveway and step onto the charming covered front porch, this home invites you to slow down, settle in, and stay awhile. Inside, sun-drenched principal rooms flow effortlessly together, creating the perfect backdrop for everyday living and easy entertaining. The spacious living room features warm wide-plank flooring, oversized windows, and a bright, airy feel that carries through the entire main level. The eat-in kitchen is a true heart-of-the-home space, offering generous wood cabinetry, ample counter space, and a sunny breakfast nook just made for morning coffee and slow Sunday brunches. Three comfortable bedrooms and a tastefully appointed full bath complete the main floor. Downstairs, the fully finished lower level expands your living space with a bright recreation room, a versatile fourth bedroom with a large above-grade window, a second full bathroom, and plenty of storage. A separate rear entrance to the basement adds incredible flexibility — perfect for extended family, an in-law suite setup, a home-based business, or future income potential. Step outside to a deep, fully fenced backyard with room to garden, play, and unwind. Just steps to Devereux Park, schools, shopping, transit, and quick highway access, this move-in-ready bungalow delivers comfort, convenience, and true pride of ownership. Simply unpack and enjoy — welcome home. (id:27476)

Property Highlights

MLS® Number
40820829
Type
Single Family
Ownership Type
Freehold
Land Size
under 1/2 acre
Parking Space Total
3

Building

Building Type
House
Storeys
1.00
Square Footage
2006 sqft
Bathrooms Total
2
Bedrooms Above Ground
3
Bedrooms Total
4
Amenities
Park, Schools, Shopping
Exterior Finish
Brick
Fireplace Present
No
Basement Type
Full (Finished)
Basement Features
Building Heating Type
Forced air
Heating Fuel
Natural gas
Building Cooling Type
Central air conditioning

Utilities

Water
Municipal water
Utility Sewer
Municipal sewage system

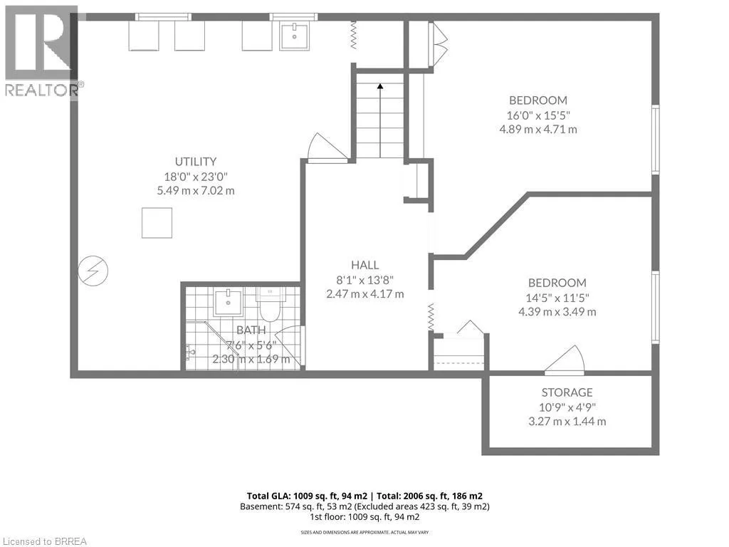
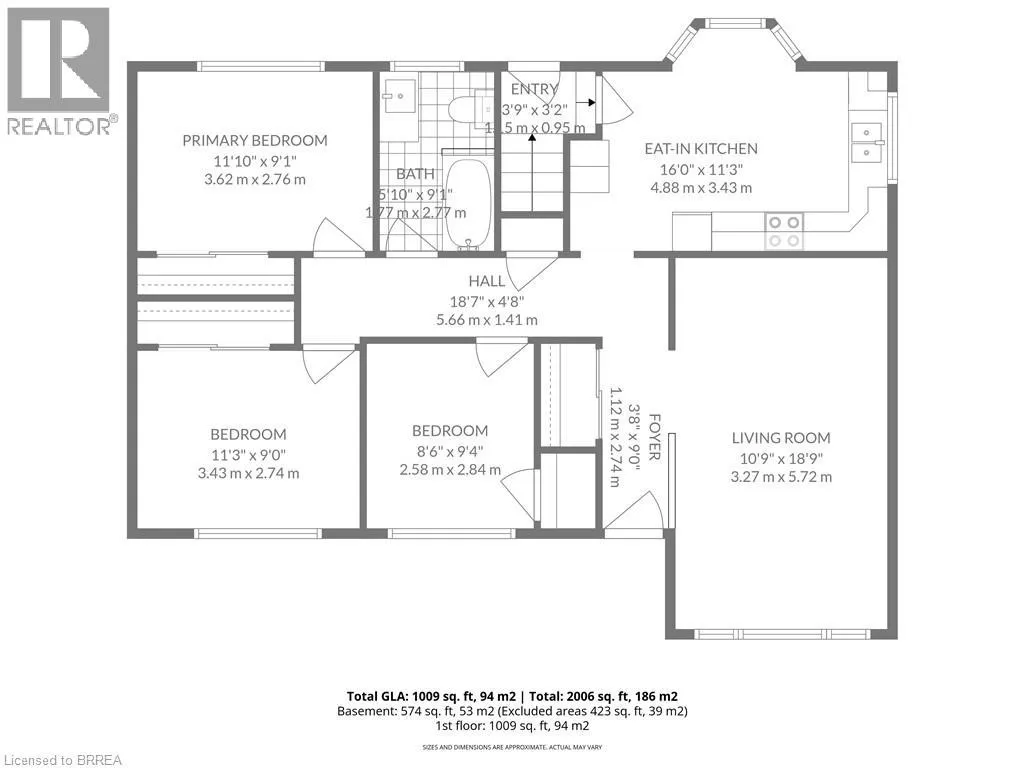
Room Layout

3pc Bathroom
Lower level
Measurements not available
Laundry room
Lower level
15'8'' x 14'0''
Bonus Room
Lower level
11'2'' x 5'9''
Bedroom
Lower level
11'8'' x 11'7''
Family room
Lower level
13'8'' x 11'1''
Kitchen
Main level
12'3'' x 9'0''
Living room
Main level
18'8'' x 14'4''
4pc Bathroom
Main level
Measurements not available
Primary Bedroom
Main level
11'9'' x 9'8''
Bedroom
Main level
11'3'' x 8'11''
Bedroom
Main level
9'4'' x 7'3''

Location

Learn more about this property
Listing provided by:
Royal LePage Brant Realty
MLS® number:
40820829
Agent:
Valentina Pasquini
*Indicates required field
Name is required
Email is required
Please enter a valid phone number (e.g., 416-111-1111).

Street Spotlight - For sale