103 - 3060 Rotary Way, Burlington, Ontario L7M 0G9

Listed for:
$539,900
2 beds
2 baths
Listed 25 days ago
Apartment for rent: 103 - 3060 Rotary Way, Burlington, Ontario L7M 0G9

View all 32 photos

About

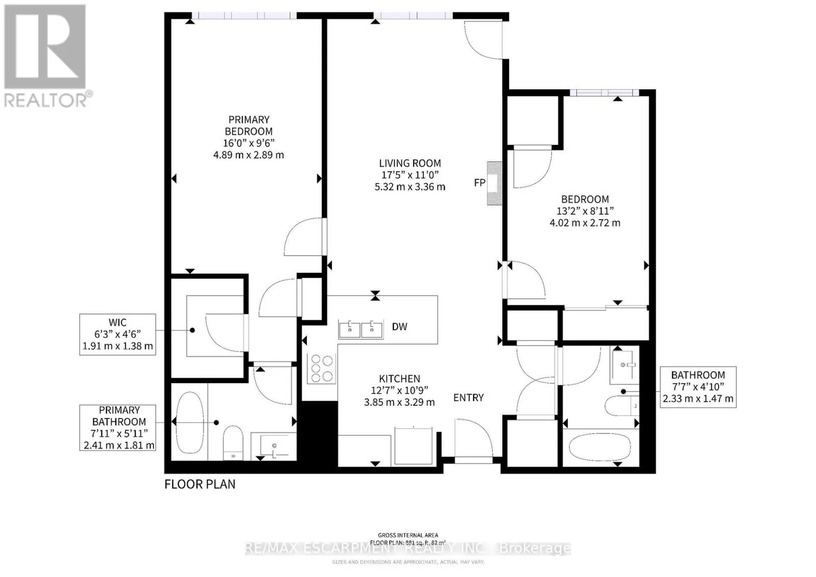
Cross Streets: Dundas St. ** Directions: Dundas St and Walkers Line. Welcome to Unit 103 at The Cornerstone Condos in Alton Village! A rare ground-level 2-bedroom, 2-bathroom suite offering the convenience and comfort of townhome-style living. With 881 SF, this is one of the larger units in the building, featuring a bright, airy, and functional open-concept layout that blends urban convenience with natural charm. Perfect for first-time buyers, downsizers, or rightsizers this is low-maintenance living at its best. Enjoy easy access to the outdoors through your private patio, perfect for morning coffee, entertaining, or letting pets safely enjoy fresh air, a standout feature that sets this unit apart from traditional condo living. Plenty of windows fill the space with natural light, creating a warm, welcoming atmosphere. The unit showcases hardwood flooring throughout the main living areas, a modern kitchen with nice dark cabinetry, glass backsplash, SS appliances, and a breakfast bar. The primary bedroom includes a large walk-in closet and private ensuite, while the second bedroom is equally spacious, ideal for guests, a home office, or a growing family. An additional full bathroom and the convenience of in-suite laundry add to the home's functionality. Additional features include 2 parking spaces (one underground, one surface) and 1 private storage locker. The well-maintained Cornerstone community offers excellent amenities such as a party room, outdoor playground, and ample visitor parking. Conveniently located minutes to Hwy 407 and within walking distance to shops, a medical clinic, and the Haber Community Centre, this home combines location, lifestyle, and functionality in one exceptional package. (id:27476)

Property Highlights

MLS® Number
W12717422
Type
Single Family
Community Name
Alton
Maintenance Fee
643.96
Ownership Type
Condominium/Strata
Parking Space Total
2

Building

Building Type
Apartment
Square Footage
800 - 899 sqft
Bathrooms Total
2
Bedrooms Above Ground
2
Bedrooms Total
2
Amenities
Party Room, Visitor Parking, Storage - Locker Park, Public Transit, Schools
Exterior Finish
Brick, Stucco
Fireplace Present
No
Basement Type
None
Basement Features
Building Heating Type
Forced air
Heating Fuel
Natural gas
Building Cooling Type
Central air conditioning

Location

Learn more about this property
Listing provided by:
RE/MAX ESCARPMENT REALTY INC.
MLS® number:
W12717422
Agent:
Clinton Lorne Howell
*Indicates required field
Name is required
Email is required
Please enter a valid phone number (e.g., 416-111-1111).