15 - 1940 Ironstone Drive, Burlington, Ontario L7L 0E4

Listed for:
$1,179,000
0 beds
0 baths
Listed 58 days ago
Retail for rent: 15 - 1940 Ironstone Drive, Burlington, Ontario L7L 0E4

View all 23 photos

About

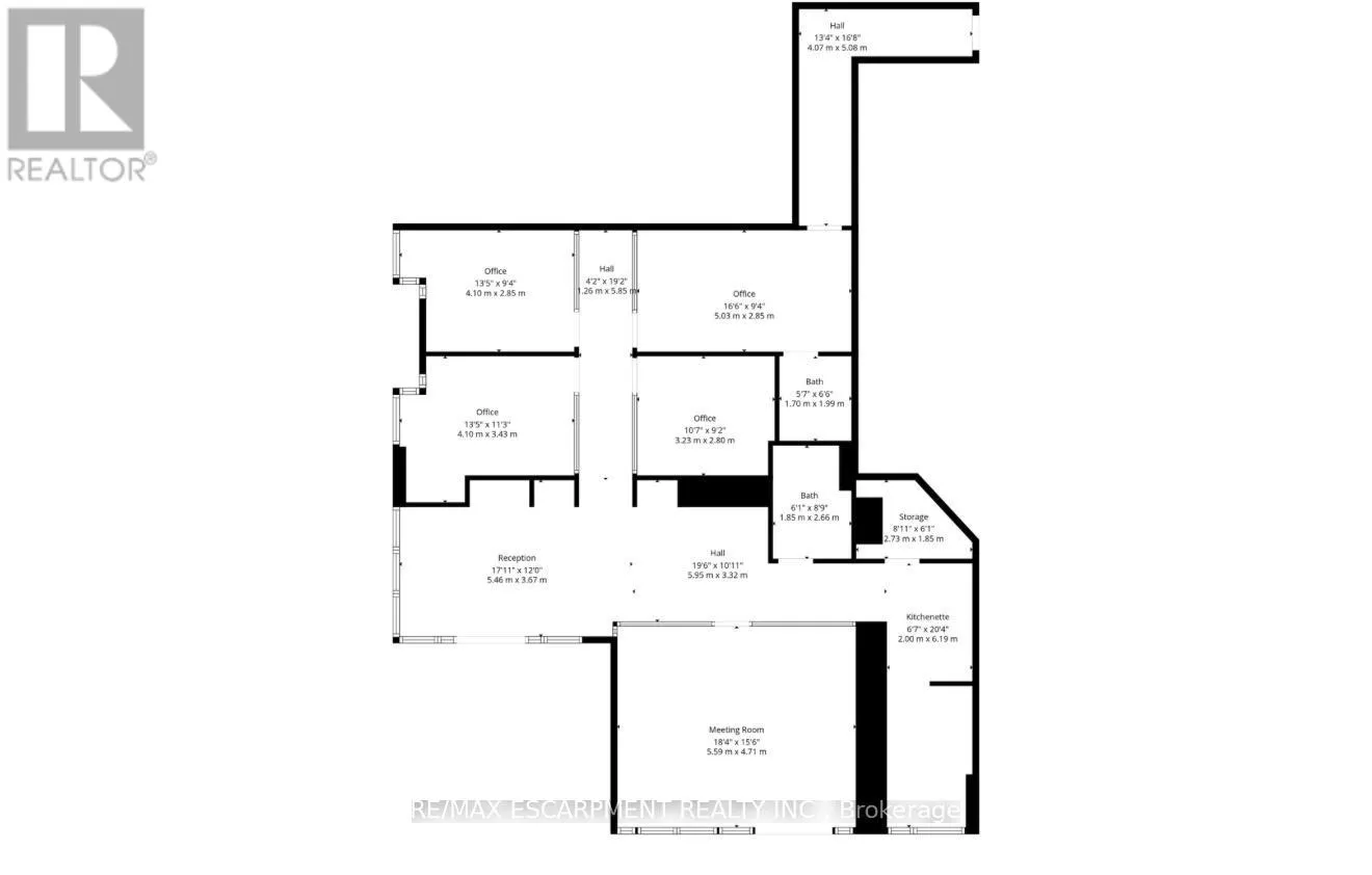
East of Appleby and North of Ironstone Prime commercial opportunity in a highly sought-after location! This professional office unit, currently occupied by Tangri Law Firm, is ideally situated on the corner of 1940 Ironstone Drive in the heart of Burlington, offering excellent visibility and convenient access right on Appleby Line. The unit features a well-designed layout with four private offices, a spacious boardroom, two washrooms, and a functional kitchenette perfect for a wide range of professional uses. Five separate entrances provide added flexibility, accessibility, and potential for multiple access points or division of space. Fronting onto Appleby Line, this unit benefits from strong exposure and high traffic flow, making it an ideal location for businesses seeking both presence and convenience. Ample parking and proximity to major highways, shopping, and amenities further enhance the appeal. A turnkey space in a prime commercial corridor perfect for law firms, accounting offices, medical professionals, or other service-based businesses. (id:27476)

Property Highlights

MLS® Number
W12900566
Type
Retail
Community Name
Uptown

Building

Building Type
Retail
Square Footage
1916 sqft
Fireplace Present
No
Basement Type
Basement Features
Building Heating Type
Other
Heating Fuel
Building Cooling Type
Fully air conditioned

Utilities

Water
Municipal water

Location

Learn more about this property
Listing provided by:
RE/MAX ESCARPMENT REALTY INC.
MLS® number:
W12900566
Agent:
Elena Cipriano
*Indicates required field
Name is required
Email is required
Please enter a valid phone number (e.g., 416-111-1111).