1940 Ironstone Drive Unit# 15, Burlington, Ontario L7L 0E4

Listed for:
$1,179,000
0 beds
0 baths
Listed 15 days ago
1940 Ironstone Drive Unit# 15, Burlington, Ontario L7L 0E4

View all 23 photos

About

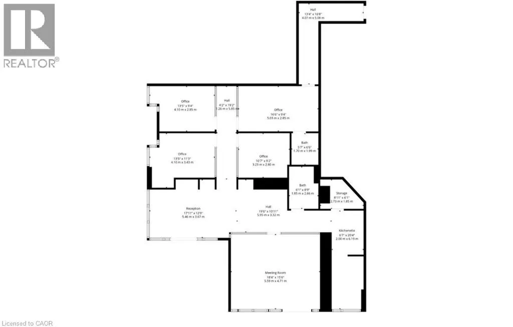
APPLEBY LINE TO IRONSTONE DR Prime commercial opportunity in a highly sought-after location! This professional office unit, currently occupied by Tangri Law Firm, is ideally situated on the corner of 1940 Ironstone Drive in the heart of Burlington, offering excellent visibility and convenient access right on  Appleby Line. The unit features a well-designed layout with four private offices, a spacious boardroom, two washrooms, and a functional kitchenette perfect for a wide range of professional uses. Five separate entrances provide added flexibility, accessibility, and potential for multiple access points or division of space. Fronting onto Appleby Line, this unit benefits from strong exposure and high traffic flow, making it an ideal location for businesses seeking both presence and convenience. Ample parking and proximity to major highways, shopping, and amenities further enhance the appeal. A turnkey space in a prime commercial corridor perfect for law firms, accounting offices, medical professionals, or other service-based businesses. (id:27476)

Property Highlights

MLS® Number
40813482
Type
Retail
Maintenance Fee
1087.76
Ownership Type
Condominium
Land Size
under 1/2 acre

Building

Storeys
1.00
Square Footage
1916 sqft
Amenities
Public Transit, Schools
Exterior Finish
Brick, Stucco
Fireplace Present
No
Basement Type
None
Basement Features
Building Heating Type
Heating Fuel
Building Cooling Type

Utilities

Water
Municipal water
Utility Sewer
Municipal sewage system

Location

Learn more about this property
Listing provided by:
RE/MAX Escarpment Realty Inc.
MLS® number:
40813482
Agent:
Elena Cipriano
*Indicates required field
Name is required
Email is required
Please enter a valid phone number (e.g., 416-111-1111).