13924 Kennedy Road, Caledon, Ontario L7C 2G2

Listed for:
$1,999,999
6 beds
2 baths
Listed 4 days ago
House for rent: 13924 Kennedy Road, Caledon, Ontario L7C 2G2

View all 28 photos

About

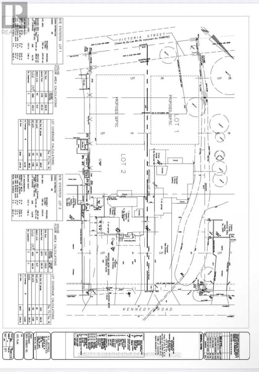
Kennedy / King An Exceptional Opportunity - Severance Approved After 7 Years of Hard Work. Severance has finally been approved, unlocking a rare and valuable opportunity. Ideal for two brothers, friends, or investors looking to build custom dream homes side by side in a highly desirable area. Surrounded by luxury custom-built homes, this property offers the perfect setting for upscale development while still enjoying the charm of its current residence. Situated on approximately 1.2 acres, the property features a well-maintained bungalow with: Open-concept main floor, Gourmet kitchen with ample cabinetry, four spacious bedrooms, Finished basement with a large bedroom and full washroom. Additional highlights include a double car garage and a separate rear workshop, providing extra functionality and storage. Conveniently located just minutes from Highway 410 and Brampton, offering easy access to major routes, amenities, and city conveniences. MUNICIPAL WATER AND GAS ON THE PROPERTY LINE. (id:27476)

Property Highlights

MLS® Number
W13044798
Type
Single Family
Community Name
Rural Caledon
Ownership Type
Freehold
Land Size
157.7 x 345.5 FT
Parking Space Total
14

Building

Building Type
House
Storeys
1.00
Square Footage
2000 - 2500 sqft
Bathrooms Total
2
Bedrooms Above Ground
4
Bedrooms Total
6
Exterior Finish
Brick
Fireplace Present
Yes
Basement Type
N/A (Finished)
Basement Features
Building Heating Type
Forced air
Heating Fuel
Natural gas
Building Cooling Type
Central air conditioning

Utilities

Utility Sewer
Septic System

Room Layout

Recreational, Games room
Basement
Measurements not available
Bedroom
Basement
Measurements not available
Bedroom
Basement
Measurements not available
Laundry room
Basement
Measurements not available
Kitchen
Main level
Measurements not available
Living room
Main level
Measurements not available
Primary Bedroom
Main level
Measurements not available
Bedroom 2
Main level
Measurements not available
Bedroom 3
Main level
Measurements not available
Bedroom 4
Main level
Measurements not available
Dining room
Main level
Measurements not available

Location

Learn more about this property
Listing provided by:
RE/MAX PRESIDENT REALTY
MLS® number:
W13044798
Agent:
Pawanpreet Johal
*Indicates required field
Name is required
Email is required
Please enter a valid phone number (e.g., 416-111-1111).

Street Spotlight - For sale