34 Coldbrook Drive, Cavan Monaghan, Ontario L0A 1G0

Listed for:
$787,990
3 beds
3 baths
Listed 64 days ago
House for rent: 34 Coldbrook Drive, Cavan Monaghan, Ontario L0A 1G0

View all 15 photos

About

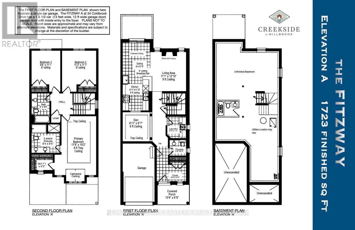
Cross Streets: Nina Ct/Century Blvd. ** Directions: From Millbrook elementary school on Tupper: east on Centennial, north on Century, East on Coldbrook. Choose your interior finishes now for Spring 2026 occupancy. The main floor layout of the "Fitzway" by the Veltri Group in "Creekside in Millbrook" places the natural gas fireplace on the back wall of the Great Room allowing for more options for furniture arrangement while maintaining the open flow between the kitchen and dining area where there is a vaulted ceiling over the arched garden door walkout to the back yard. In addition to quartz counters and potlights standard to all models, the Fitzway's galley kitchen features a raised breakfast bar and optional pantry cabinet upgrade. The Den off the Kitchen is large enough to function as a kid's playroom. The primary bedroom suite includes a vaulted ceiling sitting area over a large picture window facing south to green hills and farmlands. See or ask for Sales Brochure for Floorplan and list of all standard features. Except for Easter Sunday, Creekside in Millbrook Open Houses are hosted at the model home at 37 Coldbrook Drive, Saturdays and Sundays, 1-4 pm. (id:27476)

Property Highlights

MLS® Number
X12733404
Type
Single Family
Community Name
Millbrook Village
Ownership Type
Freehold
Land Size
30.9 x 110 FT
Parking Space Total
5

Building

Building Type
House
Storeys
2.00
Square Footage
1500 - 2000 sqft
Bathrooms Total
3
Bedrooms Above Ground
3
Bedrooms Total
3
Amenities
Fireplace(s) Golf Nearby, Park
Exterior Finish
Brick, Vinyl siding
Fireplace Present
Yes
Basement Type
N/A (Unfinished)
Basement Features
Building Heating Type
Forced air
Heating Fuel
Natural gas
Building Cooling Type
None

Utilities

Water
Municipal water
Utility Sewer
Sanitary sewer

Room Layout

Bedroom 2
Second level
3.43 m x 3.38 m
Bedroom 3
Second level
2.9 m x 3.38 m
Bathroom
Second level
1.83 m x 2.95 m
Primary Bedroom
Second level
3.56 m x 5.84 m
Bathroom
Second level
2.84 m x 2.87 m
Kitchen
Main level
2.6 m x 3.5 m
Dining room
Main level
2.74 m x 3.25 m
Living room
Main level
3.38 m x 3.91 m
Den
Main level
2.72 m x 2.92 m
Laundry room
Main level
1.91 m x 2.18 m
Foyer
Main level
2.95 m x 1.68 m

Location

Learn more about this property
Listing provided by:
RE/MAX HALLMARK EASTERN REALTY
MLS® number:
X12733404
Agent:
Kathie Lycett
*Indicates required field
Name is required
Email is required
Please enter a valid phone number (e.g., 416-111-1111).