7923 Fairview Road, Central Elgin, Ontario N5P 3S8

Listed for:
$1,579,000
6 beds
3 baths
Listed 2 days ago
House for rent: 7923 Fairview Road, Central Elgin, Ontario N5P 3S8

View all 48 photos

Learn more about this property
Listing provided by:
RE/MAX CENTRE CITY REALTY INC.
MLS® number:
X12663722
Agent:
Jon Van De Klippe
*Indicates required field
Name is required
Email is required
Please enter a valid phone number (e.g., 416-111-1111).

About

Cross Streets: Fairview and Southdale Line. ** Directions: Fair View Road, South of Southdale Line. This 2019 custom built modern farmhouse retreat offers over 4000 sqft. of finished living space on 0.5 of an acre with views of the backyard oasis! Welcome to 7923 Fairview Road a rare opportunity to own a beautifully designed contemporary farmhouse set on a spacious half-acre property, just minutes from St. Thomas and London. This detached bungalow blends modern luxury with timeless charm, offering an exceptional lifestyle both indoors and out. Spacious Layout: With 3 bedrooms on the main level and 3 more in the fully finished lower level (8-ft ceilings). Designer Finishes: Engineered oak hardwood floors, high-end finishings, and thoughtful details throughout, including a custom gas fireplace hearth, wide-plank flooring, and elegant fixtures. Chefs Kitchen: A large, open kitchen with an island seating four, seamlessly connected to the living and dining areas. Spectacular Setting: Expansive windows fill the home with natural light and frame sweeping views of the surrounding landscape. Outdoor Living: Professionally landscaped gardens surround the in-ground pool, pool house, and a covered deck with outdoor dining perfect for entertaining or quiet evenings at home. This home is not just a place to live it's a sanctuary where every space is designed for beauty, comfort, and connection. From morning coffee on the covered deck to sunset swims in the pool, 7923 Fairview Road is a property you will never want to leave. Conveniently located close to city amenities, yet offering the peace and privacy of country living. (id:27476)

Property Highlights

MLS® Number
X12663722
Type
Single Family
Community Name
Rural Central Elgin
Ownership Type
Freehold
Land Size
100 x 242.6 FT
Parking Space Total
10

Building

Building Type
House
Storeys
1.00
Square Footage
2000 - 2500 sqft
Bathrooms Total
3
Bedrooms Above Ground
3
Bedrooms Total
6
Amenities
Fireplace(s)
Exterior Finish
Hardboard
Fireplace Present
Yes
Basement Type
N/A (Finished)
Basement Features
Building Heating Type
Forced air, Not known
Heating Fuel
Electric, Natural gas
Building Cooling Type
Central air conditioning

Utilities

Utility Sewer
Septic System

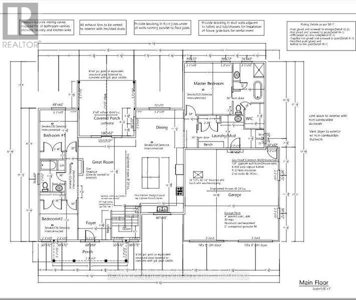
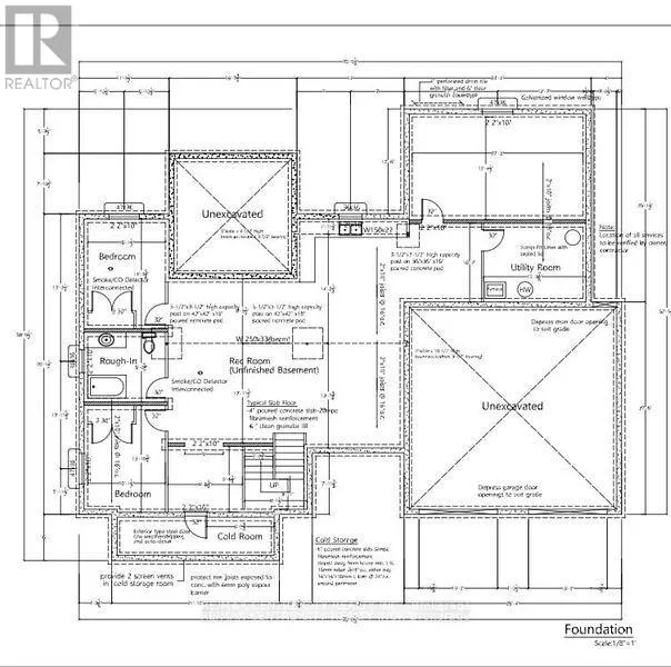
Room Layout

Bedroom 3
Basement
3.1 m x 4.1 m
Bedroom 2
Basement
3.1 m x 4.1 m
Family room
Basement
6 m x 7.6 m
Bedroom
Basement
6.8 m x 4.3 m
Foyer
Main level
2.9 m x 2.6 m
Living room
Main level
5.1 m x 6.1 m
Kitchen
Main level
3.9 m x 4.9 m
Dining room
Main level
3.4 m x 4.3 m
Laundry room
Main level
2.9 m x 5.5 m
Bedroom
Main level
4.6 m x 4.3 m
Bedroom 2
Main level
3.4 m x 3.5 m
Bedroom 3
Main level
3.4 m x 3.5 m

Location

Community Spotlight: Homes For sale in Your Neighborhood