251 Mill Road, Chatsworth, Ontario N0H 1R0

Listed for:
$1,290,000
4 beds
3 baths
Listed 103 days ago
251 Mill Road, Chatsworth, Ontario N0H 1R0

View all 49 photos

About

Cross Streets: Mill Road and Hamilton Road. ** Directions: From Holland Centre, go north on sideroad 30, turn right onto East Backline, turn left onto Hamilton Road, turn right onto Mill Road and proceed to fire #251. Custom-built (2015) architect designed home with accessory apartment set on 151 picturesque acres. The property features a large swimming pond, Hamilton Creek, and sweeping panoramic views over rolling hills. A long, scenic, tree-lined laneway leads to an open field showcasing the residence, a 1,200 sq. ft. double-walled greenhouse ( built in 2023 with automatic vents), outdoor sauna and a charming guest area complete with a newer Jayco trailer and deck.The main home offers passive solar design with enhanced insulation, in-floor heating with separate loops, 12' ceilings and an open-concept design. The main house features a great room with kitchen/dining/living room including cookstove, large island, 2 piece bathroom and lots of windows for the views. The upstairs includes three bedrooms, office space in hallway and a full bathroom. The accessory apartment features an open living room and kitchen with large island and woodstove, a bathroom with walk-in shower, and a loft-style bedroom. Laundry is a shared space between both units, making this an ideal setup for rental income or multi-generational living. The attached insulated garage has entry doors on both ends and a Tesla charger. The covered porch offers additional versatility-perfect for a hot tub or future enclosed living space as it has an in-floor heat loop and insulated roof . Metal roof on main house and flat roof on the garage. The land is a beautiful mix of forest, pasture, workable acreage, large pond, and creek, providing privacy, recreation, and stunning natural surroundings. Approximately 40 acres workable (possibly more), of which approx. 20 have been recently amended, renovated and re-seeded to hay/pasture. Property taxes are kept lower through forest and conservation land reductions. (id:27476)

Property Highlights

MLS® Number
X12760062
Type
Agriculture
Community Name
Chatsworth
Land Size
1986 x 3361 FT|100+ acres
Parking Space Total
12

Building

Storeys
2.00
Square Footage
2000 - 2500 sqft
Bathrooms Total
3
Bedrooms Above Ground
4
Bedrooms Total
4
Amenities
Separate Heating Controls
Exterior Finish
Wood
Fireplace Present
Yes
Basement Type
None
Basement Features
Building Heating Type
Radiant heat, Not known
Heating Fuel
Propane
Building Cooling Type
None

Utilities

Utility Sewer
Septic System

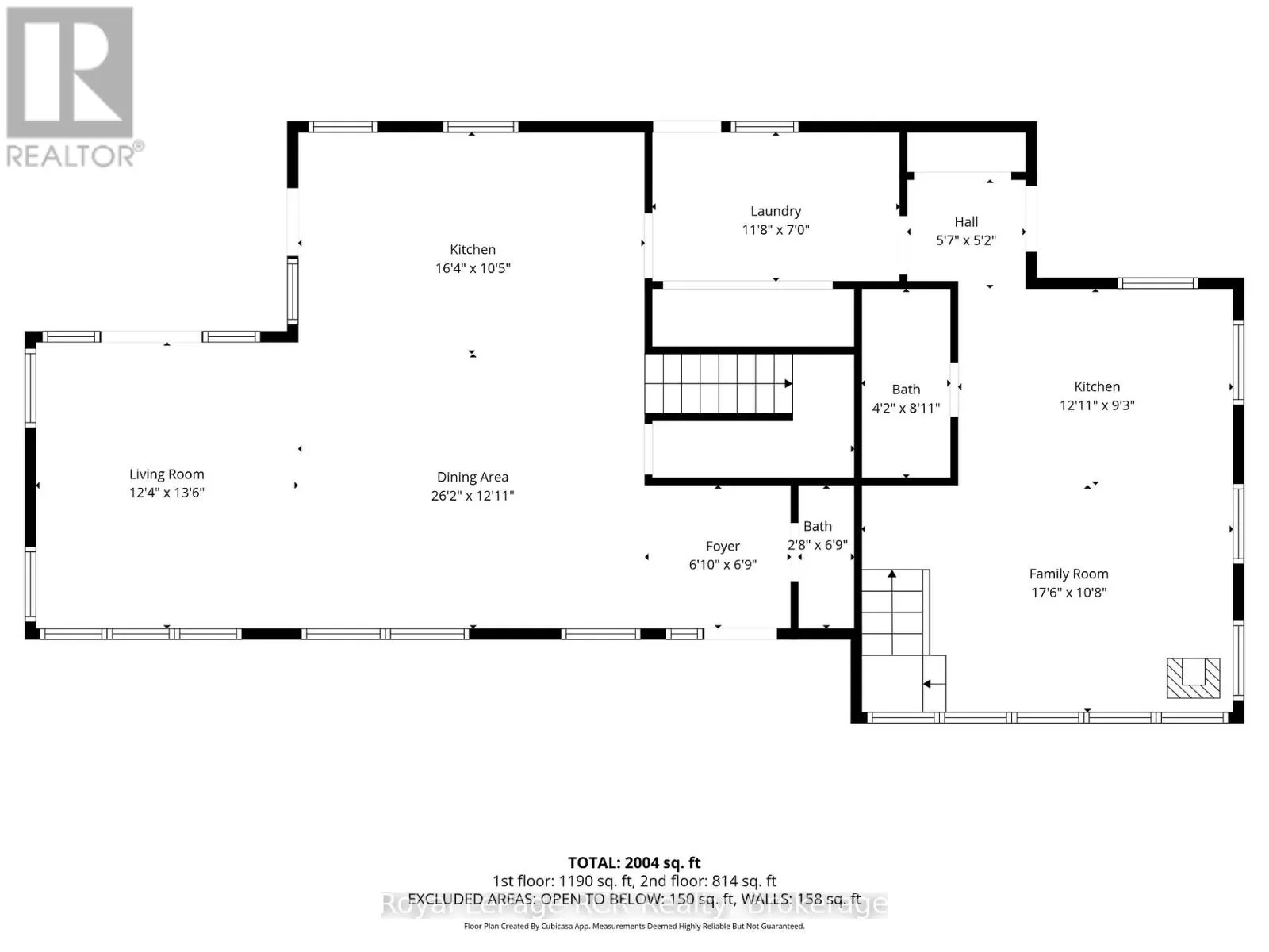
Room Layout

Bedroom
Second level
5.33 m x 3.92 m
Bedroom
Second level
3.7 m x 3.72 m
Bedroom
Second level
3.7 m x 3.28 m
Bedroom
Second level
3.08 m x 2.9 m
Bathroom
Second level
2.9 m x 2.06 m
Kitchen
Main level
4.97 m x 3.18 m
Dining room
Main level
7.98 m x 3.94 m
Living room
Main level
4.11 m x 3.76 m
Laundry room
Main level
3.55 m x 2.14 m
Bathroom
Main level
2.72 m x 1.28 m
Kitchen
Main level
3.95 m x 2.82 m
Family room
Main level
5.33 m x 3.26 m
Bathroom
Main level
2.06 m x 0.81 m
Foyer
Main level
2.1 m x 2.08 m
Foyer
Main level
1.71 m x 1.56 m

Location

Learn more about this property
Listing provided by:
Royal LePage RCR Realty
MLS® number:
X12760062
Agent:
Angela Boersma
*Indicates required field
Name is required
Email is required
Please enter a valid phone number (e.g., 416-111-1111).

Community Spotlight: Homes For sale in Your Neighborhood