221a Liberty Street N, Clarington, Ontario L1C 2M6

Listed for:
$499,900
0 beds
0 baths
Listed 62 days ago
221a Liberty Street N, Clarington, Ontario L1C 2M6

View all 9 photos

Learn more about this property
Listing provided by:
Royal LePage Our Neighbourhood Realty
MLS® number:
E12413309
Agent:
Bob Best
*Indicates required field
Name is required
Email is required
Please enter a valid phone number (e.g., 416-111-1111).

About

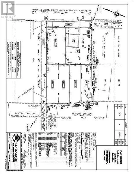
Cross Streets: Liberty/Swindells. ** Directions: Head North on Liberty St N from 401 and land is on the East side of Liberty. An incredible opportunity to own a vacant piece of land in a desirable location. Ready for your vision to come to life. Whether you're an investor, builder, or someone dreaming of creating a custom home, this lot offers endless possibilities. Surrounded by natural beauty and located in Bowmanville, it's the perfect canvas for your next project. Don't miss your chance to own this rare offering! (id:27476)

Property Highlights

MLS® Number
E12413309
Type
Vacant Land
Community Name
Bowmanville
Land Size
55 x 105 FT|under 1/2 acre

Building

Fireplace Present
No
Basement Type
Basement Features
Building Heating Type
Heating Fuel
Building Cooling Type

Location

Community Spotlight: Homes For sale in Your Neighborhood