473 Joseph Gale Street, Cobourg, Ontario K9A 3N3

Listed for:
$659,000
2 beds
2 baths
Listed 65 days ago
House for rent: 473 Joseph Gale Street, Cobourg, Ontario K9A 3N3

View all 23 photos

About

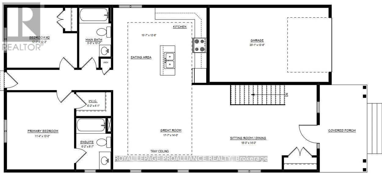
Joseph Gale/Fred Pratt Welcome to East Village in the beautiful Town of Cobourg, a sought after community located a walk or bike ride to Lake Ontario's vibrant waterfront, beaches, downtown, shopping, parks and restaurants. This brand new, gorgeous 2 Bedroom, 2 Bath bungalow features stylish upgrades and finishes. Upgraded Kitchen with Island, modern light fixtures and loads of cabinet space. Open-concept Dining/Kitchen/Living Space with coffered ceilings. Relax in the Great Room or host family gatherings. Primary Bedroom with a walk-in closet and ensuite. Second Bedroom can be used as a Guest Room, Den or an Office for your work-at-home needs with available fibre internet. Upgraded oak stairs lead to your full Basement, perfect for storage, workshop or extend your living space even further with option to add Bedrooms, Rec Room and Bathroom(includes rough-in). Newly constructed, gorgeous privacy fencing and back deck. Attached garage with upgraded garage door opener. Includes Hi-Eff gas furnace, HRV for healthy living, Luxury Vinyl Plank & Tile flooring. Builder is registered with TARION for 7 Year Home Warranty Program. Easy commute to GTA via car or VIA. Enjoy living in Cobourg's beautiful east end location. Complete list of upgrades and optional basement floor plans available. Move right in and enjoy life in Cobourg...Immediate possession available! Interior photos are virtually staged. LISTING PRICE REFLECTS EXPANDED HST NEW RESIDENTIAL REBATE FOR ELIGIBLE PURCHASERS. (id:27476)

Property Highlights

MLS® Number
X12688230
Type
Single Family
Community Name
Cobourg
Ownership Type
Freehold
Land Size
37.8 x 112 FT
Parking Space Total
2

Building

Building Type
House
Storeys
1.00
Square Footage
1100 - 1500 sqft
Bathrooms Total
2
Bedrooms Above Ground
2
Bedrooms Total
2
Amenities
Schools, Marina, Hospital, Park, Golf Nearby
Exterior Finish
Brick, Vinyl siding
Fireplace Present
No
Basement Type
N/A (Unfinished)
Basement Features
Building Heating Type
Forced air
Heating Fuel
Natural gas
Building Cooling Type
Central air conditioning, Air exchanger

Utilities

Water
Municipal water
Utility Sewer
Sanitary sewer

Room Layout

Sitting room
Main level
4.7 m x 2.92 m
Great room
Main level
4.7 m x 5.18 m
Kitchen
Main level
3.89 m x 5.18 m
Primary Bedroom
Main level
3.48 m x 3.99 m
Bedroom
Main level
3.12 m x 2.9 m

Location

Learn more about this property
Listing provided by:
ROYAL LEPAGE PROALLIANCE REALTY
MLS® number:
X12688230
Agent:
Diana Scott
*Indicates required field
Name is required
Email is required
Please enter a valid phone number (e.g., 416-111-1111).

Street Spotlight - For sale