883 Ernest Allen Boulevard, Cobourg, Ontario K9A 1W9

Listed for:
$749,000
2 beds
2 baths
Listed 6 days ago
House for rent: 883 Ernest Allen Boulevard, Cobourg, Ontario K9A 1W9

View all 32 photos

About

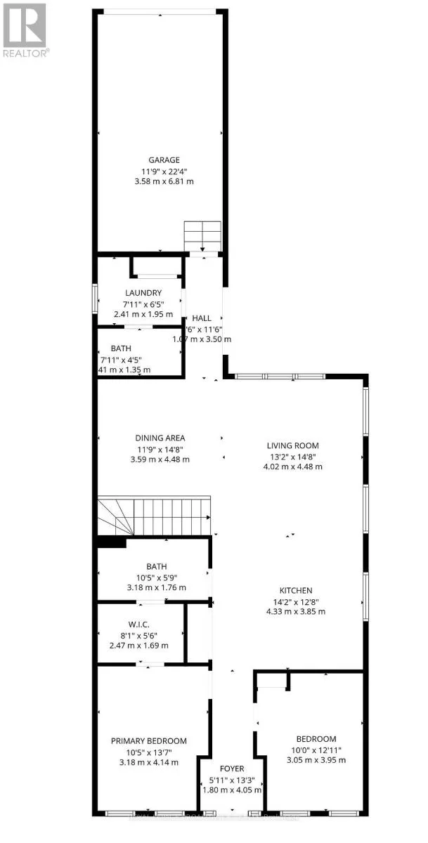
Ernest Allen Blvd/ Wilkins Gate Welcome to the highly sought-after New Amherst neighbourhood in Cobourg, known for its treelined streets, beautifully maintained homes, walking trails, and a picturesque pond just steps away. Pride of ownership and a strong sense of community make this one of Cobourg's most desirable areas. Completed in December 2022, this Cotswold Cottage bungalow sits on a flat lot with only a few steps to both the front and rear entrances, offering easy accessibility. The exterior features a low-maintenance yard with a ton of potential to make it your own little oasis and space to expand the driveway if needed. Inside, the home shows like new with 2 bedrooms and 2 bathrooms. The kitchen is sleek with white cabinetry, stainless steel appliances, stone countertops, modern backsplash, and a pantry for all your storage needs. Upgrades include pot lights, stylish fixtures, custom window coverings, and modern door hardware. The primary suite has a large walk-in closet and ensuite with upgraded cabinetry. The second bedroom is ideal for guests or a home office, with the main bathroom serving the home in style. An attached garage with opener provides direct access to the mudroom, complete with an extra large closet and washer and dryer. A laundry sink is installed in the basement, which has been fully insulated. The basement is unfinished with a rough-in for an additional bathroom, offering potential for extra bedrooms or living space. Used by the seller as a weekend retreat, the home has been lightly used and is in pristine condition. Furniture and dcor are negotiable, creating a turnkey experience. With a low maintenance yard, modern finishes, and space to grow, this property offers exceptional value in a top neighbourhood and comes at a price much lower than it would cost to build a home like this today. (id:27476)

Property Highlights

MLS® Number
X12923600
Type
Single Family
Community Name
Cobourg
Maintenance Fee
24.00
Ownership Type
Freehold
Land Size
36.1 x 103.1 FT
Parking Space Total
2

Building

Building Type
House
Storeys
1.00
Square Footage
1100 - 1500 sqft
Bathrooms Total
2
Bedrooms Above Ground
2
Bedrooms Total
2
Amenities
Beach, Golf Nearby, Hospital, Park, Schools
Exterior Finish
Brick
Fireplace Present
No
Basement Type
N/A (Unfinished)
Basement Features
Building Heating Type
Forced air
Heating Fuel
Natural gas
Building Cooling Type
Central air conditioning, Air exchanger

Utilities

Water
Municipal water
Utility Sewer
Sanitary sewer

Room Layout

Great room
Main level
4.6 m x 4.6 m
Dining room
Main level
3.63 m x 3.41 m
Kitchen
Main level
3.08 m x 3.66 m
Primary Bedroom
Main level
4.27 m x 3.02 m
Bedroom 2
Main level
4.15 m x 3.02 m
Laundry room
Main level
2.41 m x 1.95 m

Location

Learn more about this property
Listing provided by:
ROYAL LEPAGE PROALLIANCE REALTY
MLS® number:
X12923600
Agent:
John Hill
*Indicates required field
Name is required
Email is required
Please enter a valid phone number (e.g., 416-111-1111).