424 Trent Valley Road, Cramahe, Ontario K0K 1S0

Listed for:
$1,089,000
3 beds
2 baths
Listed 264 days ago
House for rent: 424 Trent Valley Road, Cramahe, Ontario K0K 1S0

View all 6 photos

About

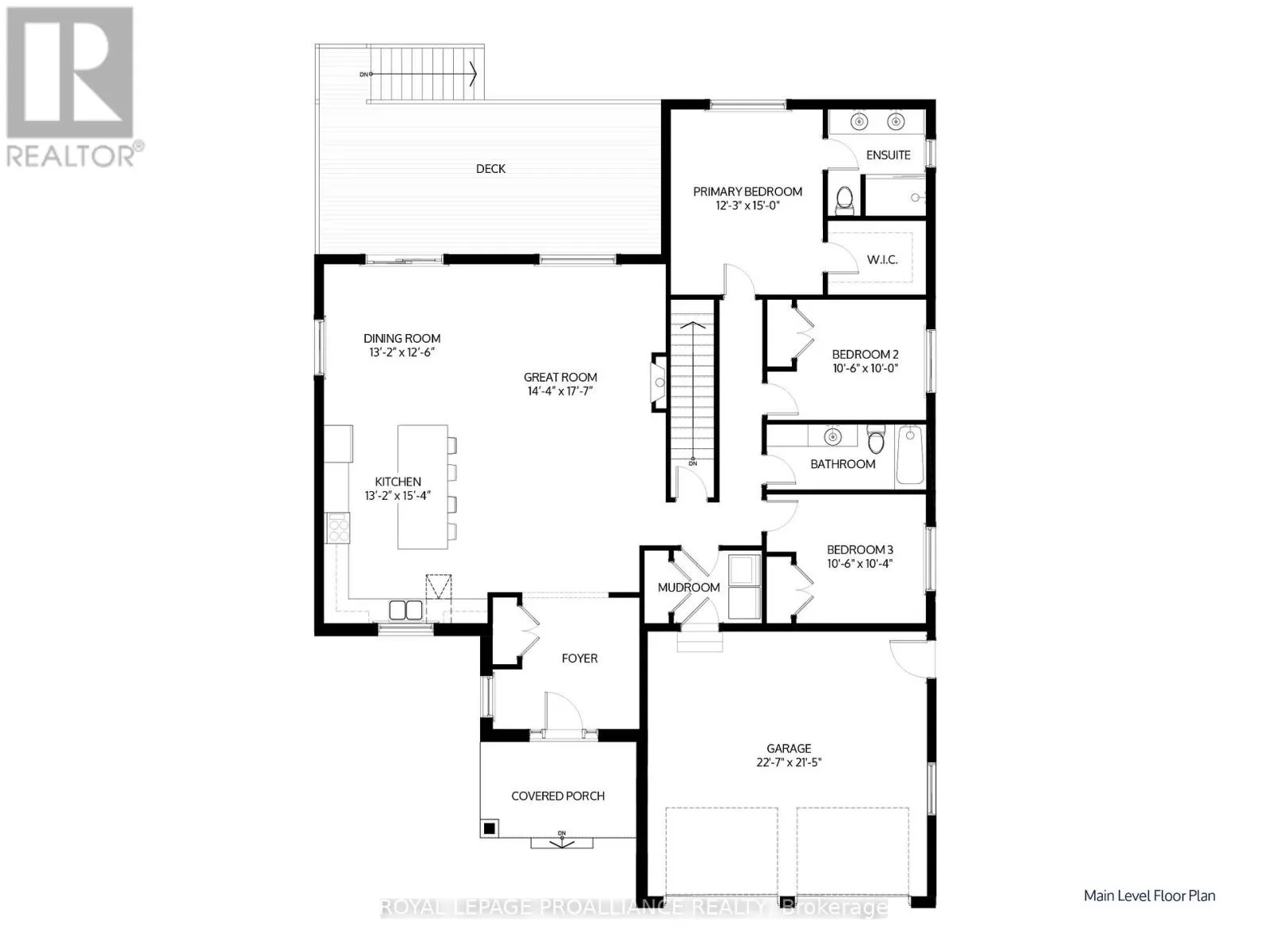
Cross Streets: Trent Valley Rd & Ventress Rd. ** Directions: County Road 2 East of Colborne to Ventress Rd, turn left on Trent Valley Rd. Customize or Move In - Your Ideal Bungalow Awaits. A unique opportunity to own a brand new, quality-built home by renowned local builder, Fidelity Homes. Set on a desirable lot, this 1,874 sqft bungalow offers the best of both worlds - move forward with the thoughtfully designed plan or fully customize to suit your lifestyle. The proposed layout features 3 generous bedrooms and 2 full bathrooms, along with a bright, open-concept kitchen, dining, and great room with a fireplace, perfect for family living and entertaining. Enjoy high-end finishes throughout including luxury vinyl plank flooring, designer light fixtures, quartz countertops, and custom cabinetry in both the kitchen and bathrooms. The home also features a spacious covered front porch with beautiful wood beam details, a back deck for outdoor enjoyment, and convenient main floor laundry. Backed by a 7-year Tarion warranty and built with care and precision, this is your chance to create a home that's truly your own. Choose the curated plan or bring your own vision this is your blank canvas for modern rural living. (id:27476)

Property Highlights

MLS® Number
X12302528
Type
Single Family
Community Name
Colborne
Ownership Type
Freehold
Land Size
134.7 x 115.8 M ; t shaped lot|1/2 - 1.99 acres
Parking Space Total
4

Building

Building Type
House
Storeys
1.00
Square Footage
1500 - 2000 sqft
Bathrooms Total
2
Bedrooms Above Ground
3
Bedrooms Total
3
Amenities
Fireplace(s) Beach, Place of Worship, Schools
Exterior Finish
Stone, Vinyl siding
Fireplace Present
Yes
Basement Type
Full (Unfinished)
Basement Features
Building Heating Type
Forced air
Heating Fuel
Propane
Building Cooling Type
Central air conditioning

Utilities

Water
Drilled Well
Utility Sewer
Septic System

Room Layout

Dining room
Main level
4.01 m x 3.81 m
Great room
Main level
4.37 m x 5.36 m
Kitchen
Main level
4.01 m x 4.67 m
Primary Bedroom
Main level
3.73 m x 4.57 m
Bedroom 2
Main level
3.2 m x 3.05 m
Bedroom 3
Main level
3.15 m x 3.15 m

Location

Learn more about this property
Listing provided by:
ROYAL LEPAGE PROALLIANCE REALTY
MLS® number:
X12302528
Agent:
Brenda Kloostra
*Indicates required field
Name is required
Email is required
Please enter a valid phone number (e.g., 416-111-1111).