73 Duchess Drive, Delhi, Ontario N4B 0B3

Listed for:
$860,950
3 beds
2 baths
Listed 3 days ago
House for rent: 73 Duchess Drive, Delhi, Ontario N4B 0B3

View all 2 photos

Learn more about this property
Listing provided by:
COLDWELL BANKER BIG CREEK REALTY LTD. BROKERAGE
MLS® number:
40787370
Agent:
Cindy Crevits
*Indicates required field
Name is required
Email is required
Please enter a valid phone number (e.g., 416-111-1111).

About

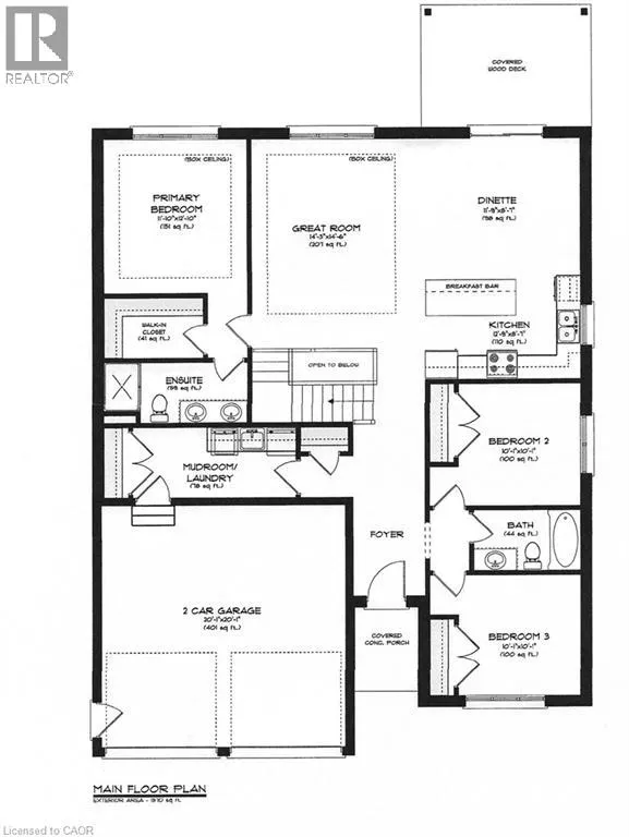
Hwy 3 to Argyle Ave. Left on McIntosh, right on Duchess, property on left (beside red 2 storey) TO BE BUILT! Welcome to your newly constructed 1570 sq ft haven! This immaculate 3-bedroom, 2-bathroom bungalow is located on a premium lot within the sought-after Bluegrass Estates community in Delhi. The custom-built home features modern, high-end finishes and an attached garage. The main level offers a contemporary open-concept layout with a custom kitchen, spacious living room, dining area, sizeable bedrooms, and main floor laundry. The stunning custom kitchen is equipped with ample cabinetry, a convenient central island with seating, quartz countertops, and contemporary lighting. The expansive living area promises to be a favorite retreat for relaxation. The primary bedroom includes a walk-in closet and an ensuite bathroom. Quality flooring, pot lights, 9-foot ceilings, and the open concept design enhance the home's appeal. The unfinished lower level provides additional storage space and potential for future development. The covered back deck, overlooking the vast premium lot, is set to be another cherished space. This is just one of the many models available, with only a few premium lots remaining. Don't hesitate, inquire today! (id:27476)

Property Highlights

MLS® Number
40787370
Type
Single Family
Ownership Type
Freehold
Land Size
under 1/2 acre
Parking Space Total
4

Building

Building Type
House
Storeys
1.00
Square Footage
1570 sqft
Bathrooms Total
2
Bedrooms Above Ground
3
Bedrooms Total
3
Amenities
Playground, Schools, Shopping
Exterior Finish
Brick Veneer, Stone
Fireplace Present
No
Basement Type
Full (Unfinished)
Basement Features
Building Heating Type
Forced air
Heating Fuel
Natural gas
Building Cooling Type
Central air conditioning

Utilities

Water
Municipal water
Utility Sewer
Municipal sewage system

Room Layout

4pc Bathroom
Main level
Measurements not available
4pc Bathroom
Main level
Measurements not available
Laundry room
Main level
6'0'' x 10'0''
Bedroom
Main level
10'1'' x 10'1''
Bedroom
Main level
10'1'' x 10'1''
Primary Bedroom
Main level
11'10'' x 12'10''
Dining room
Main level
11'9'' x 8'7''
Kitchen
Main level
12'9'' x 8'1''
Great room
Main level
14'3'' x 14'6''

Location

Street Spotlight - For sale