62 Duchess Drive, Delhi, Ontario N4B 0B3

Listed for:
$851,370
2 beds
2 baths
Listed 3 days ago
House for rent: 62 Duchess Drive, Delhi, Ontario N4B 0B3

View all 2 photos

Learn more about this property
Listing provided by:
COLDWELL BANKER BIG CREEK REALTY LTD. BROKERAGE
MLS® number:
40787368
Agent:
Cindy Crevits
*Indicates required field
Name is required
Email is required
Please enter a valid phone number (e.g., 416-111-1111).

About

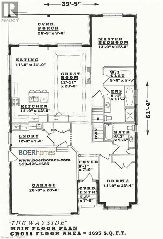
Hwy 3 to Delhi, east on Argyle, left to Mcintosh, right to Duchess. Lot 32 is on the right Get ready to be charmed by The Wayside! This 1695 sq. ft. bungalow in Bluegrass Estates is just waiting to be built. Among the various models available, this one offers 1695 sq.ft. of contemporary living space, ideal for those who value comfort and style in a well-constructed home. A covered entrance welcomes you into a cozy foyer, leading to an expansive open-concept living area. The kitchen is a chef's dream with custom cabinets, quartz or granite countertops, pot lights, and an island perfect for gathering. Adjacent to it, the dining area grants access to the covered, composite back deck. The great room is airy, with a tray ceiling, a fireplace, and large windows that bathe the space in natural light. The primary bedroom boasts a 4-piece ensuite with a tiled shower, a substantial walk-in closet, and ample room for furniture. Additionally, there's a sizable second bedroom, main floor laundry, and a handy garage entry. The price covers the lot, HST, a fully sodded yard, and the promise of joyful memories. Schedule your appointment today to explore all the possibilities and other models. (id:27476)

Property Highlights

MLS® Number
40787368
Type
Single Family
Ownership Type
Freehold
Land Size
under 1/2 acre
Parking Space Total
6

Building

Building Type
House
Storeys
1.00
Square Footage
1695 sqft
Bathrooms Total
2
Bedrooms Above Ground
2
Bedrooms Total
2
Amenities
Place of Worship, Playground, Schools, Shopping
Exterior Finish
Brick Veneer, Stone
Fireplace Present
Yes
Basement Type
Full (Unfinished)
Basement Features
Building Heating Type
Forced air
Heating Fuel
Natural gas
Building Cooling Type
Central air conditioning

Utilities

Water
Municipal water
Utility Sewer
Municipal sewage system

Room Layout

4pc Bathroom
Main level
9'4'' x 11'2''
4pc Bathroom
Main level
6'7'' x 9'6''
Laundry room
Main level
12'8'' x 7'0''
Bedroom
Main level
11'0'' x 13'4''
Primary Bedroom
Main level
13'0'' x 15'0''
Great room
Main level
23'0'' x 12'11''
Dinette
Main level
11'0'' x 11'0''
Kitchen
Main level
11'0'' x 12'0''
Foyer
Main level
6'1'' x 7'0''

Location

Street Spotlight - For sale