201 Jarvis Street, Fort Erie, Ontario L2A 2S7

Listed for:
$1,500
0 beds
0 baths
Listed 69 days ago
201 Jarvis Street, Fort Erie, Ontario L2A 2S7

View all 7 photos

Learn more about this property
Listing provided by:
Vancor Realty Inc.
MLS® number:
40748000
Agent:
Corry Christopher Van Iersel
*Indicates required field
Name is required
Email is required
Please enter a valid phone number (e.g., 416-111-1111).

About

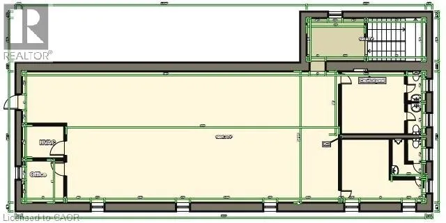
Downtown 2nd floor commercial space for lease. All newly renovated. Ideal for office space, dance studio, martial arts, daycare, or many other options. Lots of parking in the downtown area and on this property. (id:27476)

Property Highlights

MLS® Number
40748000
Type
Other
Ownership Type
Freehold
Land Size
under 1/2 acre

Building

Storeys
2.00
Square Footage
2000 sqft
Fireplace Present
No
Basement Type
None
Basement Features
Building Heating Type
Heating Fuel
Building Cooling Type

Utilities

Water
Municipal water
Utility Sewer
Municipal sewage system

Location