2847 Maple Avenue, Fort Erie, Ontario L0S 1N0

Listed for:
$306,000
0 beds
0 baths
Listed 57 days ago
2847 Maple Avenue, Fort Erie, Ontario L0S 1N0

View all 11 photos

About

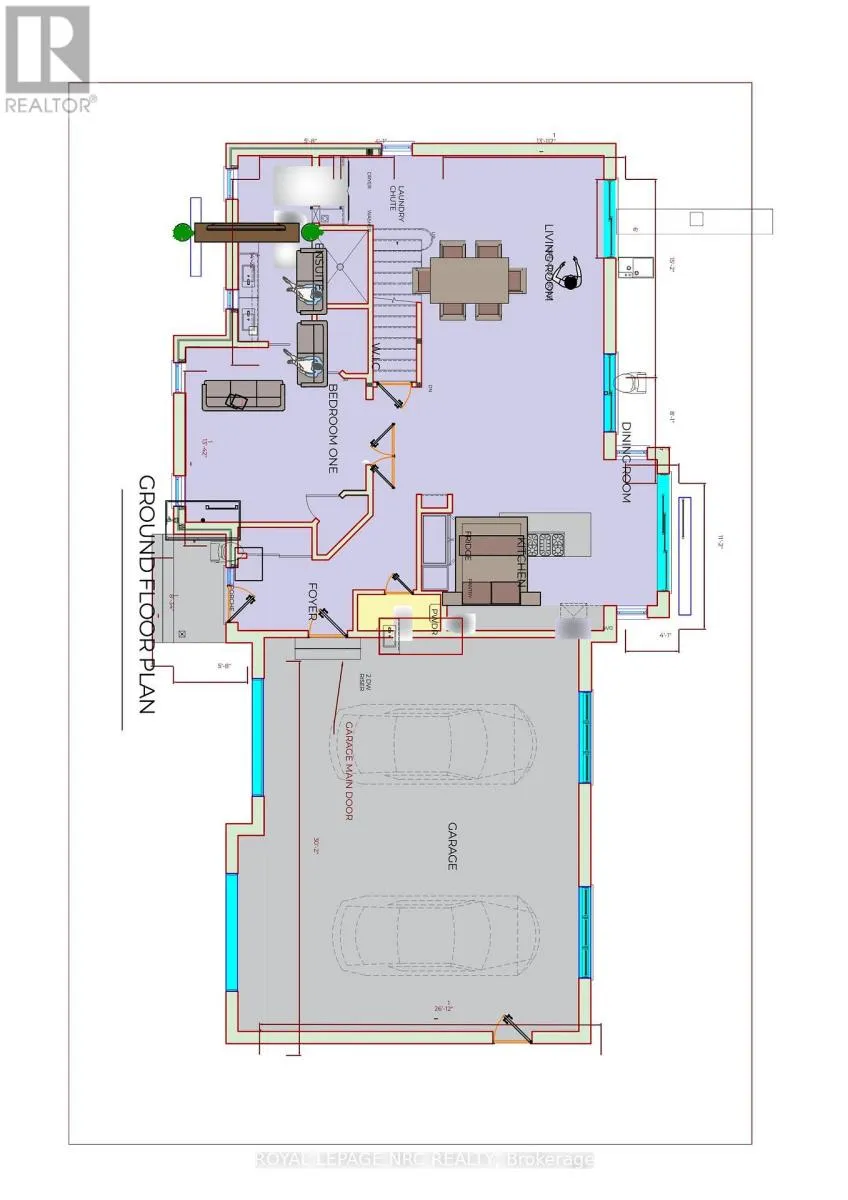
Cross Streets: Oakhill Blvd. ** Directions: Garrison Road to Oakhill Blvd. to Maple Avenue. Welcome to 2847 Maple Avenue with a fantastic opportunity to build your forever dream home in a well desired, quiet location of Oakhill Forest area of Ridgeway. This vacant lot features plenty of mature trees on a double sized lot of 135 Ft. x 120 Ft. with a partially fenced yard. Close to all amenities, schools, downtown Ridgeway with plenty of boutiques and restaurants and close to several different Lake Erie sandy beaches. Start planning your luxurious new home! Call today this area is a very rare opportunity to make it your own. The Seller has existing 2 Storey building design (pictures provided) and if interested inquire for further information. (id:27476)

Property Highlights

MLS® Number
X12757870
Type
Vacant Land
Community Name
335 - Ridgeway
Land Size
135 x 120.4 FT|under 1/2 acre

Building

Fireplace Present
No
Basement Type
Basement Features
Building Heating Type
Heating Fuel
Building Cooling Type

Location

Learn more about this property
Listing provided by:
ROYAL LEPAGE NRC REALTY
MLS® number:
X12757870
Agent:
Shelley Denham
*Indicates required field
Name is required
Email is required
Please enter a valid phone number (e.g., 416-111-1111).