175 Simcoe Avenue, Georgina, Ontario L4P 2H6

Listed for:
$588,000
0 beds
0 baths
Listed 38 days ago
175 Simcoe Avenue, Georgina, Ontario L4P 2H6

View all 4 photos

Learn more about this property
Listing provided by:
RIGHT AT HOME REALTY
MLS® number:
N11915107
Agent:
Jin Tan Liu
*Indicates required field
Name is required
Email is required
Please enter a valid phone number (e.g., 416-111-1111).

About

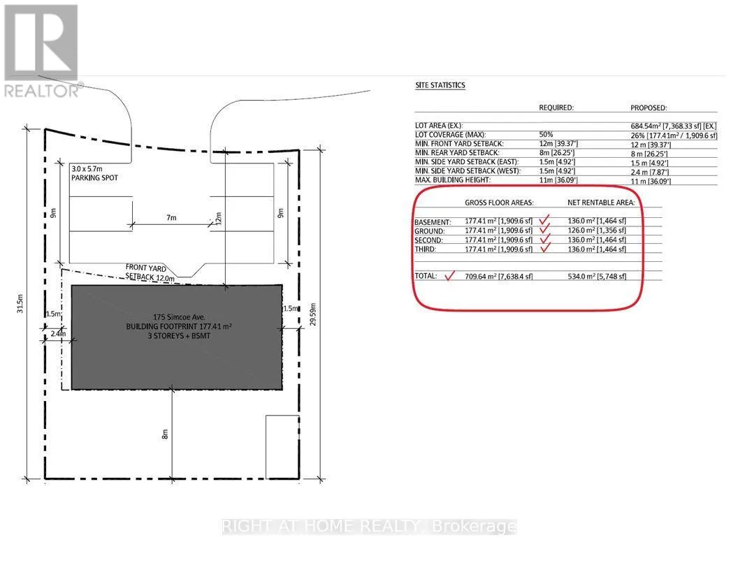
Queensway/Simcoe/Metro Location! Location! Location 75.46 ft wide Lot In The Heart Of Keswick!! C1 is one of the Best Zoning in this Location. You can use the top storey for Residential and other storeys for commercial. You can use for For Restaurants, Bakery, Bank, Bowling, Office, Clinics, and many more ( Please check Georgina Town Website for C1 Zoning). Tremendous Potential Investment In Fast Growing Community. Possible To Split It To 2 Pieces Of Lots (35 And 40 Residentials To Increasing Land Value) (id:27476)

Property Highlights

MLS® Number
N11915107
Type
Vacant Land
Community Name
Keswick North
Land Size
75.46 x 103.37 FT ; 7364.78 Sq.Feet
Parking Space Total
2

Building

Square Footage
7365 sqft
Fireplace Present
No
Basement Type
Basement Features
Building Heating Type
Heating Fuel
Building Cooling Type

Location

Community Spotlight: Homes For sale in Your Neighborhood